Version: 8.26.0Navigation überspringen
7,50 €
15 Zimmer  •  500 m² Bürofläche
Immowelt logo

Bürofläche zur Miete
7,50 €
/m²
15 Zimmer  •  500 m² Bürofläche

Große Bürofläche mit vielen Möglichkeiten!

Flexible Bürofläche mit ca. 500 m² im 2. Obergeschoss eines repräsentativen Gewerbeobjekts!

Die angebotene Bürofläche mit ca. 500 m² befindet sich im 2. Obergeschoss eines gepflegten und großzügig angelegten Gewerbeobjekts. Die Etage überzeugt durch ihre durchdachte Aufteilung sowie ein hohes Maß an Flexibilität und eignet sich ideal für Unternehmen mit individuellen Raumkonzepten.

Aktuell ist die Fläche in mehrere Einzel- und Teambüros sowie zwei großzügige Räume unterteilt, die sich hervorragend als Open-Space-Bereiche, Konferenzräume oder Schulungsflächen nutzen lassen.

Dank der überwiegend in Trockenbauweise errichteten Innenwände kann die Raumstruktur mit vergleichsweise geringem Aufwand an die eigenen Anforderungen angepasst werden. Ob klassische Büroaufteilung, moderne Arbeitswelten oder eine Kombination aus Einzel- und Gemeinschaftsflächen - die Gestaltungsmöglichkeiten sind nahezu unbegrenzt.

Die Lage innerhalb eines großen, etablierten Objekts bietet ein professionelles Umfeld und eine angenehme Arbeitsatmosphäre. Die Etage eignet sich sowohl für wachsende Unternehmen als auch für Nutzer, die Wert auf flexible Flächenkonzepte und zukünftige Anpassungsmöglichkeiten legen.

Insgesamt bietet diese Bürofläche eine ideale Grundlage für individuelle Nutzungskonzepte und langfristige Planungssicherheit.

Merkmale

  • Bezug: nach Absprache
  • 2. Geschoss
  • Barrierefrei
  • Personenaufzug
  • Einbauküche
  • Gäste-WC
  • Bodenbelag: Teppich
- Sonnenschutz: Effektiver außen- bzw. innenliegender Sonnenschutz
- Neuwertiger Teppichboden: Hochwertiger, neuwertiger Teppichboden in den Büroflächen
- Trockenbauwände: Einfache Umgestaltung der Räumlichkeiten möglich
- Behindertengerechtes WC: Barrierefrei ausgeführtes WC
- Neuwertige Einbauküche: Moderne, neuwertige Einbauküche mit ausreichend Stauraum
- Neue Netzwerkverkabelung (Glasfaser): Leistungsstarke, neue Netzwerkverkabelung inklusive Glasfaseranschluss für schnelle und zuverlässige Datenübertragung
- Personenaufzug ins 2. Obergeschoss
- Ausreichend Parkplätze auf dem Gelände vorhanden
- Optionale Erweiterung der Bürofläche auf derselben Etage möglich
- Der Energieausweis für dieses Objekt ist aktuell beantragt und befindet sich in Erstellung. Die relevanten Angaben werden nach Fertigstellung ergänzt und spätestens zur Besichtigung zur Verfügung gestellt

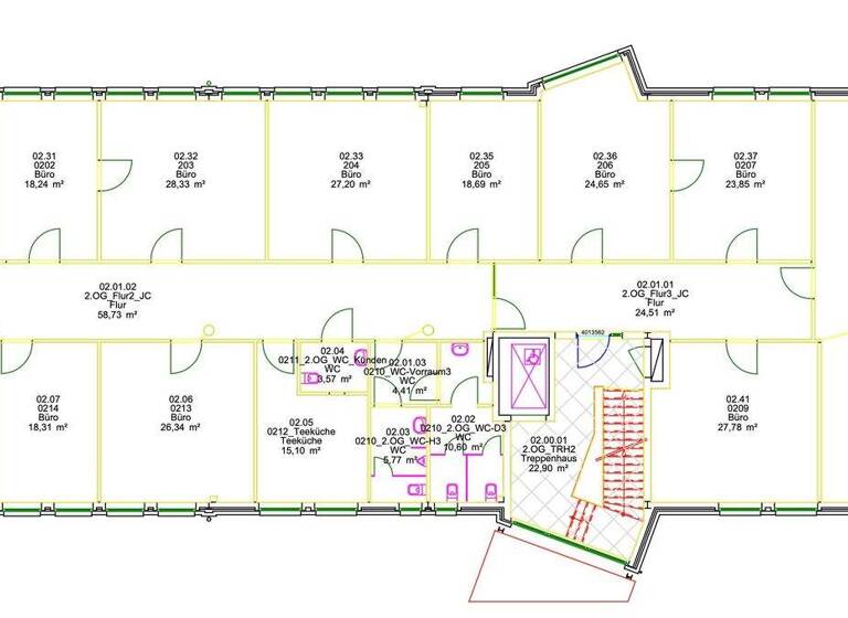
Grundrisse

Grundrisse
1 / 1

Bausubstanz und Energie

Möchtest du Details zum Energieverbrauch?info_energy_calculation-icon
  • Baujahr1996
  • Zustand der ImmobilieGepflegt
  • HeizungsartZentralheizung
  • EnergieträgerGas
Immowelt logo

Mietkosten

Monatliche Miete
7,50 €/m²
Nebenkosten
3 €
Heizkosten
in Warmmiete enthalten
Provision für Mieter
3 Bruttomieten zzgl. MwSt.
Kaution
3 KM

Lage

address-icon
Stade (21680)
Der Anbieter hat die genaue Adresse nicht freigegeben
Die Immobilie befindet sich in attraktiver Lage in Stade, einer lebendigen und wirtschaftlich stabilen Stadt im Landkreis Stade in Niedersachsen. Der Standort verbindet kurze Wege, gute Erreichbarkeit und ein angenehmes Umfeld - ideale Voraussetzungen für modernes Arbeiten und ein motivierendes Arbeitsumfeld.

Arbeiten in Zentrumsnähe:
Die Nähe zum historischen Stadtzentrum von Stade ermöglicht es Mitarbeitenden, den Arbeitsalltag flexibel zu gestalten. Einkaufsmöglichkeiten, Cafés, Restaurants und Dienstleistungsangebote sind schnell erreichbar und bieten ideale Möglichkeiten für die Mittagspause oder Termine nach Feierabend. Die gewachsene Innenstadt mit ihrem besonderen Charme trägt zusätzlich zu einer hohen Aufenthaltsqualität bei.

Optimale Erreichbarkeit:
Die sehr gute Verkehrsanbindung erleichtert den täglichen Arbeitsweg. Über die nahegelegene Autobahn A26 ist der Standort schnell aus Hamburg und dem Umland erreichbar. Der Bahnhof Stade bietet regelmäßige Zugverbindungen in die Hansestadt sowie in die Region und stellt eine komfortable Alternative zum Auto dar - ein klarer Vorteil für Mitarbeitende und Besucher.

Attraktives Arbeitsumfeld:
Das Umfeld ist geprägt von einer ausgewogenen Mischung aus Gewerbe, Dienstleistung und urbanem Leben. Grünflächen, Wasserlagen und Parks in der näheren Umgebung schaffen Ausgleichsmöglichkeiten und erhöhen die Lebens- und Arbeitsqualität - ein Pluspunkt bei der Mitarbeitergewinnung und -bindung.

Standort mit Perspektive:
Stade bietet als Wirtschaftsstandort ein stabiles Umfeld mit einer gut ausgebauten Infrastruktur. Für Unternehmen bedeutet dies Planungssicherheit, für Mitarbeitende kurze Wege und ein angenehmes Umfeld, das Beruf und Alltag optimal miteinander verbindet.

Insgesamt überzeugt die Lage durch ihre Kombination aus zentraler Anbindung, hoher Aufenthaltsqualität und guter Infrastruktur - ein Standort, der sowohl Arbeitgeber als auch Mitarbeitende anspricht.

Weitere Informationen

Sonstiges Um Ihnen schnell ein ausführliches und aussagekräftiges Exposé übersenden zu können, möchten wir Sie bitten, Ihren Vor- und Nachnamen, Ihre postalische Adresse, eine Telefonnummer und möglichst Ihre E-Mail Adresse in der Anfrage anzugeben.

Alle Angaben sind ohne Gewähr und basieren ausschließlich auf Informationen, die uns von unserem Auftraggeber zur Verfügung gestellt wurden. Wir übernehmen keine Gewähr für die Vollständigkeit, Richtigkeit und Aktualität dieser Angaben. Stichworte Stellplatz vorhanden, Nutzfläche: 500,00 m², Gesamtfläche: 500,00 m², Bundesland: Niedersachsen

Weitere Services

Lust auf eine Besichtigung?
Eine Frage zur Immobilie?
Mit einer persönlichen Nachricht hast du bessere Chancen auf eine Antwort.
Mit der Nutzung der oben angegebenen Telefonnummer oder durch Klicken auf „Kontaktieren“ akzeptierst Du die Allgemeinen Nutzungsbedingungen, denen Du jederzeit widersprechen kannst. Weitere Informationen zum Datenschutz

Über den Anbieter

Schützenstr. 3, 21244 Buchholz in der Nordheide
Herr René Borkenhagen
Herr René BorkenhagenDein Kontakt
Online-ID: 26FHX3VHTR7P
Referenznummer: 962
Wie zufrieden bist du mit dieser Seite (nicht mit der Immobilie selbst)?