Familienhaus mit 3 Wohneinheiten in Lünen-Wethmar - ideal für Mehrgenerationenwohnen, Garten
Dieses vollständig renovierte Haus in ruhiger Lage von Lünen-Wethmar bietet eine seltene Möglichkeit: Wohnen für mehrere Generationen unter einem Dach - mit klar getrennten Bereichen und gleichzeitigem Zusammenleben.
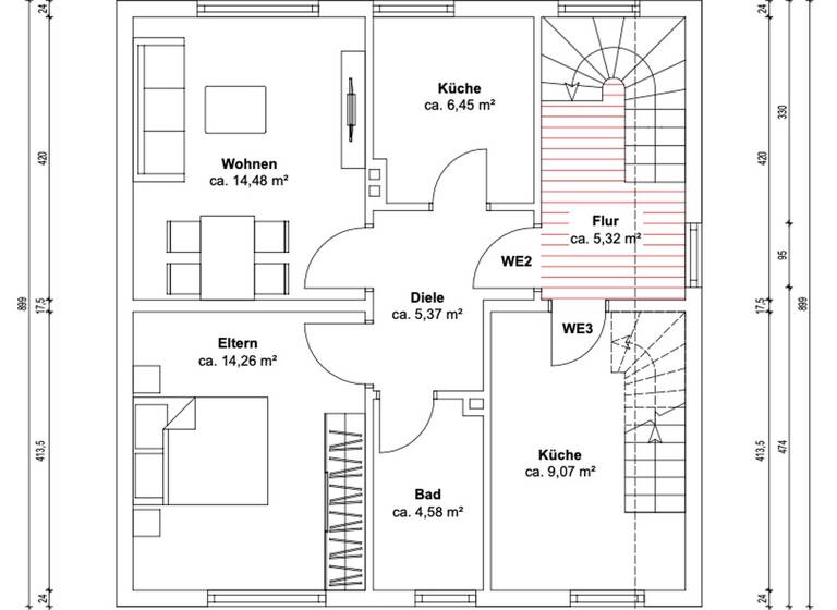
Das Haus verfügt über ca. 165 m² Wohnfläche auf einem 488 m² großen Grundstück und ist in drei eigenständige Wohneinheiten aufgeteilt. Dadurch eignet es sich ideal für:
Familien mit Kindern Wohnen mit Eltern oder Großeltern Kombination aus Eigennutzung und Vermietung
Jede Einheit ist modern renoviert und sofort bezugsfertig. Die Wohnungen sind hell, freundlich und funktional geschnitten.
Ein besonderes Highlight: Jede Wohneinheit hat einen eigenen Gartenanteil, sodass Rückzugsorte genauso möglich sind wie gemeinsames Familienleben. Die Erdgeschosswohnung bietet zusätzlich eine großzügige Terrasse.
Das Haus ist voll unterkellert und bietet viel Stauraum für die gesamte Familie.
Einziehen, wohlfühlen, gemeinsam leben - ohne Renovierungsaufwand.
Merkmale
Bezug: nach Absprache
488 m² Grundstück
Keller
Bodenbelag: Fliesen, Laminat
Terrasse
Garten
2 Stellplätze: 2 Garagen, 4 Außen-Stellplätze
Terrasse, Garten, Keller, Laminat, Fliesen
Bemerkungen: Ausstattung
Das Haus wurde umfassend modernisiert und bietet eine hochwertige Ausstattung, die den Alltag komfortabel und unkompliziert macht.
Außen & Grundstück:
488 m² Grundstück Gartenanteile für jede Wohneinheit große Terrasse im Erdgeschoss Doppelgarage 2 Stellplätze vor dem Haus
Gebäude & Technik:
hochwertiges Satteldach mit großen Gauben (wenige Jahre alt) langlebige Kupferdachrinnen neue Hauseingangstür neue Kellertür moderne niedrigbrennwert Ölheizung (ca. 7 Jahre alt) 3-adrige Elektroinstallation Kupferleitungen
Fenster:
Erdgeschoss: neuwertige Fenster Obergeschoss: neue Fenster + neue Rollladenkästen Dachgeschoss: neue Fenster + neue Rollladenkästen
Das Haus befindet sich in einem Zustand, der sofortiges Einziehen ohne weitere Arbeiten ermöglicht.
Grundrisse
Grundrisse
1 / 4
Realisiere Dein Projekt
Bausubstanz und Energie
Energieausweis
D
Baujahr1955
Zustand der Immobilierenoviert / saniert
HeizungsartZentralheizung
EnergieträgerÖl
Preisdetails
Kaufpreis
449000 €449.000 €
2.721,21 €/m²
Provision für Käufer
provisionsfrei; keine Provision, courtagefrei
Weitere Preisinformationen
4 Stellplätze 2 Garagenstellplätze
Geschätzte Gesamtkosten
487.165 €1
Kaufpreis
449.000 €
Kaufnebenkosten
38.165 €
2
Notarkosten (1,5%)
6.735 €
Grunderwerbsteuer (6,5%)
29.185 €
Grundbucheintrag (0,5%)
2.245 €
1Der angezeigte Wert ist eine automatisch berechnete Schätzung von immowelt.
2Bei den Angaben handelt es sich um ortsübliche Werte. Individuelle Kosten können abweichen.
Lage
Wethmar, Lünen (44534)
Der Anbieter hat die genaue Adresse nicht freigegeben
Das Haus liegt in Lünen-Wethmar, einer der beliebtesten Wohnlagen der Stadt.
Hier wohnen Familien ruhig und gleichzeitig gut angebunden:
gewachsene, familienfreundliche Nachbarschaft kurze Wege zu Schulen, Kindergärten und Spielplätzen Einkaufsmöglichkeiten und Ärzte in der Nähe gute Anbindung Richtung Dortmund
Die Umgebung bietet ideale Voraussetzungen für ein langfristiges Zuhause mit hoher Lebensqualität. Infrastruktur (im Umkreis von 5 km): Apotheke, Lebensmittel-Discount, Allgemeinmediziner, Kindergarten, Grundschule, Hauptschule, Realschule, Gymnasium, Gesamtschule, Öffentliche Verkehrsmittel
Das Haus liegt in Lünen-Wethmar, einer der beliebtesten Wohnlagen der Stadt.
Hier wohnen Familien ruhig und gleichzeitig gut angebunden:
gewachsene, familienfreundliche Nachbarschaft kurze Wege zu Schulen, Kindergärten und Spielplätzen Einkaufsmöglichkeiten und Ärzte in der Nähe gute Anbindung Richtung Dortmund
Die Umgebung bietet ideale Voraussetzungen für ein langfristiges Zuhause mit hoher Lebensqualität.
Makleranfragen nicht erwünscht. Nach § 7 UWG sind unaufgeforderte Kontaktaufnahmen durch Makler ohne ausdrückliche Einwilligung des Empfängers verboten!
ohne-makler (OM) ist weder Anbieter noch Vermittler der Immobilie. OM betreibt eine Plattform für Immobilieneigentümer, die unter anderem die gleichzeitige Veröffentlichung einzelner Inserate auf mehreren Immobilienportalen ermöglicht. Die Inhalte dieser Inserate werden ausschließlich von Dritten verantwortet. Für die Richtigkeit, Vollständigkeit oder Rechtmäßigkeit der Angaben übernimmt OM keine Haftung. Hinweise auf mögliche Rechtsverstöße können jederzeit gemeldet werden und werden nach Prüfung umgehend bearbeitet.
Stichworte
Garage vorhanden, Stellplatz vorhanden, Anzahl der Schlafzimmer: 4, Anzahl der Badezimmer: 3, Anzahl Terrassen: 1, Bundesland: Nordrhein-Westfalen, 2 Etagen