Version: 8.25.1Navigation überspringen
27 €
373,9 m² Bürofläche  •  teilbar ab 374 m²
Immowelt logo

Bürofläche zur Miete • provisionsfrei
27 €
/m²
373,9 m² Bürofläche  •  teilbar ab 374 m²

Ihr neues Büro mittendrin!

Das Fleetinselkontor präsentiert sich als modernes Bürogebäude mit zeitgemäßer Architektur im Herzen Hamburgs. Die klassische Klinkerfassade verleiht dem 2017 fertiggestellten Objekt eine elegante und repräsentative Ausstrahlung, die typisch für die Hamburger Baukultur ist.
Mit einer Gesamtfläche von etwa 6.000 Quadratmetern bietet das Gebäude vielseitige Nutzungsmöglichkeiten für Büro- und Gewerbezwecke. Der großzügig gestaltete Eingangsbereich schafft einen einladenden ersten Eindruck und verfügt über zwei Aufzüge für eine komfortable Erschließung aller Etagen.
Die Innenraumgestaltung zeichnet sich durch durchdachte Details aus: Bodentiefe Fenster sorgen für optimale Tageslichtnutzung und schaffen eine helle, freundliche Arbeitsatmosphäre. Besonders hervorzuheben sind die hochwertigen Akustikelemente, darunter Deckensegel und Raumtrenner, die nicht nur zur Schalloptimierung beitragen, sondern auch gestalterische Akzente setzen. Diese Elemente ermöglichen flexible Raumaufteilungen und unterstützen moderne Arbeitskonzepte.

Merkmale

  • Bezug: Auf Anfrage
  • Teeküche
  • Personenaufzug
  • 2 Stellplätze: 2 Außen-Stellplätze
  • voll klimatisiert

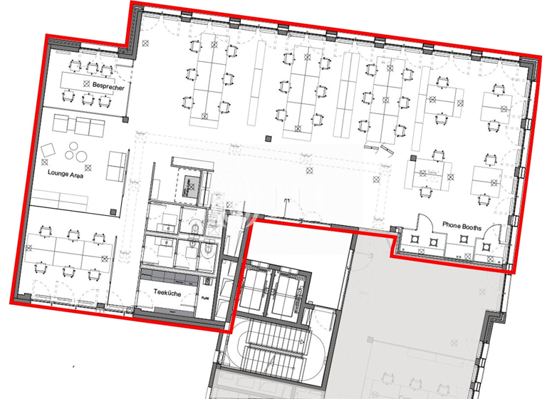
Grundrisse

Grundrisse
1 / 1

Realisiere Dein Projekt

Bausubstanz und Energie

Möchtest du Details zum Energieverbrauch?info_energy_calculation-icon
  • Baujahr2017
Immowelt logo

Mietkosten

Monatliche Miete
27 €/m²
Nebenkosten
4 €
Zusätzliche Kosten
Miete pro Stellplatz
215 €
Provision für Mieter
provisionsfrei; provisionsfrei für den Mieter/Käufer
Kaution
keine Angabe
Weitere Preisinformationen
2 Stellplätze, Miete je: 215,00 EUR

Lage

address-icon
Alter Steinweg 1-3NeustadtHamburg (20459)
Zwischen dem Großneumarkt und der Fleetinsel befindet sich das attraktive Büro- und Gewerbeobjekt Fleetinselkontor im Stadtteil Neustadt. Durch die nahegelegene S-Bahnstation Stadthausbrücke und U-Bahnstation Rödingsmarkt U3 ist eine optimale Anbindung an die öffentlichen Verkehrsmittel gegeben. In nur wenigen Gehminuten sind die Einkaufsstraßen Neuer Wall und Hohe Bleichen sowie der Jungfernstieg zu erreichen und bieten eine Vielfalt von Einkaufsmöglichkeiten und diversen Ärzten. In den Stadthöfen und am Großneumarkt laden zahlreiche Restaurants für die Mittagspause zum Verweilen ein. Dienstleister des täglichen Bedarfs befinden sich in der Nähe.

Weitere Informationen

Stichworte Gesamtfläche: 373,90 m² Sonstiges: EDV-Verkabelung

Weitere Services

Lust auf eine Besichtigung?
Eine Frage zur Immobilie?
Mit einer persönlichen Nachricht hast du bessere Chancen auf eine Antwort.
Mit der Nutzung der oben angegebenen Telefonnummer oder durch Klicken auf „Kontaktieren“ akzeptierst Du die Allgemeinen Nutzungsbedingungen, denen Du jederzeit widersprechen kannst. Weitere Informationen zum Datenschutz

Über den Anbieter

Alter Steinweg 1, 20459 Hamburg
partner badge
Partnerschaft
Frau Zainab Bo-HamdanDein Kontakt
Online-ID: 26LM9MXY1HMM
Referenznummer: 4@of167756@14@0
Jones Lang LaSalle SE - Office Leasing Hamburg
Jones Lang LaSalle SE - Office Leasing Hamburg
Mit einer persönlichen Nachricht hast du bessere Chancen auf eine Antwort.
Mit der Nutzung der oben angegebenen Telefonnummer oder durch Klicken auf „Kontaktieren“ akzeptierst Du die Allgemeinen Nutzungsbedingungen, denen Du jederzeit widersprechen kannst. Weitere Informationen zum Datenschutz
Wie zufrieden bist du mit dieser Seite (nicht mit der Immobilie selbst)?