Version: 8.24.0Navigation überspringen
reallocation commercial properties gmbh
330.000 €
623 m² Verkaufsfläche

Laden zum Kauf
330000 €
623 m² Verkaufsfläche

ideales Investment im Stadtteil - Lebensmittel, Freizeit, Handel&Co - nutzen Sie die Unterversorgung

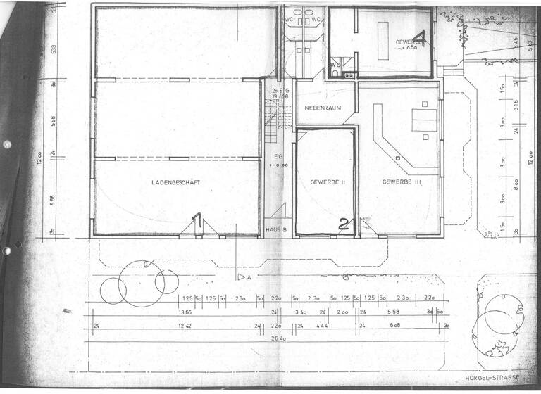
Inmitten des belebten Stadtteils Karlsruhe-Wolfartsweier stehen zwei großzügige Ladeneinheiten im Erdgeschoss ab sofort zum Verkauf. Die Flächen bieten vielfältige Nutzungsmöglichkeiten - ob als Standort für einen Lebensmittelmarkt, zur Nahversorgung oder für ein anderes quartiersnahes Geschäftskonzept.

Die beiden Einheiten befinden sich im Teileigentum und sind derzeit intern miteinander verbunden, können jedoch auch separat erworben und individuell genutzt werden.

Hörgelstraße 10:
Erdgeschoss ca. 240 m²

Hörgelstraße 12:
Erdgeschoss ca. 383 m²
Untergeschoss ca. 253 m²

Auf dem Grundstückteil der Hörgelstraße 12 befindet sich auf einem Erbpachtgrundstück mit einer Restlaufzeit von ca. 48 Jahren.

Merkmale

  • 25 m Schaufensterfront
  • Lastenaufzug
  • Kelleranteil
  • 10 Stellplätze: 10 Außen-Stellplätze
  • Bodenbelag: Fliesen
Der Zugang erfolgt ebenerdig von vorne. Anlieferung ist rückwertig möglich. Ein Lastenaufzug führt die Ware ins UG. Dort befinden sich auch die Kühlräume und die Sozialflächen.

Vor den Ladeneinheiten befinden sich ausreichend Stellplätze für den bequemen Einkauf/Besuch.

Die Einheiten ermöglichen durch ihren Renovierungsstand eine hervorragende Ausgangslage für die zukünftige Neugestaltung des Geschäftsbetriebes.

Grundrisse

Grundrisse
1 / 3

Realisiere Dein Projekt

Bausubstanz und Energie

Der Anbieter hat keine Informationen zum Energieverbrauch bereit gestellt.
  • Zustand der Immobilierenovierungsbedürftig / sanierungsbedürftig

Preisdetails

Kaufpreis
330000 €
Provision für Käufer
2 % aus dem Kaufpreis zzgl. MwSt.
Weitere Preisinformationen
10 Stellplätze
Geschätzte Gesamtkosten
336.600 €1
Kaufpreis
330.000 €
Provision für Käufer (2%)
6.600 €
1Der angezeigte Wert ist eine automatisch berechnete Schätzung von immowelt.
2Bei den Angaben handelt es sich um ortsübliche Werte. Individuelle Kosten können abweichen.

Lage

address-icon
Hörgelstraße 10-12WolfartsweierKarlsruhe (76228)
Das Objekt befindet sich in dem Karlsruher Stadtteil Wolfartsweier, die Verkehrsnetze sind sehr gut und wie folgt zu erreichen:

Straßenbahnhaltestelle fußläufig: 6 min /500m
Bushaltestelle fußläufig: 5 min /400m
Bundesstraße B3: 1km
A8 / A5: 1,5 km

In direkter Nachbarschaft prägen neue Wohngebäude das Bild. In unmittelbarer Nähe entstand das Wohnquartier Wolfsgrün mit 62 Wohneinheiten und drei gewerblichen Nutzungen. Auf der Steinzeugstraße, der Durchfahrtsachse entstehen gerade weitere 20 Wohnungen.

Weitere Informationen

Stichworte Lagerfläche: 253,00 m², Gesamtfläche: 876,00 m², Ladenfläche: 623,00 m²

Weitere Services

Lust auf eine Besichtigung?
Eine Frage zur Immobilie?
Nachricht hinzufügen
Mit der Nutzung der oben angegebenen Telefonnummer oder durch Klicken auf „Kontaktieren“ akzeptierst Du die Allgemeinen Nutzungsbedingungen, denen Du jederzeit widersprechen kannst. Weitere Informationen zum Datenschutz

Über den Anbieter

Brauerstraße 12a, 76135 Karlsruhe
partner badge
Partnerschaft
Herr Frederick Eleven
Herr Frederick ElevenDein Kontakt
Online-ID: 2knk55w
Referenznummer: RL-001729
reallocation commercial properties gmbh
title
reallocation commercial properties gmbh
Nachricht hinzufügen
Mit der Nutzung der oben angegebenen Telefonnummer oder durch Klicken auf „Kontaktieren“ akzeptierst Du die Allgemeinen Nutzungsbedingungen, denen Du jederzeit widersprechen kannst. Weitere Informationen zum Datenschutz
Wie zufrieden bist du mit dieser Seite (nicht mit der Immobilie selbst)?