




Bürofläche zur Miete - Erstbezug17,50 €/m²1.088,6 m² Bürofläche
17,50 €
/m²
1.088,6 m² Bürofläche
Einzigartig - Erstbezug-Büros und Geschäfte im Projekt Hafenportal in 4020 Linz - zur Miete
Merkmale
- Bezug: sofort
- 6. Geschoss
- Personenaufzug
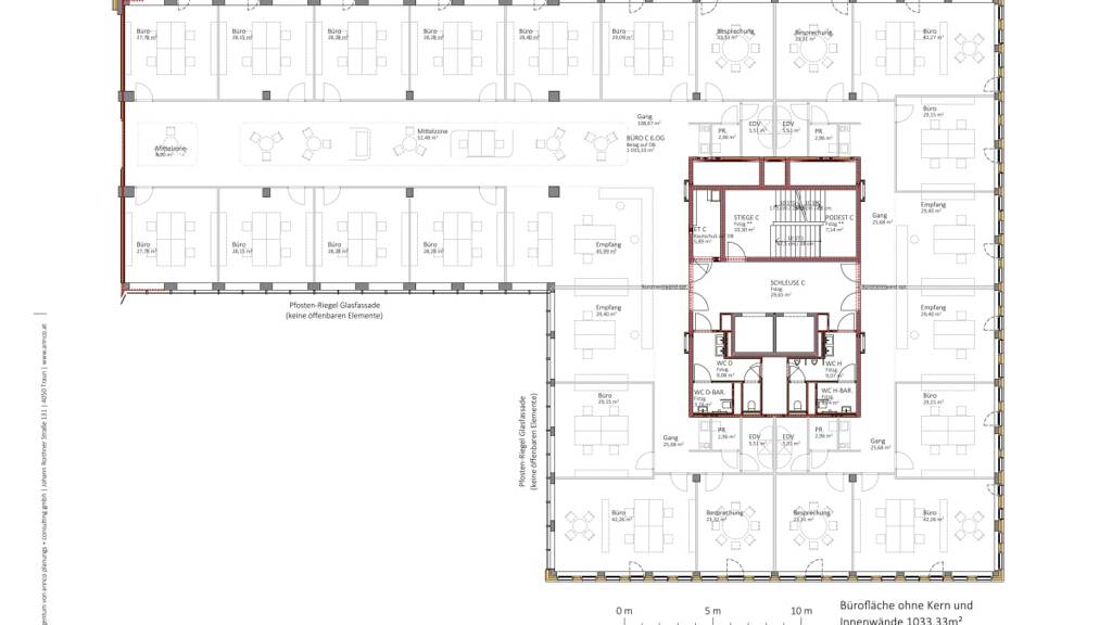
Grundrisse
Verschaffe dir einen genauen Überblick über die Raumaufteilung.

Realisiere Dein Projekt
Bausubstanz und Energie
Heizwärmebedarf (HWB)
B
Gesamtenergieeffizienz (fGEE)
A
- Baujahr2023
- Zustand der ImmobilieErstbezug
- HeizungsartZentralheizung
- EnergieträgerFernwärme
Mietkosten
Gesamtmiete
26.819 €
Nettokaltmiete
17,50 €/m²
19.050,68 €
Betriebskosten
2.492,92 €
Heizkosten
805,57 €
Umsatzsteuer
4.469,83 €
Provision für Mieter
3 BMM zzgl. USt. inkl. MwSt.
Kaution
3 - 6 BMM zzgl. Ust.
Weitere Preisinformationen
Nettokaltmiete: 19.050,68 EUR
Lage

Lustenau, Linz (4020)
Der Anbieter hat die genaue Adresse nicht freigegeben
Weitere Informationen
Weitere Services
Lust auf eine Besichtigung?
Eine Frage zur Immobilie?
Über den Anbieter
Online-ID: 24G89ZHDX2DR
Referenznummer: 10900053

Örag Immobilien West GmbH
Wie zufrieden bist du mit dieser Seite (nicht mit der Immobilie selbst)?

