

Studio zum Kauf500000 €476 €/m²1.050 m² • EG
500000 €
476 €/m²
1.050 m² • EG
Gebäude 1050 m² Vorort von Thessaloniki
Merkmale
- Erdgeschoss
- Fernblick
- möbliert
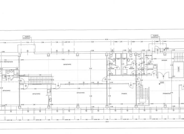
Grundrisse
Grundrisse
1 / 3
Realisiere Dein Projekt
Bausubstanz und Energie
Der Anbieter hat keine Informationen zum Energieverbrauch bereit gestellt.
- Baujahr2005
Preisdetails
Kaufpreis
500000 €
476,19 €/m²
Provision für Käufer
Bitte beachte, das Angebot kann bei Vertragsabschluss die Zahlung einer Provision beinhalten. Weitere Informationen erhältst Du vom Anbieter.
Lage

Thessaloniki
Der Anbieter hat die genaue Adresse nicht freigegeben
Weitere Informationen
Weitere Services
Lust auf eine Besichtigung?
Eine Frage zur Immobilie?
Ăśber den Anbieter
14th km Thessaloniki - Mihaniona, 57001 THESSALONIKI
Frau Marianna PanagkasidouDein Kontakt
Online-ID: 2jjvz59
Referenznummer: 22760

Grekodom Development Constructing and BrokerageTrading Company S.A
Bewertung: 5 von 5 Sternen
Wie zufrieden bist du mit dieser Seite (nicht mit der Immobilie selbst)?