Exklusives Wohnen mit privaten Badestrand am Wörthersee - ANIMA MEA - Top 08 1. OG
Kurzbeschreibung
In den hochwertig ausgestatteten Wohnungen von ANIMA MEA stellen sich schnell Lebensfreude, Wohlbefinden und Geborgenheit ein. Körper und Geist kommen wieder in Einklang. Die lichtdurchfluteten Appartements sind geprägt von klarer Struktur, heller Atmosphäre und hochwertiger Ausstattung. Die verwendeten Materialien sorgen für ein wohltuendes Raumklima. Großzügige Loggien, Balkone, Terrassen und Eigengärten lassen See(le), Sonne und Leben herein. Das vier geschoßige Wohnhaus bietet 26 Wohneinheiten von 41 bis 130 Quadratmetern und eine Tiefgarage mit 46 Abstellplätzen. Im Untergeschoß befinden sich ein Fahrradabstellraum, Kellerabteile Lager- und Technikräume. Zu Fuß betreten Sie das Wohnhaus barrierefrei über die Tiefgarage oder den Vorplatz. Ein Aufzug für 6 - 8 Personen erschließt die Stockwerke. Jede Wohnung verfügt über ein Schließfach im neu errichteten Badehaus am exklusiven Seegrundstück.
Objekt
In den hochwertig ausgestatteten Wohnungen von ANIMA MEA stellen sich schnell Lebensfreude, Wohlbefinden und Geborgenheit ein. Körper und Geist kommen wieder in Einklang. Die lichtdurchfluteten Appartements sind geprägt von klarer Struktur, heller Atmosphäre und hochwertiger Ausstattung. Die verwendeten Materialien sorgen für ein wohltuendes Raumklima. Großzügige Loggien, Balkone, Terrassen und Eigengärten lassen See(le), Sonne und Leben herein. Das vier geschoßige Wohnhaus bietet 26 Wohneinheiten von 41 bis 130 Quadratmetern und eine Tiefgarage mit 46 Abstellplätzen. Im Untergeschoß befinden sich ein Fahrradabstellraum, Kellerabteile Lager- und Technikräume. Zu Fuß betreten Sie das Wohnhaus barrierefrei über die Tiefgarage oder den Vorplatz. Ein Aufzug für 6 - 8 Personen erschließt die Stockwerke. Jede Wohnung verfügt über ein Schließfach im neu errichteten Badehaus am exklusiven Seegrundstück.
Merkmale
Balkon
Tiefgarage
Die Beheizung der Wohnanlage erfolgt über eine zentrale Wärmeversorgung (Fernwärme), welche über eine außentemperaturunabhängige Regelung gesteuert wird. Die Wärmeabgabe erfolgt über eine Fußbodenheizung. Die Verbrauchsmessung wird über einen Mietwärmemengenzähler je Wohneinheit durchgeführt. Die kopmplette Betriebs- und Ausstattungsbeschreibung stellen wir Ihnen gerne gesondert zur Verfügung.
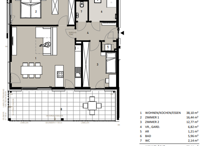
Grundrisse
Grundrisse
1 / 1
Bausubstanz und Energie
Heizwärmebedarf (HWB)
B
Gesamtenergieeffizienz (fGEE)
Baujahr2024
Preisdetails
Kaufpreis
816000 €816.000 €
9.779,48 €/m²
Provision für Käufer
3% des Kaufpreises plus 20% USt.
Weitere Preisinformationen
1 Tiefgaragenstellplatz
Lage
Pörtschach am Wörthersee (9210)
Der Anbieter hat die genaue Adresse nicht freigegeben
Stellen Sie Ihr Auto einfach in Ihrer Tiefgarage ab und erkunden Sie Pörtschach zu Fuß. Supermärkte, Apotheken und Gastronomie sind nicht weit und der gesamte Ort barrierefrei erschlossen. Velden und Klagenfurt sind auch mit dem Fahrrad oder E-Bike über den Wörthersee-Radweg leicht und bequem erreichbar. Der Bahnhof liegt nur wenige Schritte entfernt. Von dort gelangen Sie im Handumdrehen mit Bus und Zug nach Villach oder Klagenfurt bzw. haben natürlich auch Anschluss nach Wien und Graz. Mit dem Auto sind Sie in 15 Minuten in Villach und Klagenfurt, in rund einer Stunde in Slowenien und Italien. Auch die Airports in Klagenfurt und Ljubljana sind schnell zu erreichen.
Weitere Informationen
Stichworte
Anzahl der Schlafzimmer: 2, Anzahl der Badezimmer: 1, Anzahl der separaten WCs: 1, Anzahl Balkone: 1, Bundesland: Kärnten