Version: 8.24.0Navigation überspringen
Deutsche Bank Immobilien GmbH
265.000 €
796 m² Grundstück

Grundstück zum Kauf
265000 €
333 €/m²
796 m² Grundstück

ca. 600m zum Kleinem Müggelsee: Wohnbaugrundstück nahe Wald&Wasser

Zum Verkauf steht ein ca. 790qm großes Grundstück in ruhiger, naturverbundener Umgebung nahe dem Kleinen Müggelsee im behaglichen Berliner Stadtteil Köpenick - ein Paradis für Naturfreunde.

Das Grundstück befindet sich in einer ruhigen Seitenstraße nur ca. 600m entfernt vom Sandstrand und ist mit einer teilunterkellerten, zweigeschossigen Stadtvilla aus den 30er Jahren bebaut. Der Innenbereich des einst charmanten ca. 140m2 großen Bestandsgebäudes ist leider aufgrund eines Rohrbruchs sehr stark in Mitleidenschaft gezogen und in einen desolaten Zustand gekommen. Es ist davon auszugehen, dass ein Abriss und Neubau wirtschaftlich sinnvoller ist, als die Sanierung des Objektes.

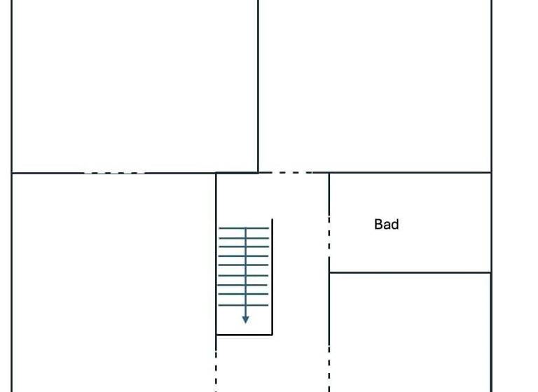
Auf mündliche Anfrage bei der zuständigen Bauaufsicht wäre ein Neubau im gleichen Stil (zwei Vollgeschosse mit Flachdach) grundsätzlich denkbar. Die beigefügten Pläne (siehe Dateien) wurden zur unverbindlichen Abstimmung eingereicht und nicht beanstandet.
Eine verbindliche Bauvoranfrage wurde nicht gestellt. Es gilt die Bebauungsrichtlinie der Nachbarschaftsbebauung gem. §34 BauGB. Die Umsetzung Ihres individuellen Vorhabens erfragen Sie gerne eigeninitiativ beim zuständigen Bauamt.

-- BIITTE BEACHTEN SIE:

Sie erhalten im Nachgang zu Ihrer Anfrage eine Email mit der Möglichkeit zur Freischaltung des WEB-Exposés.
Die ADRESSANGABE sowie Freigabe von weiteren Bildern und Informationen erfolgt in einem automatischen Prozess über die Freischaltung des WEB-Exposés indem Sie den Maklervertrag herunterladen und alle Informationen bestätigen. --

Zur Vereinbarung eines BESICHTIGUNGSTERMINS melden Sie sich bitte NACH Erhalt des ausführlichen WEB-Exposés telefonisch unter der 0163 8925000 bei uns.

Merkmale

  • 796 m² Grundstück
  • voll erschlossen

Grundrisse

Grundrisse
1 / 3

Realisiere Dein Projekt

Bausubstanz und Energie

Der Anbieter hat keine Informationen zu Energieverbrauch oder Zustand der Immobilie bereit gestellt.

Preisdetails

Kaufpreis
265000 €
332,91 €/m²
Provision für Käufer
3,57 % inkl. MwSt.
Geschätzte Gesamtkosten
274.461 €1
Kaufpreis
265.000 €
Provision für Käufer (3,57%)
9.461 €
1Der angezeigte Wert ist eine automatisch berechnete Schätzung von immowelt.
2Bei den Angaben handelt es sich um ortsübliche Werte. Individuelle Kosten können abweichen.

Lage

address-icon
MüggelheimBerlin (12559)
Der Anbieter hat die genaue Adresse nicht freigegeben
Das angebotene Grundstück befindet sich in idyllischer Wohnlagen Berlins - im südöstlichen Stadtteil Köpenick.
Unweit des kleinen Müggelsees und eingebettet in eine ruhige, kaum befahrene Anliegerstraße, bietet das Grundstück einen perfekten, naturnahem Rückzugsort abseits des Großstadttrubels.

Nur wenige Gehminuten entfernt, über einen charmanten Schleichweg, erreichen Sie das beliebte Strandbad Müggelsee - ideal für entspannte Sommertage am Wasser, morgendliche Joggingrunden oder ausgedehnte Spaziergänge in der Natur. Die grüne Umgebung mit ihren zahlreichen Rad- und Wanderwegen sowie der nahegelegene Müggelwald machen diesen Standort zu einer echten Ruheoase in unserer vielseitigen Hauptstadt.

Einkaufsmöglichkeiten des täglichen Bedarfs, Kitas, eine Grundschule und Ärzte befinden sich ca. 2km entfernt rund um Alt-Müggelheim und den Müggelheimer Damm und sind auch mit der Busverbindung direkt erreichbar.
Weitere Einkaufsmöglichkeiten, Fachgeschäfte, Ärzte und Apotheken sind in der historischen Köpenicker Altstadt in nur 15Minuten erreichbar.

Dieses Grundstück vereint die seltene Gelegenheit, im Grünen zu wohnen, ohne auf die Vorzüge der Großstadt verzichten zu müssen - ideal für Familien, Naturliebhaber oder Menschen, die ein Zuhause mit besonderem Erholungswert suchen.

Weitere Informationen

Sonstiges Die im Exposé enthaltenen Informationen beruhen auf Angaben des/der Verkäufer:in. Wir übernehmen daher keine Haftung für die Richtigkeit und Vollständigkeit der im Exposé enthaltenen Informationen.

Bitte haben Sie Verständnis dafür, dass wir Ihre Anfragen nur in schriftlicher Form per Email, unter Angabe des vollständigen Namens und Ihrer Adresse, bearbeiten können.

Gerne helfen wir Ihnen auch bei der Suche nach einem passenden Finanzierungsangebot. Fragen Sie uns hierzu gerne!

Rechtlicher Hinweis auf den Urheber des Exposés
Jelena Radojev
Selbstständige Immobilienberaterin
Calandrellistraße 24 12247 Berlin
E-Mail: jelena.radojev@db.com
Telefon: 0163 8925000

Aufsichtsbehörde: Ordnungsamt Steglitz-Zehlendorf
Internet: https://www.berlin.de/ba-steglitz-zehlendorf/
Anschrift: Unter den Eichen 1 , 12203 Berlin Stichworte Bundesland: Berlin

Weitere Services

Lust auf eine Besichtigung?
Eine Frage zur Immobilie?
Nachricht hinzufügen
Mit der Nutzung der oben angegebenen Telefonnummer oder durch Klicken auf „Kontaktieren“ akzeptierst Du die Allgemeinen Nutzungsbedingungen, denen Du jederzeit widersprechen kannst. Weitere Informationen zum Datenschutz

Über den Anbieter

Lubahnstr 2, 31789 Hameln
partner badge
Partnerschaft
Frau Jelena RadojevDein Kontakt
Online-ID: 2nwzq58
Referenznummer: 43090104-1013186
Deutsche Bank Immobilien GmbH
Deutsche Bank Immobilien GmbH
Nachricht hinzufügen
Mit der Nutzung der oben angegebenen Telefonnummer oder durch Klicken auf „Kontaktieren“ akzeptierst Du die Allgemeinen Nutzungsbedingungen, denen Du jederzeit widersprechen kannst. Weitere Informationen zum Datenschutz
Wie zufrieden bist du mit dieser Seite (nicht mit der Immobilie selbst)?