




1 / 27



1 / 27

Haus zum Kauf190000 €190.000 €1.827 €/m²4 Zimmer • 104 m² • 973 m² Grundstück
190000 €190.000 €
1.827 €/m²
4 Zimmer • 104 m² • 973 m² Grundstück
Geschichtsträchtiger Vierkanthof in Königsdorf - Ideal für Naturliebhaber!
Entdecken Sie einen einzigartigen Vierkanthof in Königsdorf bei Jennersdorf! Tauchen Sie ein in die Geschichte und den Charme dieses wunderschönen Vierkanthofs aus dem Jahr 1840. Mit einer Grundfläche von 973 m² und einer Wohnnutzfläche von 104 m² bietet dieses Anwesen ausreichend Platz für Ihre Wohnträume und vielfältige Nutzungsmöglichkeiten.
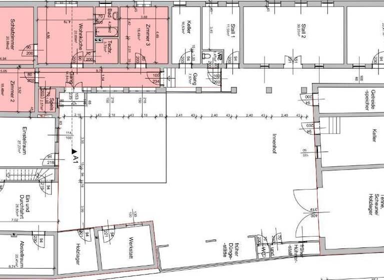
Einteilung der Räume: Wohnküche, Schlafzimmer, 2 Zimmer, Bad, Technikraum, Speis, WC und Gang.
Zusätzliche Räume: Diverse Stallungen, Werkstatt, Getreidespeicher, zwei Keller, Tenne, Holzlager, Abstellraum, Einstellraum, Plumpsklo, riesige Dachböden und großer Innenhof.
Highlights Ihres neuen Zuhauses:
Großzügige Wohnfläche: 104 m² Wohnnutzfläche, verteilt auf eine gemütliche Wohnküche, Schlafzimmer und weitere Räume, die nach Ihren Wünschen gestaltet werden können.
Vielseitige Stallungen: Diverse Stallungen, ein Keller, Holzlager, Abstellraum, Getreidespeicher und Werkstatt bieten reichlich Platz für Ihre Projekte.
Die riesigen Dachböden mit sehr gutem Holzbestand sind perfekt für einen etwaigen Ausbau geeignet und bieten zusätzliches Potenzial.
Eigener Hofbrunnen: Ein eigener Hofbrunnen sorgt für Unabhängigkeit und Nachhaltigkeit.
Guter Zustand: Das Anwesen wurde bereits vor vielen Jahren fachgerecht generalsaniert und befindet sich für sein Alter in einem guten Zustand ohne Feuchtigkeitsprobleme.
Moderne Annehmlichkeiten: Elektroheizung und ein wunderschöner Kochherd verbinden traditionellen Charme mit modernem Komfort.
Zusätzliche Vorteile:
Förderung für Althausankauf: Vom Bundesland Burgenland gibt es eine Förderung für den Althausankauf. Diese Förderung läuft über 30 Jahre mit einer Verzinsung von nur 0,9 % und kann bis zu € 45.000,-- betragen.
Erweiterungsmöglichkeiten: Momentan besteht die Möglichkeit, ein wunderschönes Baugrundstück gegenüber dazu zu kaufen, was zusätzlichen Raum für Ihre Ideen und Erweiterungspläne bietet.
Warum dieser Vierkanthof?
Historischer Charme: Erleben Sie die einzigartige Atmosphäre eines traditionellen Vierkanthofs und genießen Sie das authentische Landleben.
Flexible Nutzungsmöglichkeiten: Ob als Wohnsitz oder Nebenwohnsitz, landwirtschaftlicher Betrieb oder kreatives Projekt - die zahlreichen Gebäude und Räume bieten vielfältige Optionen.
Gesunde Umwelt: Kein Feuchtigkeitsproblem dank sorgfältiger Sanierung und guter Pflege.
Ihr Leben auf dem Land erwartet Sie! Dieser traditionsreiche Vierkanthof bietet Ihnen die perfekte Kombination aus historischem Charme und modernem Komfort. Nutzen Sie die Gelegenheit, um in eine Welt voller Geschichte und Möglichkeiten einzutauchen.
Interessiert?
Kontaktieren Sie uns noch heute, um mehr über dieses einzigartige Anwesen zu erfahren und einen Besichtigungstermin zu vereinbaren.
Mehr Informationen und weitere Angebote finden Sie auf unserer Website: ambiente-immobilien.at.
Vierkanthof in Königsdorf - Wo Geschichte und moderne Lebensqualität sich treffen!
Hinweis: Etwaige Umbauten werden von der Gemeinde gerne gesehen und auch ohne Probleme gestattet, nach einer Bestandserhebung.
Einteilung der Räume: Wohnküche, Schlafzimmer, 2 Zimmer, Bad, Technikraum, Speis, WC und Gang.
Zusätzliche Räume: Diverse Stallungen, Werkstatt, Getreidespeicher, zwei Keller, Tenne, Holzlager, Abstellraum, Einstellraum, Plumpsklo, riesige Dachböden und großer Innenhof.
Highlights Ihres neuen Zuhauses:
Großzügige Wohnfläche: 104 m² Wohnnutzfläche, verteilt auf eine gemütliche Wohnküche, Schlafzimmer und weitere Räume, die nach Ihren Wünschen gestaltet werden können.
Vielseitige Stallungen: Diverse Stallungen, ein Keller, Holzlager, Abstellraum, Getreidespeicher und Werkstatt bieten reichlich Platz für Ihre Projekte.
Die riesigen Dachböden mit sehr gutem Holzbestand sind perfekt für einen etwaigen Ausbau geeignet und bieten zusätzliches Potenzial.
Eigener Hofbrunnen: Ein eigener Hofbrunnen sorgt für Unabhängigkeit und Nachhaltigkeit.
Guter Zustand: Das Anwesen wurde bereits vor vielen Jahren fachgerecht generalsaniert und befindet sich für sein Alter in einem guten Zustand ohne Feuchtigkeitsprobleme.
Moderne Annehmlichkeiten: Elektroheizung und ein wunderschöner Kochherd verbinden traditionellen Charme mit modernem Komfort.
Zusätzliche Vorteile:
Förderung für Althausankauf: Vom Bundesland Burgenland gibt es eine Förderung für den Althausankauf. Diese Förderung läuft über 30 Jahre mit einer Verzinsung von nur 0,9 % und kann bis zu € 45.000,-- betragen.
Erweiterungsmöglichkeiten: Momentan besteht die Möglichkeit, ein wunderschönes Baugrundstück gegenüber dazu zu kaufen, was zusätzlichen Raum für Ihre Ideen und Erweiterungspläne bietet.
Warum dieser Vierkanthof?
Historischer Charme: Erleben Sie die einzigartige Atmosphäre eines traditionellen Vierkanthofs und genießen Sie das authentische Landleben.
Flexible Nutzungsmöglichkeiten: Ob als Wohnsitz oder Nebenwohnsitz, landwirtschaftlicher Betrieb oder kreatives Projekt - die zahlreichen Gebäude und Räume bieten vielfältige Optionen.
Gesunde Umwelt: Kein Feuchtigkeitsproblem dank sorgfältiger Sanierung und guter Pflege.
Ihr Leben auf dem Land erwartet Sie! Dieser traditionsreiche Vierkanthof bietet Ihnen die perfekte Kombination aus historischem Charme und modernem Komfort. Nutzen Sie die Gelegenheit, um in eine Welt voller Geschichte und Möglichkeiten einzutauchen.
Interessiert?
Kontaktieren Sie uns noch heute, um mehr über dieses einzigartige Anwesen zu erfahren und einen Besichtigungstermin zu vereinbaren.
Mehr Informationen und weitere Angebote finden Sie auf unserer Website: ambiente-immobilien.at.
Vierkanthof in Königsdorf - Wo Geschichte und moderne Lebensqualität sich treffen!
Hinweis: Etwaige Umbauten werden von der Gemeinde gerne gesehen und auch ohne Probleme gestattet, nach einer Bestandserhebung.
Merkmale
- 973 m² Grundstück
Grundrisse
Grundrisse
1 / 3
Realisiere Dein Projekt
Bausubstanz und Energie
Möchtest du Details zum Energieverbrauch?

Preisdetails
Kaufpreis
190000 €190.000 €
1.826,92 €/m²
Provision für Käufer
3,6 inkl. MwSt.
Lage

Jennersdorf, Güssing, Königsdorf, Südburgenland, (8380)
Der Anbieter hat die genaue Adresse nicht freigegeben
Königsdorf - Ihr neues Zuhause im Herzen der Natur
Willkommen in Königsdorf bei Jennersdorf - ein Ort, der alles bietet!
Träumen Sie von einem Leben im Grünen, ohne auf Komfort und Annehmlichkeiten verzichten zu müssen? Königsdorf bei Jennersdorf ist der perfekte Ort, um Ihre Wohnträume zu verwirklichen. Hier verbinden sich idyllische Natur, hervorragende Infrastruktur und eine einladende Gemeinschaft zu einem unvergleichlichen Lebensgefühl.
Warum Königsdorf?
Sonnige Lage: Königsdorf profitiert von einer sonnenverwöhnten Lage, die Ihnen das ganze Jahr über viel Licht und Wärme schenkt.
Natur pur: Eingebettet in die sanften Hügel und weiten Felder des südlichen Burgenlandes, bietet Königsdorf atemberaubende Landschaften und unberührte Natur.
Freizeitparadies: Der nahegelegene Naturbadesee Königsdorf lädt zum Baden, Entspannen und zu vielfältigen Wassersportaktivitäten ein. Wander- und Radwege bieten Möglichkeiten für sportliche Betätigung und Erholung in der Natur.
Moderne Infrastruktur: Trotz der ruhigen, ländlichen Atmosphäre verfügt Königsdorf über eine hervorragende Infrastruktur mit schnellen Anbindungen zu Einkaufsmöglichkeiten, Schulen, Restaurants und medizinischer Versorgung.
Gemeinschaft: In Königsdorf erwartet Sie eine herzliche und offene Gemeinschaft, die das Dorfleben mit zahlreichen Veranstaltungen und Aktivitäten bereichert.
Lebensqualität in Königsdorf:
Erholsame Umgebung: Genießen Sie die Ruhe und Schönheit der Natur direkt vor Ihrer Haustür.
Nachbarschaft: Moderne Neubauten und gepflegte Häuser prägen das Ortsbild und sorgen für eine angenehme Wohnatmosphäre.
Naturnähe: Ideal für Naturliebhaber und Familien, die ein gesundes und aktives Leben führen möchten.
Neue Anbindung an die S7:
Verbesserte Verkehrsanbindung: Die neue Anbindung an die S7 sorgt für eine noch bessere Erreichbarkeit von Königsdorf und macht es zu einem attraktiven Wohnort für Pendler und Berufstätige.
Schnelle Verbindung: Die direkte Anbindung an das Autobahnnetz ermöglicht kurze Fahrzeiten zu den umliegenden Städten und macht Ausflüge in die Region noch komfortabler.
Entdecken Sie die umliegende Vielfalt:
Thermenparadies: Nur eine kurze Autofahrt entfernt befinden sich bekannte Thermalbäder wie die Therme Loipersdorf und die Therme Stegersbach, die zum Entspannen und Wohlfühlen einladen.
Naturpark Raab: Der Drei-Länder-Naturpark Raab erstreckt sich über Österreich, Ungarn und Slowenien und bietet unzählige Möglichkeiten für Wanderungen, Radtouren und Naturerlebnisse.
Künstlerdorf Neumarkt: Besuchen Sie das charmante Künstlerdorf Neumarkt, wo Kunst, Kultur und Geschichte aufeinandertreffen und eine inspirierende Atmosphäre geschaffen wird.
Ihr neues Zuhause erwartet Sie!
Ob Sie ein Eigenheim bauen oder ein bestehendes Haus suchen - in Königsdorf finden Sie das perfekte Grundstück oder Objekt, das Ihren Vorstellungen entspricht. Lassen Sie sich von der einzigartigen Atmosphäre und den vielfältigen Möglichkeiten inspirieren.
Interessiert? Kontaktieren Sie uns noch heute, um mehr über die Immobilienangebote in Königsdorf zu erfahren und Ihre neue Heimat zu entdecken.
Mehr Informationen und exklusive Angebote finden Sie auf unserer Website: ambiente-immobilien.at
Königsdorf - Wo Lebensqualität und Natur im Einklang sind!
Willkommen in Königsdorf bei Jennersdorf - ein Ort, der alles bietet!
Träumen Sie von einem Leben im Grünen, ohne auf Komfort und Annehmlichkeiten verzichten zu müssen? Königsdorf bei Jennersdorf ist der perfekte Ort, um Ihre Wohnträume zu verwirklichen. Hier verbinden sich idyllische Natur, hervorragende Infrastruktur und eine einladende Gemeinschaft zu einem unvergleichlichen Lebensgefühl.
Warum Königsdorf?
Sonnige Lage: Königsdorf profitiert von einer sonnenverwöhnten Lage, die Ihnen das ganze Jahr über viel Licht und Wärme schenkt.
Natur pur: Eingebettet in die sanften Hügel und weiten Felder des südlichen Burgenlandes, bietet Königsdorf atemberaubende Landschaften und unberührte Natur.
Freizeitparadies: Der nahegelegene Naturbadesee Königsdorf lädt zum Baden, Entspannen und zu vielfältigen Wassersportaktivitäten ein. Wander- und Radwege bieten Möglichkeiten für sportliche Betätigung und Erholung in der Natur.
Moderne Infrastruktur: Trotz der ruhigen, ländlichen Atmosphäre verfügt Königsdorf über eine hervorragende Infrastruktur mit schnellen Anbindungen zu Einkaufsmöglichkeiten, Schulen, Restaurants und medizinischer Versorgung.
Gemeinschaft: In Königsdorf erwartet Sie eine herzliche und offene Gemeinschaft, die das Dorfleben mit zahlreichen Veranstaltungen und Aktivitäten bereichert.
Lebensqualität in Königsdorf:
Erholsame Umgebung: Genießen Sie die Ruhe und Schönheit der Natur direkt vor Ihrer Haustür.
Nachbarschaft: Moderne Neubauten und gepflegte Häuser prägen das Ortsbild und sorgen für eine angenehme Wohnatmosphäre.
Naturnähe: Ideal für Naturliebhaber und Familien, die ein gesundes und aktives Leben führen möchten.
Neue Anbindung an die S7:
Verbesserte Verkehrsanbindung: Die neue Anbindung an die S7 sorgt für eine noch bessere Erreichbarkeit von Königsdorf und macht es zu einem attraktiven Wohnort für Pendler und Berufstätige.
Schnelle Verbindung: Die direkte Anbindung an das Autobahnnetz ermöglicht kurze Fahrzeiten zu den umliegenden Städten und macht Ausflüge in die Region noch komfortabler.
Entdecken Sie die umliegende Vielfalt:
Thermenparadies: Nur eine kurze Autofahrt entfernt befinden sich bekannte Thermalbäder wie die Therme Loipersdorf und die Therme Stegersbach, die zum Entspannen und Wohlfühlen einladen.
Naturpark Raab: Der Drei-Länder-Naturpark Raab erstreckt sich über Österreich, Ungarn und Slowenien und bietet unzählige Möglichkeiten für Wanderungen, Radtouren und Naturerlebnisse.
Künstlerdorf Neumarkt: Besuchen Sie das charmante Künstlerdorf Neumarkt, wo Kunst, Kultur und Geschichte aufeinandertreffen und eine inspirierende Atmosphäre geschaffen wird.
Ihr neues Zuhause erwartet Sie!
Ob Sie ein Eigenheim bauen oder ein bestehendes Haus suchen - in Königsdorf finden Sie das perfekte Grundstück oder Objekt, das Ihren Vorstellungen entspricht. Lassen Sie sich von der einzigartigen Atmosphäre und den vielfältigen Möglichkeiten inspirieren.
Interessiert? Kontaktieren Sie uns noch heute, um mehr über die Immobilienangebote in Königsdorf zu erfahren und Ihre neue Heimat zu entdecken.
Mehr Informationen und exklusive Angebote finden Sie auf unserer Website: ambiente-immobilien.at
Königsdorf - Wo Lebensqualität und Natur im Einklang sind!
Weitere Informationen
Sonstiges
Malerische Weinberge, Idyllische Landschaften, Sonniges Klima, Günstige Immobilienpreise, Attraktive Investitionsmöglichkeiten, Ruhige Wohngegenden, Naturnähe und Erholung, Tradition und Kultur, Herzliche Gastfreundschaft, Vielfältige Freizeitmöglichkeiten, Kulinarische Genüsse, Verkehrsgünstige Lage, Hohe Lebensqualität, Sicheres Wohnumfeld, Wachsender Immobilienmarkt, Malerische Weinberge Idyllische Landschaften Sonniges Klima Günstige Immobilienpreise Attraktive Investitionsmöglichkeiten Ruhige Wohngegenden Naturnähe und Erholung Tradition und Kultur Herzliche Gastfreundschaft Vielfältige Freizeitmöglichkeiten Kulinarische Genüsse Verkehrsgünstige Lage Hohe Lebensqualität Sicheres Wohnumfeld Wachsender Immobilienmarkt Südoststeiermark Immobilien Vulkanland Grundstücke Steirische Toskana Häuser Weinregion Steiermark Thermenregion Steiermark Ländliche Idylle Steiermark Bauernhof Steiermark Weingut Steiermark Ferienhaus Steiermark Grundstück Vulkanland Haus kaufen Südoststeiermark Wohnung mieten Steirische Toskana Südburgenland Immobilien Thermenregion Burgenland Weinregion Südburgenland Grundstück Südburgenland Ferienhaus Burgenland Haus kaufen Südburgenland
Stichworte
Bundesland: Königsdorf, Jennersdorf, Güssing, Südburgenland, Südoststeiermark, Vulkanland, Tirol, Österreich, Königsdorf, Burgenland
Weitere Services
Lust auf eine Besichtigung?
Eine Frage zur Immobilie?
Über den Anbieter
Ambiente Immobilien e.U.Maklerbüro
Grünwaldweg 7, 6384 WAIDRING
Partnerschaft
Frau Brigitte WeisleitnerDein Kontakt
Online-ID: 259FD14WPGJX
Referenznummer: 205
Wie zufrieden bist du mit dieser Seite (nicht mit der Immobilie selbst)?


