Version: 8.24.0Navigation überspringen
RICH Immobilien GmbH & Co. KG
11,50 €
847 m² Bürofläche  •  teilbar ab 318 m²

Büro zur Miete
11,50 €
/m²
847 m² Bürofläche  •  teilbar ab 318 m²

Hüthig Spaces: Flexibel - verkehrsgünstig - preiswert

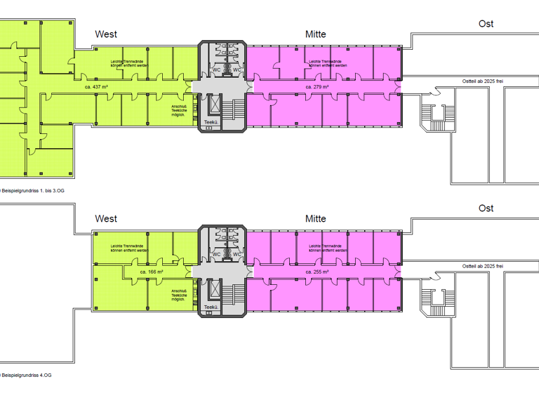
Hüthig Spaces: Flexibel - verkehrsgünstig - preiswert. Aktuell können bis zu ca. 1.828 m² helle, funktionale Büroflächen in Heidelberg-Handschuhsheim in folgenden Mieteinheiten angemietet werden: ca. 318 m² im EG (ehemalige Kantine) und jeweils ca. 318 m² im 3. und 5. OG des Bauteils Ost sowie jeweils ca. 437 m² im 2. und 3. OG des Bauteils West. Mieterwünsche bezüglich der Raumaufteilung und Ausstattung sowie der Vertragslaufzeiten können im Rahmen eines flexiblen Mietpreismodells umgesetzt werden. Die Stellplatzsituation am Objekt ist sehr gut.

Merkmale

  • Außen-Stellplatz
  • Raumaufteilung flexibel
  • Fenster: Sonnenschutz
abgehängte Decken mit Bildschirmarbeitsplatzbeleuchtung
großteils außenliegender Sonnenschutz
Fensterbankkabelkanäle für Strom-, IT- und Kommunikationsverkabelung
IT-Verkabelung des Vormieters kann eventuell übernommen werden
Glasfaseranschluss im Haus
strapazierfähiger Teppichbodenbelag
Einbauschränke vorhanden
lichte Höhe: ca. 2,77 m
Kühlung gegen Aufpreis möglich
Teeküche und Sanitärbereiche pro Etage (Gebäudeteil West); Teeküche und Sanitärbereiche innerhalb des Mietbereichs (Ost)
digitales Zugangssystem
Personenaufzüge

Energieausweis: in Vorbereitung

Grundrisse

Grundrisse
1 / 1

Realisiere Dein Projekt

Bausubstanz und Energie

Der Anbieter hat keine Informationen zu Energieverbrauch oder Zustand der Immobilie bereit gestellt.

Mietkosten

Monatliche Miete
11,50 €/m²
Nebenkosten
3,30 €
Provision für Mieter
mieterprovisionsfrei
Kaution
keine Angabe

Lage

address-icon
Im Weiher 10HandschuhsheimHeidelberg (69121)
Heidelberg - Handschuhsheim: Das Bürohaus befindet sich im Gewerbegebiet "Im Weiher" in äußerst verkehrsgünstiger Lage: Die A 5 ist über die Anschlussstelle Dossenheim in ca. 5 Minuten zu erreichen. Mit dem ÖPNV (Straßenbahnlinien 5, 23, 24) kann man im 10-Minuten Takt in die Innenstadt fahren. Die Straßenbahnlinie liegt nur ca. 250 Meter vom Gebäude entfernt. Im direkten Objektumfeld befinden sich mehrere großflächige Supermärkte und Discounter (REWE, Aldi, LIDL, dm-Markt, etc.) Das Stadtteilzentrum von Handschuhsheim (Tiefburg und Hans-Thoma-Platz) ist fußläufig zu erreichen und bietet ein breitgefächertes Gastronomie- und Einzelhandelsangebot.

Weitere Informationen

Bezug kurzfristig / nach Absprache Sonstiges Wir beraten Sie gerne bei Ihrer Suche nach Gewerbeflächen in der Metropolregion Rhein-Neckar: Von der Besprechung Ihrer Anforderungen über die Erstellung eines individuellen Übersichtsangebotes bis zum Vertragsabschluss begleiten wir Sie professionell.

Als einer der marktführenden Gewerbeimmobilienmakler in Mannheim, Heidelberg, Ludwigshafen und Umgebung basiert unsere Beratungskompetenz auf über 25 Jahren Markterfahrung und der erfolgreichen Vermittlung von hunderten Gewerbeflächen und Investmentobjekten.

Wir freuen uns auf Ihren Anruf unter 06221 - 750 42 40 oder Ihren Besuch auf www.rich-immobilien.de. Hier finden Sie auch weitere attraktive, größtenteils provisionsfreie Angebote, einen umfassenden Marktüberblick sowie unser Leistungsspektrum. Stichworte Sonstiges: EDV-Verkabelung, Kabelkanäle, EDV-Arbeitsplatzbeleuchtung, Getrennte Damen- und Herren-WCs

Weitere Services

Lust auf eine Besichtigung?
Eine Frage zur Immobilie?
Nachricht hinzufügen
Mit der Nutzung der oben angegebenen Telefonnummer oder durch Klicken auf „Kontaktieren“ akzeptierst Du die Allgemeinen Nutzungsbedingungen, denen Du jederzeit widersprechen kannst. Weitere Informationen zum Datenschutz

Über den Anbieter

Beethovenstraße 22, 69221 Dossenheim bei Heidelberg
partner badge
Partnerschaft
Herr Markus Rich
Herr Markus RichDein Kontakt
Online-ID: 2nutj5j
Referenznummer: 604/BüW3
RICH Immobilien GmbH & Co. KG
title
RICH Immobilien GmbH & Co. KG
Nachricht hinzufügen
Mit der Nutzung der oben angegebenen Telefonnummer oder durch Klicken auf „Kontaktieren“ akzeptierst Du die Allgemeinen Nutzungsbedingungen, denen Du jederzeit widersprechen kannst. Weitere Informationen zum Datenschutz
Wie zufrieden bist du mit dieser Seite (nicht mit der Immobilie selbst)?