Version: 8.24.0Navigation ĂĽberspringen
2.150.000 €
2.500 m² Lagerfläche
Immowelt logo

Produktionshalle zum Kauf
2150000 €
2.500 m² Lagerfläche

Investment mit Potenzial: Vollvermietetes Industrieareal in gefragter Lage von Kempen

Dieser vollvermietete Gewerbekomplex präsentiert sich als äußerst attraktives Investitionsobjekt. Der Komplex beherbergt eine Vielzahl von namenhaften Unternehmen, die das Gewerbegebiet zu einem florierenden Wirtschaftszentrum machen.

Das Gebäude präsentiert sich in einem zeitgemäßen und gut gepflegten Zustand. Es besteht aus insgesamt sieben Einheiten, die vielseitig nutzbar sind und eine Gesamtnutzfläche von ca. 2500 m² bieten. Die Architektur des Komplexes ist funktional und ansprechend zugleich, was den Bedürfnissen der ansässigen Unternehmen gerecht wird und gleichzeitig ein professionelles Erscheinungsbild vermittelt.

Die Nettomieteinnahmen belaufen sich auf beachtliche ca. 141.000 € pro Jahr, was die finanzielle Attraktivität dieses Investments unterstreicht. Die langfristigen Mietverträge mit etablierten Unternehmen bieten eine solide Grundlage für kontinuierliche Erträge und minimieren das Leerstandsrisiko.

Die Lage des Gewerbekomplexes auf dem Industriering Ost ist äußerst vorteilhaft. Die gute Anbindung an Verkehrswege und die Nähe zu wichtigen Infrastruktureinrichtungen machen den Standort sowohl für Unternehmen als auch für Mitarbeiter attraktiv. Darüber hinaus bietet das Gewerbegebiet eine angenehme Arbeitsumgebung mit ausreichend Parkplätzen und einer angenehmen Infrastruktur für die täglichen Bedürfnisse.

Insgesamt ist dieser vollvermietete Gewerbekomplex eine erstklassige Investitionsmöglichkeit für Anleger, die langfristige und stabile Erträge suchen. Mit namhaften Mietern, einer attraktiven Lage und solider Bauqualität bietet dieses Objekt ein hervorragendes Renditepotenzial.

Merkmale

  • vermietet
Die Mieten setzen sich entsprechend der jeweiligen Flächen- und Ausstattungsmerkmale zusammen, wobei eine angemessene Mietpreisgestaltung gewährleistet ist, um sowohl langfristige Mieterbindung als auch rentable Renditen für Investoren zu ermöglichen.

- Baujahr 1997
- Gas-Zentralheizung
- zwei Ebenen mit jeweils ca. 850 m² Bürofläche
- 1.400 m² Hallenfläche
- Räumlichkeiten in Süd- und Südwestlage sind klimatisiert
- Außenfläche gepflastert
- über 50 PKW Stellplätze

Aufstellung der Mietperteien:
1. Eines der führenden Großhandelsunternehmen der Zukunftsbranche für innovative Haus- und Gebäudetechnik - die monatliche Nettomiete beläuft sich auf: 4.167,00 €

2. Großküchenunternehmen welches sich auf die Planung, Entwicklung, Produktion und den Vertrieb von professionellen Großküchengeräten und -anlagen spezialisiert hat - die monatliche Nettomiete beläuft sich auf: 3.627,50 €

3. Ein dänisches Unternehmen, welches sich auf die Herstellung und den Vertrieb von Leuchten und Beleuchtungslösungen spezialisiert hat - die monatliche Nettomiete beläuft sich auf: 249,60 €

4. Fachgeschäft für E-Zigaretten und Zubehör - die monatliche Nettomiete beläuft sich auf: 900,00 €

5. Technischer Service für Medizinprodukte in Pflegeheimen, Kliniken und Krankenhäusern - die monatliche Nettomiete beläuft sich auf: 1.000,00 € (ab 01.05.2024)

6. Computerfachgeschäft sowie IT-Service und Support, Netzwerklösungen und Webdesign - die monatliche Nettomiete beläuft sich auf: 1.400,00 € (ab 01.04.2024)

7. Weitere Einheit - monatliche Nettomiete: 373,18 €

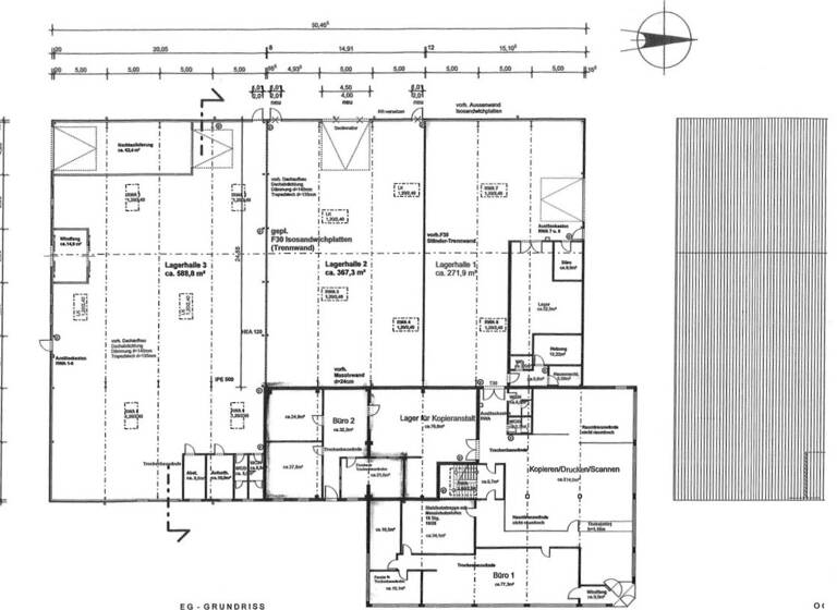
Grundrisse

Grundrisse
1 / 4

Realisiere Dein Projekt

Bausubstanz und Energie

Der Anbieter hat keine Informationen zu Energieverbrauch oder Zustand der Immobilie bereit gestellt.
Immowelt logo

Preisdetails

Kaufpreis
2150000 €
Provision für Käufer
3,57% vom Kaufpreis inklusive 19% Mehrwertsteuer
Geschätzte Gesamtkosten
2.226.755 €1
Kaufpreis
2.150.000 €
Provision für Käufer (3,57%)
76.755 €
1Der angezeigte Wert ist eine automatisch berechnete Schätzung von immowelt.
2Bei den Angaben handelt es sich um ortsübliche Werte. Individuelle Kosten können abweichen.

Lage

address-icon
Kempen (47906)
Der Anbieter hat die genaue Adresse nicht freigegeben
Das Gewerbegebiet "Industriering Ost" in Kempen, ist ein dynamisches Wirtschaftszentrum, das eine Vielzahl von Unternehmen und Industrien beheimatet. Gelegen im östlichen Teil von Kempen, bietet dieses Gewerbegebiet eine strategisch günstige Lage mit guter Anbindung an wichtige Verkehrswege.

Das Gebiet umfasst eine Vielzahl von Industrie- und Gewerbebetrieben unterschiedlicher Größen und Branchen, darunter Produktionsstätten, Lagerhallen, Bürogebäude und Dienstleistungsunternehmen.

Die Infrastruktur des Industrierings Ost ist ausgezeichnet, mit breiten StraĂźen, guter Beleuchtung und einfachem Zugang zu Autobahnen und HauptverkehrsstraĂźen. Dies erleichtert nicht nur den Transport von Waren und Materialien, sondern bietet auch Mitarbeitern und Kunden eine bequeme Anreise.

Darüber hinaus zeichnet sich das Gewerbegebiet durch eine moderne Ausstattung aus, einschließlich Breitband-Internetzugang, um den Anforderungen von Unternehmen an Kommunikation und Technologie gerecht zu werden. Zusätzlich gibt es in der Umgebung verschiedene Dienstleistungen wie Restaurants, Banken und Geschäfte, die den Bedürfnissen von Arbeitnehmern und Unternehmen entsprechen.

Die attraktive Lage, die gute Infrastruktur und die vielfältige Branchenvielfalt machen den Industriering Ost zu einem attraktiven Standort für Unternehmen, die Wert auf Effizienz, Innovation und Wachstum legen.

Weitere Informationen

Sonstiges Eine Besichtigung sagt mehr als jede Beschreibung. Bei Interesse zögern Sie daher nicht und vereinbaren Sie einen unverbindlichen Besichtigungstermin.

Die Angaben in diesem Exposé beruhen ganz oder zum Teil auf Informationen der Eigentümerin. Für die Vollständigkeit und Richtigkeit dieser Inhalte übernehmen wir trotz sorgfältiger Prüfung und Bearbeitung keine Gewähr. Schadensersatzansprüche aufgrund fehlerhafter Angaben sind ausgeschlossen. Stichworte Lagerfläche: 2.500,00 m², Gesamtfläche: 5.149,00 m²

Weitere Services

Lust auf eine Besichtigung?
Eine Frage zur Immobilie?
Nachricht hinzufĂĽgen
Mit der Nutzung der oben angegebenen Telefonnummer oder durch Klicken auf „Kontaktieren“ akzeptierst Du die Allgemeinen Nutzungsbedingungen, denen Du jederzeit widersprechen kannst. Weitere Informationen zum Datenschutz

Ăśber den Anbieter

Eschenweg 8, 41352 Korschenbroich
partner badge
Partnerschaft
Herr Andre ThielDein Kontakt
Online-ID: 2j57p5g
Referenznummer: AT21378
Andre Thiel - ATIS Immobilien
Andre Thiel - ATIS Immobilien
Bewertung: 4,5 von 5 Sternen
Nachricht hinzufĂĽgen
Mit der Nutzung der oben angegebenen Telefonnummer oder durch Klicken auf „Kontaktieren“ akzeptierst Du die Allgemeinen Nutzungsbedingungen, denen Du jederzeit widersprechen kannst. Weitere Informationen zum Datenschutz
Wie zufrieden bist du mit dieser Seite (nicht mit der Immobilie selbst)?