Version: 8.25.1Navigation überspringen
David Borck Immobiliengesellschaft mbH
239.000 €
2 Zimmer  •  176,4 m²  •  4. Geschoss

Wohnung zum Kauf • provisionsfrei
239000 €
1.358 €/m²
2 Zimmer  •  176,4 m²  •  4. Geschoss

Geräumiger Dachgeschossrohling mit Baugenehmigung für zwei Wohneinheiten

Dieser charmante Altbau aus dem Jahr 1905 beherbergt 13 Wohneinheiten. Darunter 10 vermietete, eine bezugsfreie und zwei freiwerdende Einheiten, ideal für Eigennutzer und Kapitalanleger. Die Wohnflächen reichen von ca. 51 m² bis ca. 95 m², verteilt auf 1 - 3 Zimmer. Sie begeistern mit gepflegten Dielenböden sowie charmanten Holzkassettentüren. Großzügige Fenster fluten die Räume mit natürlichem Licht und schaffen eine einladende Atmosphäre. Klimaanlagen bieten zusätzlichen Komfort, und einige Apartments sind mit Loggien, Abstellkammern und Tageslichtbädern ausgestattet.

Im Erdgeschoss ergänzt eine charmante Gewerbeeinheit das Angebot, mit einer Fläche von rund 56 m². Besonders hervorzuheben ist der unausgebaute Dachboden, der Potenzial für zwei weitere Wohneinheiten mit Flächen von ca. 45 m² und ca. 131 m² bietet.

Das gepflegte Gemeinschaftseigentum beeindruckt mit einem kunstvollen Eingangsbereich, dessen Wandfliesen mit floralen Jugendstil-Reliefs und Decken mit Stuckelementen verziert sind. Ein kürzlich neu verputzter Innenhof rundet das Angebot ab.

Merkmale

  • Bezug: sofort
  • 4. Geschoss
  • Balkon
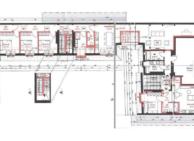
Dachrohling mit Ausbaupotenzial
insgesamt 176,39 m² genehmigte Wohnfläche
zwei Wohnungen im Planungsgrundriss erhalten
Dachterrasse mit ca. 5m² für den SFL genehmigt
Wohnfläche SFL: 131,09 m²
Wohnfläche VH 45,30 m²
Brandschutz liegt nicht vor
Aufzug nicht in Baugenehmigung enthalten
Gepflegtes Gemeinschaftseigentum

Grundrisse

Grundrisse
1 / 1

Realisiere Dein Projekt

Bausubstanz und Energie

Energieausweis

C
  • Baujahr1905
  • Zustand der ImmobilieGepflegt
  • HeizungsartEtagenheizung
  • EnergieträgerGas
MediumRectangleTop

Preisdetails

Kaufpreis
239000 €
1.358 €/m²
Provision für Käufer
provisionsfrei
Geschätzte Gesamtkosten
258.120 €1
Kaufpreis
239.000 €
Notarkosten (1,5%)
3.585 €
Grunderwerbsteuer (6%)
14.340 €
Grundbucheintrag (0,5%)
1.195 €
1Der angezeigte Wert ist eine automatisch berechnete Schätzung von immowelt.
2Bei den Angaben handelt es sich um ortsübliche Werte. Individuelle Kosten können abweichen.

Lage

address-icon
Mariendorfer Damm 76MariendorfBerlin (12109)
Nahe dem grünen Volkspark Mariendorf - einer der schönsten Erholungsflächen im Süden Berlins - bietet diese Wohnlage weit mehr als nur ein angenehmes Wohnumfeld. Mariendorf ist bekannt für eine harmonische Mischung aus urbanem Leben und entspanntem Wohnen. In der Umgebung finden sich zahlreiche Einkaufsmöglichkeiten, darunter das nahegelegene Hafencenter, das alles für den täglichen Bedarf bietet. Die kulinarische Vielfalt wird durch eine Auswahl an Cafés und Restaurants abgerundet, die zum Verweilen einladen.
Zusätzliche Lebensqualität bieten die Sportmöglichkeiten im Volkspark Mariendorf sowie die Nähe zum Tempelhofer Feld, das nur etwa 4 Kilometer entfernt liegt und Raum für vielfältige Aktivitäten bietet. Auch die beliebte Einkaufsmeile Schloßstraße in Steglitz ist in nur etwa 6 Kilometern erreichbar. Die Anbindung an den öffentlichen Nahverkehr ist hervorragend: Die U-Bahn-Station Westphalweg liegt eine Gehminute entfernt und verbindet die Lage optimal mit der Berliner Innenstadt.

Weitere Informationen

Stichworte Gesamtfläche: 176,39 m², Anzahl Balkone: 1, Bundesland: Berlin, 4 Etagen, Wohnungsnr.: DR

Weitere Services

Lust auf eine Besichtigung?
Eine Frage zur Immobilie?
Nachricht hinzufügen
Mit der Nutzung der oben angegebenen Telefonnummer oder durch Klicken auf „Kontaktieren“ akzeptierst Du die Allgemeinen Nutzungsbedingungen, denen Du jederzeit widersprechen kannst. Weitere Informationen zum Datenschutz

Über den Anbieter

Schlüterstr. 45, 10707 Berlin
Frau Celine Madani
Frau Celine MadaniDein Kontakt
Online-ID: 25T85VRI3JQC
Referenznummer: 5774/DR
David Borck Immobiliengesellschaft mbH
title
David Borck Immobiliengesellschaft mbH
Nachricht hinzufügen
Mit der Nutzung der oben angegebenen Telefonnummer oder durch Klicken auf „Kontaktieren“ akzeptierst Du die Allgemeinen Nutzungsbedingungen, denen Du jederzeit widersprechen kannst. Weitere Informationen zum Datenschutz
MediumRectangleTop
MediumRectangleBottom
MediumRectangleTop
Wie zufrieden bist du mit dieser Seite (nicht mit der Immobilie selbst)?