PROVISIONSFREI! Großzügige Büro-/ Praxisfläche im Einkaufs- und Gesundheitszentrum TONDO
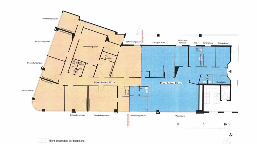
Es handelt sich hierbei um ein ca. 190 m² großes Objekt, das vormals über viele Jahre als Praxis für Neurochirugie genutzt wurde. Die Mietung befindet sich im 3. Obergeschoss und ist sowohl über zwei Treppenhäuser mit Fahrstuhl als auch über das Parkdeck zu erreichen. Durch die individuellen und unterschiedlichen Größenordnungen der jeweiligen Räumlichkeiten können vielseitige Konzepte für Firmen realisiert werden. Die Gewerbe-Einheit könnte auch vermieterseitig "entkernt" werden, um den zukünftigen Mieter eine Vielzahl von Möglichkeiten für den jeweiligen gewünschten Mietzweck der Fläche zu ermöglichen. Die Raumaufteilung kann aber auch bei Bedarf variabel gestaltet werden und es stehen für die Mieter und den potentiellen Kundenstamm ausreichend Pkw-Stellplätze auf dem Parkdeck zur Verfügung.
Merkmale
3. Geschoss
Personenaufzug
Einbauküche
530 Stellplätze: 530 Außen-Stellplätze
Raumaufteilung flexibel
Der Mietpreis für die zur Vermietung stehende Gewerbefläche variiert ab 14 EUR / m² zzgl. Nebenkosten und MwSt., je nach den mieterseitig gewünschten Ausstattungsmerkmalen.
Grundrisse
Grundrisse
1 / 1
Realisiere Dein Projekt
Bausubstanz und Energie
Energieausweis
Endenergieverbrauch (Wärme)
Baujahr2006
HeizungsartZentralheizung
EnergieträgerGas
Mietkosten
Nettomiete zzgl. Nebenkosten
14 €/m²
2.660 €
Provision für Mieter
provisionsfrei; Courtagefrei für den Mieter!
Kaution
12.887,70 €
Weitere Preisinformationen
530 Stellplätze Nebenkosten pro qm: 5,00 EUR
Lage
Tonndorf, Hamburg (22045)
Der Anbieter hat die genaue Adresse nicht freigegeben
Das viergeschossige Einkaufs- und Gesundheitszentrum "TONDO" wurde im Jahr 2006 erbaut und verfügt über eine Gesamtgröße von ca. 35.000 m² inklusive zwei Parkdecks mit über 530 Stellplätzen. In der Einkaufsmall im Erdgeschoss befinden sich ein ca. 6.500 m² großer REWE-Center und weitere Geschäfte für den täglichen Bedarf. Bereits im Gesundheitszentrum ansässig sind: Allgemeinmedizin, Internist, Gynäkologie, Orthopädie, HNO, Dermatologie, Augenheilkunde, Physiotherapie mit Fitnessstudio und Häusliche Pflege.
Weitere Informationen
Sonstiges
Alle Mietbeiträge sind zuzüglich der gesetzlichen Mehrwertsteuer.
Die Kaution beträgt 3-Bruttomonatsmieten.
Stichworte
Parkhaus vorhanden, Lage im Gewerbegebiet
Sonstiges: EDV-Verkabelung