

Wohnung zum Kauf - Erstbezug • als Kapitalanlage geeignet390000 €6.517 €/m²2 Zimmer • 59,8 m²
390000 €
6.517 €/m²
2 Zimmer • 59,8 m²
59,84 m² Dachgeschoß-Wohnung Top 6 - im Neubauprojekt - € 328.800,-- netto für Kapitalanleger
Merkmale
- Bezug: 2027
- 2. Geschoss
- Personenaufzug
- Garage, Außen-Stellplatz
- Balkon
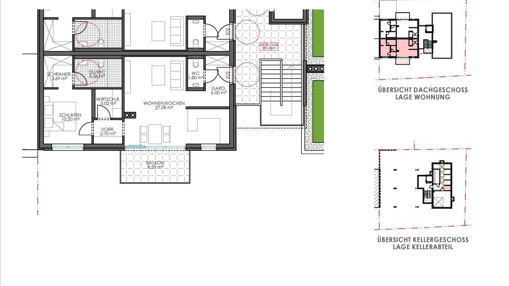
Grundrisse
Verschaffe dir einen genauen Überblick über die Raumaufteilung.

Bausubstanz und Energie
Möchtest du Details zum Energieverbrauch?

- Baujahr2026
- Zustand der ImmobilieErstbezug
- HeizungsartFußbodenheizung
Preisdetails
Kaufpreis
390000 €
6.517,38 €/m²
Provision für Käufer
3,6 % (inkl. 20 % MWSt.) Käuferprovision vom Kaufpreis gerechnet.
Lage

Hopfgarten im Brixental (6361)
Der Anbieter hat die genaue Adresse nicht freigegeben
Weitere Informationen
Weitere Services
Lust auf eine Besichtigung?
Eine Frage zur Immobilie?
Über den Anbieter
Edelweißstraße 1, 83666 Waakirchen
10 Jahre Partnerschaft
Herr Magister Frank PfeifferDein Kontakt
Online-ID: 24KRCLTT9PJE
Wie zufrieden bist du mit dieser Seite (nicht mit der Immobilie selbst)?


