Version: 8.25.1Navigation überspringen
24 €
141 m² Bürofläche
Immowelt logo

Bürofläche zur Miete
24 €
/m²
141 m² Bürofläche

Geschäftsimmobilie im Herzen von Innsbruck!

flexible Geschäftsfläche in bester Innenstadtlage - südliche Maria-Theresien-Straße,
Innenhoflage (Nord/ostseitig)

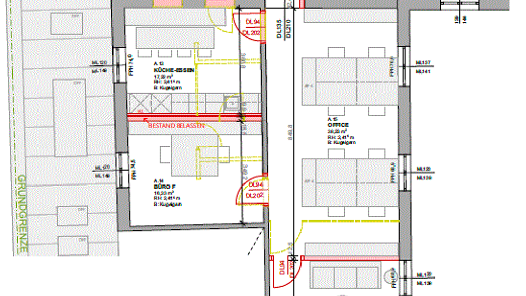
Flächenaufteilung
1.Obergeschoss (ca. 141 m²)
- vor ca. 2 Jahren kernsaniert (Böden, Elektrik, Sanitär, Leitungen etc.)
- bezugsfertig und hochwertig ausgestattet
- ideal für Büro, Kanzlei, Praxis oder ruhige Dienstleistung

Ausstattung & Besonderheiten
-zwei separate Zugänge (vorne und hinten) - ermöglicht flexible Raumaufteilung und Zugangsmöglichkeiten für unterschiedliche Nutzungen
-moderne Elektrik und Infrastruktur im Obergeschoss - ideal für eine hochwertige Büroumgebung mit sämtlichen modernen Anforderungen
-ruhige Innenhoflage mit zentralem Zugang - sorgt für eine angenehme und konzentrierte Arbeitsatmosphäre
-eine hochwertige, vom Tischler eingebaute Küche - ideal für Pausen oder kleine Besprechungen
-hochwertiger Kugelgarn Boden - strapazierfähig, pflegeleicht und ästhetisch ansprechend, perfekt für Büroflächen
-Steckdosen im Boden - sorgt für eine flexible Einrichtung und ermöglicht eine clevere Kabelverlegung ohne störende Wandmontagen

Hinweis:
Die Fläche ist Teil einer größeren Nutzungseinheit mit langfristigem Pachtvertrag (20 Jahre). Die Weitervermietung erfolgt im Einvernehmen mit der Eigentümerschaft durch den Hauptmieter im Wege der Submiete, was eine langfristige Nutzungssicherheit für den neuen Untermieter bietet.


Verkehr & Erreichbarkeit
-optimale Anbindung an den öffentlichen Verkehr (Bus, Straßenbahn)
-Tiefgaragen & Kurzparkzonen in unmittelbarer Umgebung
-Fahrradabstellplätze in der Nähe vorhanden

Zusammenfassung
Diese einzigartige Geschäftsimmobilie im Herzen der Innsbrucker Innenstadt bietet hohe Flexibilität, Top-Lage, Nutzungssicherheit durch langfristigen Hauptpachtvertrag und attraktive Konditionen. Ideal für Unternehmer, Kreative oder Dienstleister, die eine zentrale, individuell gestaltbare Immobilie mit Entwicklungspotenzial suchen.


Hinweis gemäß Energieausweisvorlagegesetz:
Ein Energieausweis wurde vom Eigentümer bzw. Verkäufer, nach Aufklärung über die ab 1.12.2012 geltende generelle Vorlagepflicht, noch nicht vorgelegt. Daher gilt zumindest eine dem Alter und der Art des Gebäudes entsprechende Gesamtenergieeffizienz als vereinbart. Wir übernehmen keinerlei Gewähr oder Haftung für die tatsächliche Energieeffizienz der angebotenen Immobilie.

Nebenkosten:
- Kaution (3 Bruttomonatsmieten)
- Errichtung des Mietvertrages
- Maklerhonorar lt. Maklerverordnung

Die Angaben erfolgen auf Grund der Informationen und Unterlagen die uns vom Eigentümer zur Verfügung gestellt wurden, und sind ohne Gewähr.

Damit wir Ihre Anfrage zügig bearbeiten können, bitten wir Sie um Ihre vollständigen Adressdaten sowie E-Mail-Adresse und wenn möglich um Angabe Ihrer Telefonnummer.

Merkmale

  • Bezug: nach Vereinbarung

Grundrisse

Verschaffe dir einen genauen Überblick über die Raumaufteilung.selection_property_house-icon

Realisiere Dein Projekt

Bausubstanz und Energie

Möchtest du Details zum Energieverbrauch?info_energy_calculation-icon
Immowelt logo

Mietkosten

Monatliche Miete
24 €/m²
Provision für Mieter
Maklerhonorar lt. Maklerverordnung
Kaution
keine Angabe

Lage

address-icon
Innsbruck (6020)
Der Anbieter hat die genaue Adresse nicht freigegeben
Die Immobilie befindet sich in erstklassiger Zentrumslage in der südlichen Maria-Theresien-Straße, einer der prominentesten Einkaufsstraßen Innsbrucks. Die Flächen liegen ostseitig in einem ruhigen, gut erreichbaren Innenhof - ein urbaner Rückzugsort mit gleichzeitig bester Erreichbarkeit. Zugangsmöglichkeiten bestehen sowohl von der Maria-Theresien-Straße als auch rückseitig, wodurch eine flexible Erschließung möglich ist.

Innsbruck liegt im Westen Österreichs und ist die Hauptstadt des Bundeslandes Tirol. Die Stadt befindet sich im Inntal, eingebettet zwischen den mächtigen Gebirgszügen der Alpen.

Im Norden wird sie von der Nordkette des Karwendelgebirges begrenzt, im Süden steigen die Ausläufer der Stubaier Alpen an. Der Fluss Inn fließt mitten durch die Stadt und prägt ihr Erscheinungsbild ebenso wie die umliegende Berglandschaft.

Durch ihre zentrale Lage im Alpenraum ist Innsbruck ein wichtiger Knotenpunkt zwischen Nord- und Südeuropa. Die geografische Lage verleiht der Stadt nicht nur eine besondere landschaftliche Schönheit, sondern macht sie auch zu einem bedeutenden Zentrum für Verkehr, Tourismus, Bildung und Sport.

Weitere Informationen

Sonstiges Wenn bei der Suche mehr angestrebt wird, als nur ein Dach über dem Kopf, braucht man einen starken Partner. Unsere Philosophie beruht auf individueller Kundenberatung und Problemlösung sowie der kreativen Umsetzung Ihrer Ideen. Profitieren Sie von unseren Vorteilen, um Ihren Traum vom Eigenheim wahr werden zu lassen.

Umfangreiche Kenntnisse der wirtschaftlichen Realität sowie eine realistische Einschätzung der aufzuwendenden Mittel und ein tadelloser Ruf sind die beste Voraussetzung für erfolgreiche Abschlüsse bei der Suche nach einem geeigneten zu Hause.

Bonne Apart ist die beste Adresse für individuelle Zufriedenheit ihrer Klienten.

Bonne Apart Group
Maria-Theresien-Straße 29 / 3. OG
6020 Innsbruck, Österreich

Telefon: 0512 909060
Fax: 0512 90906060
eMail: office@bonne-apart.at Stichworte Büroteilfläche: 141,00 m²

Weitere Services

Lust auf eine Besichtigung?
Eine Frage zur Immobilie?
Nachricht hinzufügen
Mit der Nutzung der oben angegebenen Telefonnummer oder durch Klicken auf „Kontaktieren“ akzeptierst Du die Allgemeinen Nutzungsbedingungen, denen Du jederzeit widersprechen kannst. Weitere Informationen zum Datenschutz

Über den Anbieter

Maria-Theresien-Straße 29/3.OG, 6020 INNSBRUCK
partner badge
Partnerschaft
Herr Bonne ApartDein Kontakt
Online-ID: 25GP3A9GGMGE
Referenznummer: IBA10796
Bonne Apart Immobilien & Projektmanagement GmbH
Bonne Apart Immobilien & Projektmanagement GmbH
Bewertung: 5 von 5 Sternen
Nachricht hinzufügen
Mit der Nutzung der oben angegebenen Telefonnummer oder durch Klicken auf „Kontaktieren“ akzeptierst Du die Allgemeinen Nutzungsbedingungen, denen Du jederzeit widersprechen kannst. Weitere Informationen zum Datenschutz
Wie zufrieden bist du mit dieser Seite (nicht mit der Immobilie selbst)?