Version: 8.24.0Navigation ĂĽberspringen
10 €
Immowelt logo

GrundstĂĽck zum Kauf
10 €

Insel Solta - Baugrundstück, Fläche = 2.086 m² mit Haus

Zum Verkauf steht ein attraktives Baugrundstück mit einer Fläche von m² in exklusiver Lage, direkt am Meer auf der Insel Solta.
Auf dem Grundstück befindet sich ein legales Haus mit 108 m².

Vorteile:

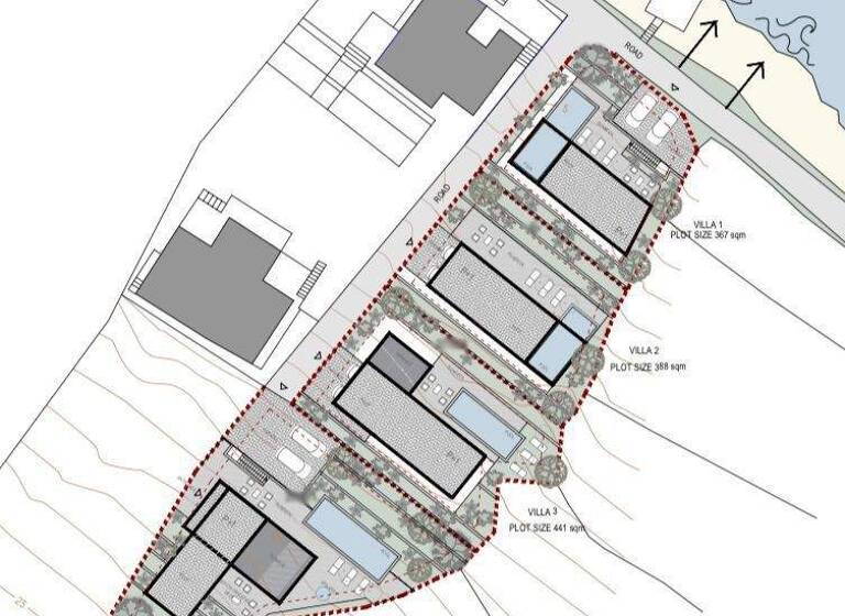
Möglichkeit zum Bau von 3-4 Luxusvillen mit offenem Meerblick
Möglichkeit zur Parzellierung in kleinere Grundstücke
Geregeltes Eigentum - 1/1
Direkter Zugang zum Meer und zu einer kristallklaren Bucht

Dieses Grundstück stellt eine hervorragende Investitionsmöglichkeit dar - sei es für eine private Residenz, Luxusvillen oder eine touristische Anlage.
Die ruhige Lage, unberührte Natur und die Nähe zu allen Annehmlichkeiten machen dieses Grundstück einzigartig auf dem Markt.

Die Maklerprovision beträgt 3 % des erzielten Kaufpreises.
FĂĽr weitere Informationen und zur Vereinbarung einer Besichtigung kontaktieren Sie uns gerne.

ID CODE: 258

Grundrisse

Grundrisse
1 / 1

Realisiere Dein Projekt

Bausubstanz und Energie

Der Anbieter hat keine Informationen zu Energieverbrauch oder Zustand der Immobilie bereit gestellt.
Immowelt logo

Preisdetails

Kaufpreis
10 €
Provision für Käufer
Bitte beachte, das Angebot kann bei Vertragsabschluss die Zahlung einer Provision beinhalten. Weitere Informationen erhältst Du vom Anbieter.

Lage

address-icon
Solta (21430)
Der Anbieter hat die genaue Adresse nicht freigegeben

Weitere Informationen

Stichworte Gesamtfläche: 2.086,00 m², Nebenzentrumslage

Weitere Services

Lust auf eine Besichtigung?
Eine Frage zur Immobilie?
Nachricht hinzufĂĽgen
Mit der Nutzung der oben angegebenen Telefonnummer oder durch Klicken auf „Kontaktieren“ akzeptierst Du die Allgemeinen Nutzungsbedingungen, denen Du jederzeit widersprechen kannst. Weitere Informationen zum Datenschutz

Ăśber den Anbieter

LABIN d.o.o.MaklerbĂĽro
Prilaz Kikova 4, 52220 LABIN
partner badge
Partnerschaft
Andro JakolisDein Kontakt
Online-ID: 2nxsh5l
Referenznummer: 4565-258
LABIN d.o.o.
Nachricht hinzufĂĽgen
Mit der Nutzung der oben angegebenen Telefonnummer oder durch Klicken auf „Kontaktieren“ akzeptierst Du die Allgemeinen Nutzungsbedingungen, denen Du jederzeit widersprechen kannst. Weitere Informationen zum Datenschutz
Wie zufrieden bist du mit dieser Seite (nicht mit der Immobilie selbst)?