Direkt im Herzen der Stadt Essen entsteht durch die Revitalisierung des Königshofs ein architektonisches Highlight!
Durch die Natursteinoptik der neuen Fassade werden bewusst Stilelemente des ehemaligen DEFAKA Geschäftshauses aufgegriffen, welches von 1937 -1976 das Essener Innenstadtbild prägte. 1976 wich das traditionsreiche Haus einem Neubau für die Kaufhauskette Horten, der bis vor Kurzem überwiegend als Warenhaus genutzt wurde.
Das neue Gebäudekonzept sieht im im Erd- und Untergeschoss eine hochwertige Markthalle samt verschiedener Gastronomiekonzepte sowie Supermärkten und Drogerien vor. Neben der Aufwertung des Willy-Brandt-Platzes wird die Außenbestuhlung der Erdgeschoßgastronomie zum Verweilen einladen.
In den oberen Geschossen entstehen repräsentative Büroflächen, die durch ein neues und überdachtes Atrium lichtdurchflutet sein werden. Offene Geschossdecken kombiniert mit sichtbarer Haustechnik verleihen den Flächen einen einzigartigen Industrie- und Loftcharme.
Variable Raumkonzepte wie Zellen-, Kombi- oder Großraumbüros können flexibel und nutzerspezifisch umgesetzt werden, so dass ein attraktives Arbeitsumfeld geschaffen wird.
Selbstverständlich wird gemeinsam mit einem Architektenteam auf die individuellen Bedürfnisse des Mieters eingegangen.
Folgende Büroflächen stehen derzeit zur Disposition:
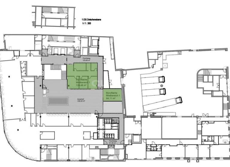
1. Obergeschoss: ca. 248 m² 3. Obergeschoss: ca. 765 m² 4. Obergeschoss: ca. 2.114 m² 5. Obergeschoss: ca. 1.932 m²
Summe: ca. 5.059 m²
Merkmale
Bezug: nach Vereinbarung
Parkhaus
Die Büroflächen werden in hochwertiger Ausstattungsqualität vermietet. Individuelle Sonderwünsche können gerne berücksicht werden.
Ausstattungsmerkmale:
- Bodenbelag nach Mieterwunsch - Verkabelung über Bodentanks - Kühlung über abgehängte Heiz-Kühldeckensegel - Be- und Entlüftung mit 4-fachen Luftwechsel in den Besprechungsräumen - Sonnenschutzverglasung und Blendschutz innen - Einbauküche nach Vereinbarung - LED Standleuchten - Personenaufzug - Fernwärme - barrierearm - Deckenhöhe über 3,00 m
Grundrisse
Grundrisse
1 / 4
Realisiere Dein Projekt
Bausubstanz und Energie
Möchtest du Details zum Energieverbrauch?
Baujahr1976/2024
Mietkosten
Nettomiete zzgl. Nebenkosten
nicht angegeben
Nebenkosten
3,50 €
Zusätzliche Kosten
Heizkosten
Provision für Mieter
provisionsfrei
Kaution
keine Angabe
Lage
Stadtkern, Essen (45127)
Der Anbieter hat die genaue Adresse nicht freigegeben
Fußweg zu Öffentl. Verkehrsmitteln: 1 Min. Fußweg zum nächsten Hbf:1 Min. Fahrzeit zur nächsten Autobahn: 4 Min. Fahrzeit zum nächsten Flughafen: 25 Min.
Weitere Informationen
Sonstiges
GEG 2020: Ein Energieausweis liegt zurzeit nicht vor.
Dieses Angebot ist provisionsfrei für den Mieter!
Alle Informationen in diesem Exposé beruhen auf Angaben, die wir vom Vermieter erhalten haben. Für Richtigkeit und Vollständigkeit übernehmen wir keine Gewähr. Zwischenvermietung vorbehalten. Die Grundrisse müssen nicht mit der aktuellen Raumaufteilung übereinstimmen und sind unmaßstäblich. Für Flächenangaben übernehmen wir keine Gewähr. In Planunterlagen eventuell abgebildete Möblierungen sind nicht Inhalt des Mietgegenstands.
Es gelten ausschließlich unsere AGB (www.cubion.de/agb).