Version: 8.25.1Navigation überspringen
179.999 €
Immowelt logo

Grundstück zum Kauf
179999 €

Grundstück mit gültiger Genehmigung für den Bau von Wohnungen und bezahlten Versorgungsgebühren

In bester Lage im Stadtgebiet von Zagreb mit herrlichem Blick auf die Stadt steht ein Baugrundstück mit gültiger Baugenehmigung für Wohnungen zum Verkauf.

Das Grundstück ist geräumt und eingezäunt und verfügt über eine Zufahrtsstraße mit Nutzungsgenehmigung.

Die gesamte notwendige Infrastruktur, inklusive eines neuen Umspannwerks, befindet sich in unmittelbarer Nähe.

Für das Grundstück liegt eine gültige Baugenehmigung vor, die bei Bedarf angepasst werden kann. Die Bruttogeschossfläche (BGF) beträgt 400 m² pro Grundstück, die Nettoverkaufsfläche pro Gebäude ist jedoch größer und beträgt ca. 420 m².

Alle Nebenkosten und Gebühren sind bezahlt.

Der erwartete Verkaufspreis der Wohnungen liegt bei ca. 3.500,00 €/m² (inkl. MwSt.).

Das Grundstück kann nach Wunsch des zukünftigen Investors auch für den Bau von Einfamilienhäusern mit Swimmingpool genutzt werden.

Sollten die bestehenden Projekte nicht den Vorstellungen potenzieller Investoren entsprechen, entwickelt der Verkäufer neue Projekte und beantragt die entsprechenden Baugenehmigungen.

Es stehen vier Grundstücke zur Verfügung. Für ernsthafte Investoren ist der Endpreis verhandelbar. Die Mehrwertsteuer ist im angegebenen Preis enthalten.

Für die vollständige Dokumentation und weitere Informationen kontaktieren Sie uns bitte.

Die Immobilie kann ausschließlich nach Unterzeichnung eines Vermittlungsvertrags besichtigt werden, der die Grundlage fu?r das weitere Verfahren im Zusammenhang mit dem Kauf und Verkauf sowie der Provisionserhebung gema?ß dem Gesetz u?ber die Immobilienvermittlung bildet.
Im Falle eines Kaufvertrags betra?gt die Vermittlungsgebu?hr 3% ohne Mehrwertsteuer und wird sowohl vom Ka?ufer als auch vom Verka?ufer bei der Unterzeichnung des Vorvertrags/Kaufvertrags erhoben.

ID CODE: 104

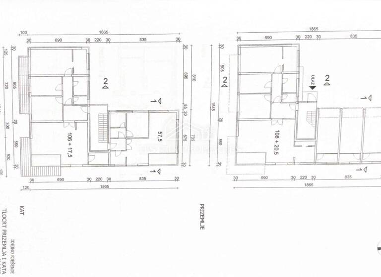
Grundrisse

Grundrisse
1 / 1

Realisiere Dein Projekt

Bausubstanz und Energie

Möchtest du Details zum Energieverbrauch?info_energy_calculation-icon
Immowelt logo

Preisdetails

Kaufpreis
179999 €
Provision für Käufer
Bitte beachte, das Angebot kann bei Vertragsabschluss die Zahlung einer Provision beinhalten. Weitere Informationen erhältst Du vom Anbieter.

Lage

address-icon
Stenjevec (10000)
Der Anbieter hat die genaue Adresse nicht freigegeben

Weitere Informationen

Stichworte Gesamtfläche: 773,00 m², Stadtzentrumslage

Weitere Services

Lust auf eine Besichtigung?
Eine Frage zur Immobilie?
Nachricht hinzufügen
Mit der Nutzung der oben angegebenen Telefonnummer oder durch Klicken auf „Kontaktieren“ akzeptierst Du die Allgemeinen Nutzungsbedingungen, denen Du jederzeit widersprechen kannst. Weitere Informationen zum Datenschutz

Über den Anbieter

Prilaz Kikova 4, 52220 LABIN
partner badge
Partnerschaft
Sanel BudimlicDein Kontakt
Online-ID: 25YVEM8T4L5I
Referenznummer: 3162-104
LABIN d.o.o.
Nachricht hinzufügen
Mit der Nutzung der oben angegebenen Telefonnummer oder durch Klicken auf „Kontaktieren“ akzeptierst Du die Allgemeinen Nutzungsbedingungen, denen Du jederzeit widersprechen kannst. Weitere Informationen zum Datenschutz
Wie zufrieden bist du mit dieser Seite (nicht mit der Immobilie selbst)?