Bürofläche zur Miete4,90 €/m²654,9 m² Bürofläche • teilbar ab 137,7 m²
4,90 €
/m²
654,9 m² Bürofläche • teilbar ab 137,7 m²
Großzügige Büroflächen, Klimaanlage, XXL Stellplätze, Außenlager
Merkmale
- Einbauküche
- Bodenbelag: Teppich
- 10 Stellplätze: 10 Außen-Stellplätze
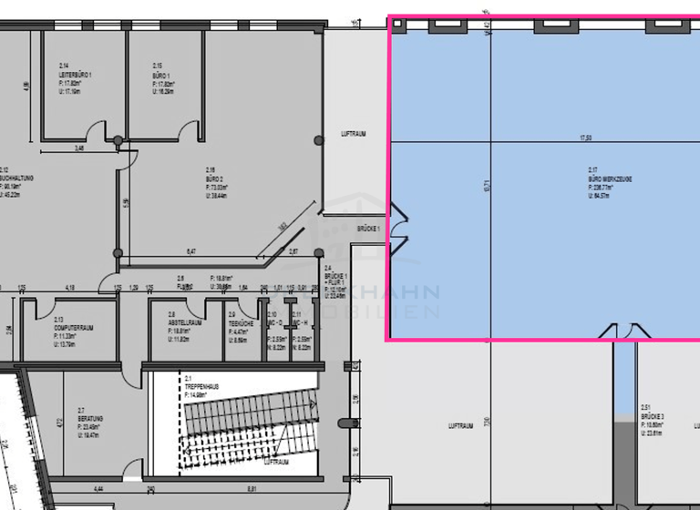
Grundrisse
Grundrisse
1 / 2
Bausubstanz und Energie
Möchtest du Details zum Energieverbrauch?

- Baujahr1992
- Zustand der ImmobilieGepflegt
- HeizungsartZentralheizung
- EnergieträgerÖl
Mietkosten
Monatliche Miete
4,90 €/m²
Nebenkosten
4,50 €
Heizkosten
in Warmmiete enthalten
Provision für Mieter
3,57 Bruttowarmmieten inkl. gesetzl. MwSt.
Der Makler-Vertrag mit unserem Unternehmen entsteht durch schriftliche Vereinbarung oder durch die Inanspruchnahme unserer Maklertätigkeit. Weitere Informationen siehe Provisionshinweis.
Der Makler-Vertrag mit unserem Unternehmen entsteht durch schriftliche Vereinbarung oder durch die Inanspruchnahme unserer Maklertätigkeit. Weitere Informationen siehe Provisionshinweis.
Kaution
keine Angabe
Weitere Preisinformationen
10 Stellplätze
Lage

Industriestraße 11, Schmarl, Rostock (18069)
Weitere Informationen
Weitere Services
Lust auf eine Besichtigung?
Eine Frage zur Immobilie?
Über den Anbieter
Rosa-Luxemburg-Str. 9, 18055 Rostock
3 Jahre Partnerschaft
Herr Steffen Göllnitz, Betriebswirt (VWA)Dein Kontakt
Online-ID: 23R3F97ADZ4F
Referenznummer: 8560
Wie zufrieden bist du mit dieser Seite (nicht mit der Immobilie selbst)?


