Version: 8.25.1Navigation überspringen
549.000 €
5 Zimmer  •  149,2 m²  •  684 m² Grundstück
Immowelt logo

Einfamilienhaus zum Kauf
549000 €
3.681 €/m²
5 Zimmer  •  149,2 m²  •  684 m² Grundstück

Wunderschönes, modernes Einfamilienhaus mit Südausrichtung in familienfreundlicher Sackgassenlage!

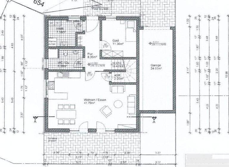
Erdgeschoss: Beim Betreten des Hauses empfängt Sie ein einladender, heller Flur mit praktischem Garderobenbereich.
Zur rechten Seite befindet sich der Hauswirtschaftsraum mit großzügigem Stauraum für Technik, Wäsche und Vorräte. Angrenzend daran liegt ein modernes Gäste-WC mit bodentiefer Dusche. Auf der linken Seite des Flures befindet sich ein flexibel nutzbares Zimmer, das sich ideal als Büro oder Gästezimmer eignet.
Der Flur führt Sie weiter in den großzügigen, offen gestalteten Wohnbereich. Hier verbinden sich Wohnzimmer, Küche und Essbereich zu einem hellen Mittelpunkt des Hauses. Die moderne Einbauküche bietet viel Platz zum gemeinsamen Kochen und Verweilen. Große Fensterfronten öffnen den Blick nach draußen und ermöglichen den direkten Zugang zur weitläufigen, überdachten Terrasse.
Abgerundet wird das Erdgeschoss durch einen praktischen Abstellraum unter der Treppe, der zusätzlichen Stauraum bietet.

Obergeschoss: Die Treppe hoch gelangen Sie in das Obergeschoss der Immobilie. Hier erwarten Sie zwei helle Kinderzimmer, die perfekte Rückzugsorte zum Spielen, Lernen und Wohlfühlen bieten.
Das angrenzende Elternschlafzimmer überzeugt mit einem separaten Ankleidebereich, der für zusätzlichen Komfort sorgt.
Abgerundet wird das Obergeschoss durch das weitläufige Familienbad, das mit bodentiefer Dusche, Badewanne und Doppelwaschbecken ausgestattet ist, eine echte Wohlfühloase, die keine Wünsche offenlässt.

Merkmale

  • 684 m² Grundstück
  • Einbauküche
  • Gäste-WC
  • Garten
  • 4 Stellplätze: 4 Außen-Stellplätze
- Moderne Einbauküche
- Großzügige, überdachte Terrasse mit elektrischem Sonnenschutz für entspannte Stunden im Freien
- Komfortable Fußbodenheizung im gesamten Haus
- Ca. 8 m lange Garage
- Wallbox vor der Garage für umweltfreundliches Laden von E-Fahrzeugen
- Ansprechende Zuwegung im Vorgarten mit Holzgestaltung
- Pflegeleichte Gehwegplatten rund um das Haus
- Offener Gartenunterstand
- Moderne Bäder mit bodentiefen Duschen und hochwertiger Ausstattung

Grundrisse

Grundrisse
1 / 2

Realisiere Dein Projekt

Bausubstanz und Energie

Energieausweis

Der Anbieter hat keine Daten zum Energieausweis hinterlegt.
  • Baujahr2020
  • Zustand der Immobilieneuwertig
  • HeizungsartFußbodenheizung
  • EnergieträgerLuft-/Wasser-Wärmepumpe
Immowelt logo

Preisdetails

Kaufpreis
549000 €
3.680,86 €/m²
Provision für Käufer
3,57 % inkl. MwSt.
Weitere Preisinformationen
4 Stellplätze
Geschätzte Gesamtkosten
615.264 €1
Kaufpreis
549.000 €
Notarkosten (1,5%)
8.235 €
Grunderwerbsteuer (6,5%)
35.685 €
Provision für Käufer (3,57%)
19.599 €
Grundbucheintrag (0,5%)
2.745 €
1Der angezeigte Wert ist eine automatisch berechnete Schätzung von immowelt.
2Bei den Angaben handelt es sich um ortsübliche Werte. Individuelle Kosten können abweichen.

Lage

address-icon
MarienfeldMuch / Marienfeld (53804)
Der Anbieter hat die genaue Adresse nicht freigegeben
Das charmante Einfamilienhaus liegt in Marienfeld, einem gemütlichen Ortsteil der Gemeinde Much im Rhein-Sieg-Kreis.
Die Nachbarschaft ist geprägt von gepflegten Ein- bis Zweifamilienhäusern und viel Grün. In Marienfeld gibt es einen Kindergarten, eine Grundschule, eine Bäckerei, eine Hausarztpraxis, Physiotherapie, ein Pflegeheim, Friseure sowie eine Poststelle mit Schreibwarenhandel.

Einkaufsmöglichkeiten, Geschäfte und Infrastruktur des alltäglichen Bedarfs sind in Much mehrfach vorhanden und durch die Wahnbachtalstraße gut und schnell zu erreichen. Auch durch die Busanbindungen sowie einem separaten Gemeindebus sind die 3 Kilometer nach Much nicht weit entfernt. Restaurants und Sportmöglichkeiten sind vielfältig vorhanden, wie zum Beispiel der Golf-Club, das Schwimmbad oder das Fitnessstudio.

Auch die Ortschaften Seelscheid, Neunkirchen und Drabenderhöhe sind gut erreichbar. Autobahnanschlussstellen auf die A3 (Köln/Frankfurt) und A4 (Gummersbach/Olpe) sind in Overath, Lohmar und Drabenderhöhe vorhanden.
Bahnanbindungen nach Köln und Frankfurt werden durch den Hauptbahnhof in Siegburg und Overath abgedeckt. Der Flughafen Köln/Bonn ist ca. 30 Kilometer entfernt.

Weitere Informationen

Sonstiges Weitere Immobilienangebote finden Sie unter www.wohnsache-immobilien.de Stichworte Garage vorhanden, Stellplatz vorhanden, Nutzfläche: 30,65 m², Gesamtfläche: 179,80 m², Anzahl der Schlafzimmer: 4, Anzahl der Badezimmer: 2, Bundesland: Nordrhein-Westfalen, 2 Etagen, Distanz zum Flughafen: 36.39, Distanz zum Hauptbahnhof: 18.26, Distanz zum Bus: 0.14

Weitere Services

Lust auf eine Besichtigung?
Eine Frage zur Immobilie?
Nachricht hinzufügen
Mit der Nutzung der oben angegebenen Telefonnummer oder durch Klicken auf „Kontaktieren“ akzeptierst Du die Allgemeinen Nutzungsbedingungen, denen Du jederzeit widersprechen kannst. Weitere Informationen zum Datenschutz

Über den Anbieter

Wahnbachtalstraße 7-8, 53804 Much
Frau Marie Brock
Frau Marie BrockDein Kontakt
Online-ID: 25FFS3BFVKNQ
Referenznummer: 9006727
WohnSache Immobilien
title
WohnSache Immobilien
Bewertung: 4,6 von 5 Sternen
Nachricht hinzufügen
Mit der Nutzung der oben angegebenen Telefonnummer oder durch Klicken auf „Kontaktieren“ akzeptierst Du die Allgemeinen Nutzungsbedingungen, denen Du jederzeit widersprechen kannst. Weitere Informationen zum Datenschutz
Wie zufrieden bist du mit dieser Seite (nicht mit der Immobilie selbst)?