Version: 8.22.4Navigation überspringen
785 €
3 Zimmer  •  72,3 m²  •  1. Geschoss
Immowelt logo

Wohnung zur Miete - Erstbezug
785.23 €
Nettokaltmiete
3 Zimmer  •  72,3 m²  •  1. Geschoss

Geförderte Genossenschafts-Wohnungen mit Kaufoption

_GEFÖRDERTE GENOSSENSCHAFTS-WOHNUNGEN MIT KAUFOPTION_

 

_Die Dobermannsdorfer Straße liegt in einem gepflegten Wohngebiet, in dem Einkaufsmöglichkeiten, Ärzte und Schulen in wenigen Minuten erreichbar sind. _

 

In Palterndorf, Dobermannsdorfer Straße 394, entsteht eine moderne Wohnhausanlage mit 16 geförderten Wohnungen in zeitgemäßer Niedrigenergiebauweise. Acht der Wohnungen sind barrierefrei gestaltet und werden zur Miete angeboten.
Die weiteren acht Wohneinheiten sind barrierefrei anpassbar konzipiert und bieten die Möglichkeit zum späteren Erwerb - kein Soforteigentum.

Die 2- bis 3-Zimmer-Wohnungen bieten Wohnnutzflächen von ca. 51 bis 72 m² und verfügen jeweils über eine eigene Freifläche  in Form von Terrasse, Loggia, Balkon oder Dachterrasse.  

Jeder Wohnung ist ein PKW-Abstellplatz im Freien zugeordnet. Zusätzlich stehen ein  Fahrradabstellraum, ein Müllraum sowie ein gemeinschaftlicher Kinderspielplatz zur  Verfügung.

Ein zukunftsorientiertes Energiekonzept mit Luft-Wasser-Wärmepumpe, Photovoltaikanlage, Fußbodenheizung und kontrollierter Wohnraumlüftung mit Wärmerückgewinnung sorgt für nachhaltigen Wohnkomfort.

 

Palterndorf ist eine lebendige Gemeinde im Bezirk Gänserndorf und besticht durch ihre ruhige, naturnahe Lage mit guter Anbindung an umliegende Städte. Die Gemeinde hat ca. 1.200 Einwohner und bietet eine angenehme Mischung aus ländlichem 
Charme und zeitgemäßer Infrastruktur.

 

Diese Wohnhausanlage wurde mit einer Bundesförderung gefördert! Die Mieter müssen den Förderkriterien entsprechen und hier ihren Hauptwohnsitz begründen.

 

_MIETE  mit  KAUFRECHT_

 

_FERTIGSTELLUNG: VORAUSSICHTLICH 2. QUARTAL 2026_

 

Mit Bezahlung des Finanzierungsbeitrages erwerben Sie das Optionsrecht zum Kauf der gemieteten Wohneinheit.

 

_Folgende Wohneinheiten stehen zur Verfügung:_

 

W1-04

Wohnfläche 51,70 m²

Eigengarten: 26,92 m²

Finanzierungsbeitrag: € 19.113,27

Miete: € 607,05

 

W1-07

Wohnfläche 72,31 m²

Finanzierungsbeitrag: € 27.792,03

Miete: € 863,75

 

W1-10

Wohnfläche 51,70 m²

Finanzierungsbeitrag: € 20.570,86

Miete: € 616,86

 

W1-12

Wohnfläche 71,42 m²

Finanzierungsbeitrag: € 17.433,78

Miete: € 784,76

 

W1-15

Wohnfläche 55,88 m²

Finanzierungsbeitrag: € 26.364,31

Miete: € 697,67

 

 

Für den KFZ-Abstellplatz kommen noch € 20,00 zur Miete dazu

 

Wohnzuschuss (abhängig vom Familieneinkommen) möglich.

 

 

In den Mietkosten sind Betriebskosten, Erhaltungs-und Verbesserungsbeitrag, Verwaltungskosten und Ust. enthalten. Energiekosten, wie Strom, Heizung und Warmwasser wird direkt mit den Betreibern abgerechnet.

 

Betriebskosten:   Die Gemeinnützige Bauvereinigung wird vorerst in der Funktion als Liegenschaftseigentümerin (Bauberechtigte) und Verwalterin die mit der Liegenschaft verbundenen Betriebskostenaufwendungen pro Kalenderjahr im Vorhinein schätzen und in monatlichen Teilbeträgen zur Vorschreibung bringen. Zu den Betriebskostenaufwendungen gehören insbesondere:
Öffentliche Abgaben (Kanal-, Müll-, Wassergebühr, Grundsteuer), Versicherungsaufwand (Feuer-, Haftpflicht-, Leitungswasser- u. Sturmschadenversicherung jeweils zum Neuwert), allgemeine Stromkosten (Stiegenhaus, Keller, Außenbeleuchtung), Kosten der Betreuung und Erhaltung der allgemeinen Außenanlagen (z. B. Kinderspielplätze, Grünflächen, Müllplätze u.dgl.), Rauchfangkehrergebühr, gegebenenfalls Kosten einer Liftanlage etc.

Im Betriebskostenakonto sind die Kosten einer Hausbetreuung (Stiegenhausreinigung, Winterdienst, Grünflächenpflege) nur als Schätzung berücksichtigt. Je nach Beauftragung dieser Arbeiten (eine oder mehrere Personen, gegebenenfalls auch eine  Firma) sind diese Kosten variabel.
 

 

Für Rückfragen und Besichtigung stehe ich Ihnen unter der Tel. Nr. 0664 / 621 20 58  selbstverständlich gerne zur Verfügung.

 

Unsere Angaben erfolgen aufgrund der Informationen und Unterlagen, welche uns vom Abgeber oder dessen Beauftragten zur Verfügung gestellt wurden und sind ohne Gewähr.

 

 

IHRE IMMOBILIENTRÄUME.

UNSER ZIEL!

WWW.REALBROKERS.AT

Wir weisen darauf hin, dass zwischen dem Vermittler und dem zu vermittelnden Dritten ein familiäres oder wirtschaftliches Naheverhältnis besteht.

Der Immobilienmakler erklärt, dass er - entgegen dem in der Immobilienwirtschaft üblichen Geschäftsgebrauch des Doppelmaklers - einseitig nur für den Vermieter tätig ist.

Infrastruktur / Entfernungen

Gesundheit
Arzt <3.000m
Apotheke <7.000m

Kinder & Schulen
Schule <500m
Kindergarten <1.000m

Nahversorgung
Supermarkt <1.000m
Bäckerei <3.000m

Sonstige
Bank <500m
Geldautomat <500m
Post <1.000m
Polizei <6.500m

Verkehr
Bus <500m
Bahnhof <6.500m

Angaben Entfernung Luftlinie / Quelle: OpenStreetMap

Merkmale

  • Bezug: 2. Quartal 2026
  • 1. Geschoss
  • Personenaufzug
  • Außen-Stellplatz
  • Terrasse
  • Badewanne
  • Bodenbelag: Fliesen, Laminat
  • voll erschlossen

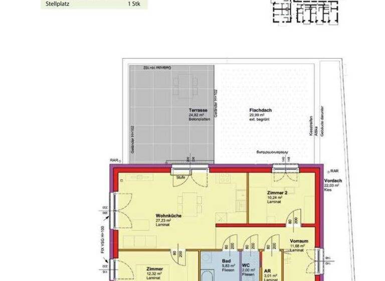
Grundrisse

Grundrisse
1 / 2

Realisiere Dein Projekt

Bausubstanz und Energie

Heizwärmebedarf (HWB)

A

Gesamtenergieeffizienz (fGEE)

A+
  • Baujahr2025
  • Zustand der ImmobilieNeubau, Erstbezug
  • HaustypNiedrigenergiehaus
  • HeizungsartFußbodenheizung
  • EnergieträgerLuft-/Wasser-Wärmepumpe
Immowelt logo

Mietkosten

Gesamtmiete
863,75 €
Nettokaltmiete zzgl. Betriebskosten
10,86 €/m²
785,23 €
Kaution
keine Angabe
Weitere Preisinformationen
1 Stellplatz
Nettokaltmiete: 785,23 EUR

Lage

address-icon
Palterndorf (2182)

Weitere Informationen

Stichworte Stellplatz vorhanden, Nord-Ost-Balkon/Terrasse, Fahrradraum, Rolladen, Anzahl der Badezimmer: 1, Anzahl der separaten WCs: 1, Anzahl Terrassen: 1, Balkon-Terrassen-Fläche: 24,82 m², Kellerfläche: 3,14 m², Bundesland: Niederösterreich, Wohnungsnr.: W 07

Weitere Services

Lust auf eine Besichtigung?
Eine Frage zur Immobilie?
Nachricht hinzufügen
Mit der Nutzung der oben angegebenen Telefonnummer oder durch Klicken auf „Kontaktieren“ akzeptierst Du die Allgemeinen Nutzungsbedingungen, denen Du jederzeit widersprechen kannst. Weitere Informationen zum Datenschutz

Über den Anbieter

Braitnerstraße 41 Büro 1A, 2500 BADEN
partner badge
Partnerschaft
Frau Claudia KollerDein Kontakt
Online-ID: 2mt5p5j
Referenznummer: OBGC2025120110225935579684d8675
realbrokers immobilien dienstl. GmbH & Co KG
Bewertung: 4,6 von 5 Sternen
Nachricht hinzufügen
Mit der Nutzung der oben angegebenen Telefonnummer oder durch Klicken auf „Kontaktieren“ akzeptierst Du die Allgemeinen Nutzungsbedingungen, denen Du jederzeit widersprechen kannst. Weitere Informationen zum Datenschutz
Wie zufrieden bist du mit dieser Seite (nicht mit der Immobilie selbst)?