Haus im Haus Charakter! Moderne Maisonette-Wohnung in Bonn-Mehlem!
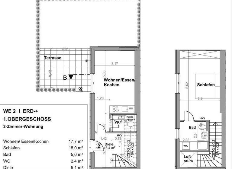
Willkommen in dieser exklusiven Maisonette-Wohnung mit eigener Terrasse, eigenem Gartenanteil und separatem Zugang in Bonn-Mehlem. Die Wohnung befindet sich in einem dreigeschossigen 4-Parteienhaus, das komplett entkernt und nach den neuesten Baustandards wieder aufgebaut wurde. Diese moderne Wohnung besticht durch ihren Haus-in-Haus-Charakter und ihre hochwertige Ausstattung. Im Erdgeschoss befindet sich ein Gäste-WC, während das Badezimmer im 1. Obergeschoss mit einer bodentiefen Dusche und einem praktischen Waschmaschinenanschluss ausgestattet ist. Das zum Innenhof gelegene Schlafzimmer im 1. Obergeschoss bietet besondere Ruhe, während der großzügige Wohn- und Essbereich mit Einbauküche im Erdgeschoss zum Verweilen und Entspannen einlädt. Genießen Sie Ihre persönliche Oase der Ruhe und Erholung inmitten einer lebendigen Umgebung. Außerdem verfügt die Wohnung verfügt über einen PKW-Außenstellplatz, der für 50,00€ angemietet werden kann. Zudem stehen Ihnen Fahrradstellplätze zur Verfügung. Erleben Sie modernes Wohnen wie im eigenen Haus mit Garten, in Fußnähe zum Ortszentrum von Bonn-Mehlem.
Merkmale
frei ab 01.06.2026
Erdgeschoss
Einbauküche, offene Küche
Gäste-WC
Keller
Terrasse
Garten
Außen-Stellplatz
Das Bestandsgebäude wurde umfassend modernisiert - teilweise entkernt und hochwertig neu aufgebaut. Sämtliche eingesetzten Baustoffe und Bauelemente erfüllen die neuesten technischen Standards. Eine effektive Wärmedämmung an Fassade, Keller und Dach sowie der Einsatz einer energieeffizienten Luft-Wärmepumpe sorgen für einen geringen Energieverbrauch. Die Wohnräume überzeugen durch stilvollen Eiche-Echtholzfertigparkettboden im Schiffsboden-Design. Badezimmer und Gäste-WC sind elegant mit dunkelgrauen Fliesen ausgestattet. Weiße Wände mit feiner Raufasertapete schaffen ein zeitloses, helles Wohnambiente. Hochwertige Kunststofffenster mit Isolierverglasung und elektrisch bedienbaren Rollläden runden das moderne Wohngefühl ab. Für Ihre Sicherheit ist die Wohnung mit einer Gegensprechanlage inklusive Videoüberwachung ausgestattet. Die Bäder bieten dank Markenkeramik und Armaturen renommierter Hersteller wie Duravit und Philippe Starck höchsten Komfort.
Grundrisse
Grundrisse
1 / 1
Realisiere Dein Projekt
Bausubstanz und Energie
Energieausweis
A
Baujahr1930
Zustand der Immobilieneuwertig
EnergieträgerLuft-/Wasser-Wärmepumpe
Mietkosten
Warmmiete
1.200 €
Kaltmiete
16,16 €/m²
900 €
Nebenkosten
250 €
Heizkosten
in Warmmiete enthalten
Zusätzliche Kosten
Miete pro Stellplatz
50 €
Kaution
2700 €2.700 €
Weitere Preisinformationen
1 Stellplatz, Miete: 50,00 EUR
Lage
Mehlem, Bonn (53179)
Der Anbieter hat die genaue Adresse nicht freigegeben
Mehlem ist ein Ortsteil an der Bonner Rheinschiene im Stadtbezirk Bad Godesberg mit rund 9000 Einwohnern und liegt eingebettet zwischen dem unmittelbar gegenüber liegenden Drachenfels bzw. des Siebengebirges und dem ehemaligen, vulkanischen Naturschutzgebietes Rodderberg, einer wunderbaren Wiesen- und Kraterlandschaft mit unzähligen Spazier- und Wandermöglichkeiten. Im historisch gewachsenen Rheinviertel des Ortsteiles Mehlem mit fußläufiger Verbindung zum Rhein, der wunderschönen Rheinpromenade und seinen zahlreichen inhabergeführten Geschäften können Sie alle Besorgungen für den täglichen Bedarf bequem zu Fuß erledigen. Banken, Ärzte und Apotheken, Bäcker und ein kleiner Wochenmarkt sind nur wenige Gehminuten entfernt. Ergänzt und bereichert wird dieser Ortsteil durch ein vielfältiges gastronomisches Angebot, teilweise in direkter Rheinlage. Der Ortsteil Mehlem verfügt über mehrere Kindergärten und Grundschulen. Weiterführende Schulen sind in Bad Godesberg in großer Auswahl verfügbar. Die Bad Godesberger Innenstadt sowie die Bonner City sind mit öffentlichen Verkehrsmitteln oder dem eigenen PKW bequem zu erreichen. Die überregionale Mobilität ist sowohl durch die B9 als Verbindung zu den Autobahnen A59 und A555, als auch durch die Mehlemer Fähre als Verbindung zur A3 gewährleistet.
Weitere Informationen
Sonstiges
Die beigefügten Pläne sind ohne Gewähr. Die Wohnung ist ab dem 01.06.2026 oder dem 15.06.2026 verfügbar. Die abgebildete visualisierte Küche wird noch vor dem Einzug eingebaut.
Stichworte
Stellplatz vorhanden, Anzahl der Schlafzimmer: 1, Anzahl der Badezimmer: 1, Anzahl der separaten WCs: 1, Anzahl Terrassen: 1, 2 Etagen