

Einfamilienhaus zum Kauf467500 €3.117 €/m²6 Zimmer • 150 m² • 502 m² Grundstück
467500 €
3.117 €/m²
6 Zimmer • 150 m² • 502 m² Grundstück
PREISSENKUNG! MIT VIDEO! Neu gebautes, grosszügiges Einfamilienhaus mit Pool in Siófok zu verkaufen!
Merkmale
- 502 m² Grundstück
- Einbauküche, offene Küche
- Außen-Stellplatz
- Garten
- Terrasse
- möbliert
- Barrierefrei
- Badezimmer: Bad mit Dusche, Bad mit Fenster
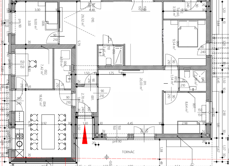
Grundrisse
Grundrisse
1 / 1
Virtueller Rundgang
Video

Realisiere Dein Projekt
Bausubstanz und Energie
Der Anbieter hat keine Informationen zum Energieverbrauch bereit gestellt.
- Baujahr2023
- Zustand der ImmobilieNeubau, Massivhaus
- HeizungsartFußbodenheizung
- EnergieträgerElektro, Solar
Preisdetails
Kaufpreis
467500 €
3.116,67 €/m²
Provision für Käufer
Bitte beachte, das Angebot beinhaltet bei Vertragsabschluss die Zahlung einer Provision. Weitere Informationen erhältst Du vom Anbieter.
Lage

Siófok (8600)

Die Karte ist nicht verfügbar.
Weitere Informationen
Weitere Services
Lust auf eine Besichtigung?
Eine Frage zur Immobilie?
Über den Anbieter
Online-ID: 2ljl45j
Referenznummer: 250050753


Lido Home Kft
Wie zufrieden bist du mit dieser Seite (nicht mit der Immobilie selbst)?

