Version: 8.24.0Navigation überspringen
1.900.000 €
49 Zimmer  •  28.928 m² Grundstück
Immowelt logo

Hotel zum Kauf
1900000 €
49 Zimmer  •  28.928 m² Grundstück

Exklusives Gutshofanwesen mit Hotel, Restaurant, Pool, Nebengebäuden & Ausbaupotenzial auf 29.000 m²

Das historische Gutshofanwesen "Untere Mühle" stellt eine äußerst seltene Immobilienkombination aus gewachsener Historie, laufendem Hotel- und Gastronomiebetrieb sowie erheblichem Entwicklungs- und Erweiterungspotenzial dar. Die Liegenschaft befindet sich in idyllischer Ortsrandlage von Schwabmühlhausen auf einem großzügigen Grundstück mit ca. 28.928 m² und umfasst Hotel-, Gastronomie-, Tagungs- und Veranstaltungsflächen sowie mehrere Nebengebäude.

Das Anwesen blickt auf eine jahrhundertealte Geschichte zurück und wurde in seiner heutigen Form ab 1950 errichtet, in den Folgejahren erweitert und seit 1964 durch die Eigentümerfamilie kontinuierlich gepflegt, modernisiert und erfolgreich betrieben. Heute präsentiert sich die "Untere Mühle" als etabliertes Landhotel mit 35 Gästezimmern, Restaurantbetrieb mit über 500 Sitzplätzen, Biergarten, Event- und Tagungsräumen sowie attraktiven Außenanlagen.

Neben der bestehenden Nutzung bietet die Liegenschaft umfangreiche Ausbaureserven, unter anderem durch den Kornstadel sowie weitere Nutzflächen, wodurch zusätzlich bis zu ca. 50 weitere Zimmer realisiert werden können. Damit eignet sich das Objekt gleichermaßen für Betreiber, Investoren oder Projektentwickler, die einen laufenden Betrieb übernehmen und zugleich langfristige Entwicklungspotenziale nutzen möchten.
Eine detaillierte Beschreibung sämtlicher Gebäude, Flächen, Nutzungen, Historie und Entwicklungsmöglichkeiten erhalten Sie im ausführlichen Exposé auf Anfrage.

Merkmale

  • Bezug: Nach Vereinbarung
  • 28.928 m² Grundstück
  • Einbauküche
  • Kelleranteil
  • 85 Stellplätze: 5 Garagen, 80 Außen-Stellplätze
  • Balkon
  • Garten

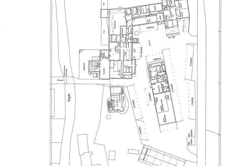
Grundrisse

Grundrisse
1 / 5

Realisiere Dein Projekt

Bausubstanz und Energie

Energieausweis

Endenergiebedarf (Wärme)

  • Baujahr1950
  • Zustand der ImmobilieGepflegt
  • HeizungsartZentralheizung
  • EnergieträgerÖl, Pellets
Immowelt logo

Preisdetails

Kaufpreis
1900000 €
Provision für Käufer
3,57% inkl. 19% MwSt. Käuferprovision
Weitere Preisinformationen
80 Stellplätze
5 Garagenstellplätze
Geschätzte Gesamtkosten
1.967.830 €1
Kaufpreis
1.900.000 €
Provision für Käufer (3,57%)
67.830 €
1Der angezeigte Wert ist eine automatisch berechnete Schätzung von immowelt.
2Bei den Angaben handelt es sich um ortsübliche Werte. Individuelle Kosten können abweichen.

Lage

address-icon
SchwabmühlhausenLangerringen / Schwabmühlhausen (86853)
Der Anbieter hat die genaue Adresse nicht freigegeben
Idyllisch, traditionsreich und hervorragend angebunden!

Inmitten der reizvollen Naturlandschaft des romantischen Singoldtals liegt dieses alt eingesessene Gutshofanwesen in absolut ruhiger und idyllischer Umgebung. Der Standort verbindet auf ideale Weise ländliche Exklusivität mit ausgezeichneter Erreichbarkeit und bietet damit beste Voraussetzungen für einen erfolgreichen Gastro- und Hotelbetrieb ebenso wie für Veranstaltungs-, Seminar- oder Tagungskonzepte.

Der Ortsteil Schwabmühlhausen gehört zur Gemeinde Langerringen im Landkreis Augsburg. Die Region zeichnet sich durch ihre gewachsene Struktur, ihre landschaftliche Schönheit und ihre langjährige touristische Attraktivität aus. Besonders Städtereisende sowie Gäste mit Ziel Allgäuer Alpen oder 5-Seen-Land schätzen die Lage als idealen Ausgangspunkt. Vier renommierte Golfplätze befinden sich in unmittelbarer Umgebung und unterstreichen die hohe Freizeit- und Aufenthaltsqualität.

Die verkehrliche Anbindung ist hervorragend: Über die Bundesstraße B17 bestehen kurze Wege nach Landsberg am Lech (ca. 12 Minuten) und Augsburg (rund 15 Minuten). Die Autobahn A96 (München-Lindau), Anschlussstelle Landsberg West, ist in etwa 10 Minuten erreichbar, das Autobahnkreuz Augsburg-West (A8) in ca. 30 Minuten. Die Münchner Innenstadt erreichen Sie in rund 50 Minuten.

Die Gemeinde Langerringen verfügt über eine sehr gute Infrastruktur mit Bäckern, Metzgern, Supermarkt, Restaurants, Ärzten und Apotheke. Diese Kombination aus gewachsener regionaler Verwurzelung, hoher Lebensqualität und optimaler Erreichbarkeit macht den Standort zu einer seltenen Gelegenheit für ein traditionsreiches Anwesen mit nachhaltigem Entwicklungspotenzial.

Weitere Informationen

Sonstiges Ein historisch gewachsenes, hervorragend eingeführtes Anwesen mit Seltenheitswert, hoher Bekanntheit in der Region und vielseitigem Entwicklungspotenzial - ideal für Betreiber, Investoren oder visionäre Konzepte im Hotel-, Freizeit und Gastronomiebereich.

Über uns:
Als Familienunternehmen mit über 35 Jahren Erfahrung und mehr als 2.500 erfolgreich vermittelten Immobilien sind wir seit zwei Generationen Ihr vertrauensvoller Partner in allen Immobilienangelegenheiten. Vielen Dank für Ihre Zusammenarbeit mit Immobilien Herfeldt.

Wichtige rechtliche Hinweise:
Die hier aufgeführten Informationen und Angaben stammen vom Eigentümer oder von Dritten. Trotz regelmäßiger Überprüfung von Daten, Bildern und Informationen übernehmen wir keine Haftung für die Richtigkeit der Angaben. Wir bestätigen jedoch, dass wir im Auftrag des jeweiligen Vertragspartners provisionspflichtig tätig sind.

Finanzierungsunterstützung:
Wir ermöglichen Ihnen Zugang zu erstklassigen Finanzierungskonditionen durch unseren Partner, den größten Finanzierer in Deutschland. Dieser fragt bei über 600 Banken an und kann Ihnen als Alternative zu Ihrer Hausbank attraktive Angebote unterbreiten. Bei Interesse wenden Sie sich gerne an uns und wir leiten Ihnen die Kontaktdaten weiter.

Weitere Services:
. Kostenlose Immobilienbewertungen und Verkaufsberatung - gerne erstellen wir eine kostenlose Bewertung für Ihr aktuelles Objekt mit individueller Verkaufsstrategie
. Aktive Suche nach Objekten für Kapitalanleger mit schneller und diskreter Abwicklung über unsere Gesuchekartei
. Kostenloser Umzugswagen - nach erfolgreichem Kauf oder Verkauf stellen wir Ihnen unseren Transporter kostenfrei zur Verfügung

Förderungen & Handwerker:
Wir unterstützen Sie umfassend bei Förderungen und Sanierungen. Zusätzlich vermitteln wir zuverlässige Sanierungs- und Dienstleistungspartner - von geförderten energetischen Maßnahmen bis hin zu Umzugsfirmen. Stichworte Gesamtfläche: 2.892,00 m², vermietbare Fläche: 2.892,00 m², Anzahl der Badezimmer: 35, Anzahl der separaten WCs: 8, Anzahl Balkone: 2, Anzahl Terrassen: 3, Bundesland: Bayern, 3 Etagen Wellness: Wellnessbereich

Weitere Services

Lust auf eine Besichtigung?
Eine Frage zur Immobilie?
Nachricht hinzufügen
Mit der Nutzung der oben angegebenen Telefonnummer oder durch Klicken auf „Kontaktieren“ akzeptierst Du die Allgemeinen Nutzungsbedingungen, denen Du jederzeit widersprechen kannst. Weitere Informationen zum Datenschutz

Über den Anbieter

Schulgasse 292, 86899 Landsberg
partner badge
10 Jahre Partnerschaft
Herr Benjamin Herfeldt
Herr Benjamin HerfeldtDein Kontakt
Online-ID: 2n6dw5d
Referenznummer: 1892
Immobilien Herfeldt
title
Immobilien Herfeldt
Bewertung: 4,3 von 5 Sternen
Nachricht hinzufügen
Mit der Nutzung der oben angegebenen Telefonnummer oder durch Klicken auf „Kontaktieren“ akzeptierst Du die Allgemeinen Nutzungsbedingungen, denen Du jederzeit widersprechen kannst. Weitere Informationen zum Datenschutz
Wie zufrieden bist du mit dieser Seite (nicht mit der Immobilie selbst)?