Version: 8.24.0Navigation überspringen
IAD Immobilien Agentur Deutschland GmbH
620.000 €
16 Zimmer  •  460 m²  •  650 m² Grundstück

Mehrfamilienhaus zum Kauf
620000 €
1.348 €/m²
16 Zimmer  •  460 m²  •  650 m² Grundstück

Vermietetes Wohn - und Freizeitobjekt

Die Immobilie verfügt über zahlreiche Zimmer, überwiegend mit Waschbecken, insgesamt 7 Toiletten sowie 3 Bäder.
Ein besonderes Highlight ist die eigene Kegelbahn.
Das Objekt ist aktuell vermietet und erzielt 2.000 € Kaltmiete monatlich.
Perspektivisch eignet sich die Immobilie sowohl zur Reaktivierung des Gaststättenbetriebs als auch zur Nutzung als Wohn- oder WG-Konzept.

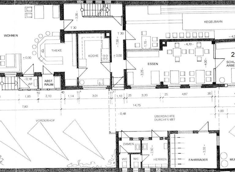
Erdgeschoss und Hof:
Kneipe mit großer Theke
Wirtschaftsküche mit 2 Gasherden und großem Abzug
Frühstücksraum
WG-Zimmer
Kegelbahn

Hoftoiletten
Schlachtraum
4 Garagen (ca. 60 m²), derzeit als Werkstatt genutzt
Aussenhof mit 3 Stellplätzen
Großer Innenhof
Überdachte Sonnenterrasse

Obergeschoss
5 WG-Zimmer mit Waschbecken
2 WG-Zimmer ohne Waschbecken
Großes Wohnzimmer
3 Toiletten
1 Duschwannenbad mit Bidet

Dachgeschoss
2 kleine Tageslicht-Duschbäder mit WC
Großer Vorraum (Wohnzimmer)
2 große Räume mit Dachfenstern und Waschbecken
2 Kammern (Gästezimmer)

Ein geräumiger Speicher ist auch vorhanden.

Mehrwert für Mieter:
Kegelbahn, Billardtisch, Tischkicker, Darts, Outdoor-Tischtennis, Klavier, Schlagzeug und Basketballkorb sorgen für ein außergewöhnlich attraktives Wohn- und Freizeitangebot.

* Energieausweis in Bearbeitung

Merkmale

  • 650 m² Grundstück
  • Keller
  • 4 Stellplätze: 4 Garagen, 3 Außen-Stellplätze
  • Gäste-WC
  • Terrasse
  • WG-geeignet
  • Bodenbelag: Fliesen, Laminat
Modernisierungen ab 2024
Dach: neue Dachlatten und Dämmung
Photovoltaik: 57 Module (23,8 kWp) inkl. 10 kWp Speicher
Solarthermie mit neuem 950-Liter-Schichtenspeicher für Brauchwasser
Erneuerung aller Fenster und Heizkörper in Wohn- und WG-Bereichen
Größtenteils neue Elektroinstallationen
Dachgeschossausbau bereits 2003

Grundrisse

Grundrisse
1 / 3

Realisiere Dein Projekt

Bausubstanz und Energie

Der Anbieter hat keine Informationen zum Energieverbrauch bereit gestellt.
  • Baujahr1900
MediumRectangleTop

Preisdetails

Kaufpreis
620000 €
1.347,83 €/m²
Provision für Käufer
4,76 % Käuferprovision inkl. 19 % MwSt. Die Provision errechnet sich aus dem Kaufpreis. Weitere Informationen siehe Provisionshinweis.
Weitere Preisinformationen
3 Stellplätze
4 Garagenstellplätze
Geschätzte Gesamtkosten
685.534 €1
Kaufpreis
620.000 €
Notarkosten (1,5%)
9.300 €
Grunderwerbsteuer (5%)
31.000 €
Provision für Käufer (3,57%)
22.134 €
Grundbucheintrag (0,5%)
3.100 €
1Der angezeigte Wert ist eine automatisch berechnete Schätzung von immowelt.
2Bei den Angaben handelt es sich um ortsübliche Werte. Individuelle Kosten können abweichen.

Lage

address-icon
NußdorfLandau in der Pfalz (76829)
Der Anbieter hat die genaue Adresse nicht freigegeben
Die Immobilie befindet sich in einer ruhigen Lage von Landau in der Pfalz.
Die Innenstadt, Universität, Einkaufsmöglichkeiten sowie gastronomische Angebote sind schnell erreichbar.
Landau überzeugt durch seine hohe Lebensqualität, die Nähe zur Weinstraße und eine sehr gute Verkehrsanbindung in die Metropolregion Rhein-Neckar.

Weitere Informationen

Provisionshinweis 4,76 % Käuferprovision inkl. 19 % MwSt. Die Provision errechnet sich aus dem Kaufpreis. Für ein Exposé und weitere Informationen zum Objekt sowie einen Besichtigungstermin füllen Sie bitte die nachfolgenden Angaben im Kontaktformular aus:- vollständiger Name/Anschrift- E-Mail-Adresse- Telefon/Mobilnummer Sonstiges Bitte beachten Sie, dass nur ein VOLLSTÄNDIG AUSGEFÜLLTES Kontaktformular von uns bearbeitet werden kann.

Herr Martin Henzmann
Hauptstr. 33, 66851 Bann
Tel.: +49 177 8877116
Email: m.henzmann@iad-immobilien.de
Aufsichtsbehörde nach § 34 c Gewerbeordnung
Verbandsgemeindeverwaltung Landstuhl Kaiserstr. 49 66849 Landstuhl
Lizenzpartner der IAD Immobilien Agentur Deutschland GmbH Stichworte Garage vorhanden, Stellplatz vorhanden, Anzahl der Schlafzimmer: 11, Anzahl der Badezimmer: 3, Anzahl Terrassen: 1, 3 Etagen, modernisiert: 2025, modernisiert

Weitere Services

Lust auf eine Besichtigung?
Eine Frage zur Immobilie?
Nachricht hinzufügen
Mit der Nutzung der oben angegebenen Telefonnummer oder durch Klicken auf „Kontaktieren“ akzeptierst Du die Allgemeinen Nutzungsbedingungen, denen Du jederzeit widersprechen kannst. Weitere Informationen zum Datenschutz

Über den Anbieter

Untere Bühlstraße 5, 91338 Igensdorf
Herr Martin HenzmannDein Kontakt
Online-ID: 2nmsx5n
Referenznummer: KL-MH3455/2
IAD Immobilien Agentur Deutschland GmbH
IAD Immobilien Agentur Deutschland GmbH
Nachricht hinzufügen
Mit der Nutzung der oben angegebenen Telefonnummer oder durch Klicken auf „Kontaktieren“ akzeptierst Du die Allgemeinen Nutzungsbedingungen, denen Du jederzeit widersprechen kannst. Weitere Informationen zum Datenschutz
MediumRectangleTop
MediumRectangleBottom
MediumRectangleTop
Wie zufrieden bist du mit dieser Seite (nicht mit der Immobilie selbst)?