

Immobilien Schwartz
Frau Petra Schwartz
082 ···
Nr. anzeigenPreise & Kosten
Kaution
10.470 €
Warum sehe ich diese Anzeige? – Du siehst diese Anzeige basierend auf Ihrer Navigation auf unserer Website und den Suchkriterien, die du verwendet hast.
Lage
Diese außergewöhnliche Wohnimmobilie befindet sich in einem malerischen Teil von Münsing, genauer gesagt im idyllischen Ammerland.
Die Nachbarschaft verleiht der Nördlichen Seestraße 18b, einen einladenden Charakter, der mit einem reizvollen Mix aus Tradition und Moderne überzeugt. Hier wohnen Sie angenehm ruhig, während...
Das Haus
Geschosse
3 Geschosse
Baujahr
1972
Bezug
ab sofort
Derzeitige Nutzung
frei
Energie & Heizung
Warum sehe ich diese Anzeige? – Du siehst diese Anzeige basierend auf Ihrer Navigation auf unserer Website und den Suchkriterien, die du verwendet hast.
Energieausweistyp
Verbrauchsausweis
Gebäudetyp
Wohngebäude
Baujahr laut Energieausweis
1972
Wesentliche Energieträger
Heizöl
Gültigkeit
30.01.2025 bis 29.01.2035
Effizienzklasse
E
Endenergieverbrauch
157,48 kWh/(m²·a) - Warmwasser enthalten
Weitere Energiedaten
Haustyp
Massivhaus
Energieträger
Holz, Öl
Heizungsart
Ofen, offener Kamin, Zentralheizung
Details
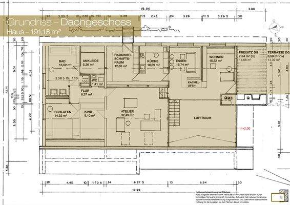
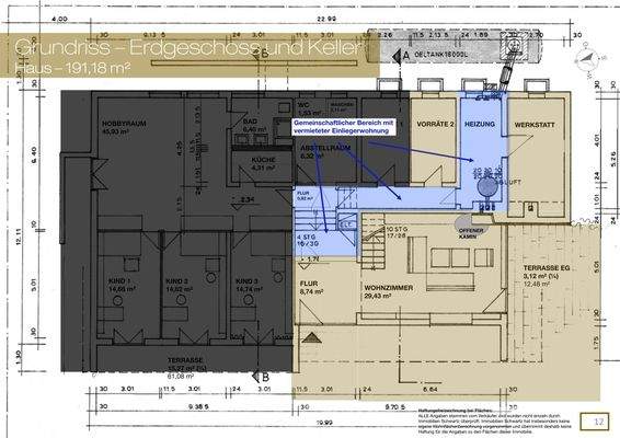
Objektbeschreibung
Haupthaus in Mehrfamilienhaus (Einliegerwohnung ist separat bereits vermietet) (Baujahr 1972, Vollrenovierung 2024) mit 2 Geschossen zur langfristigen Vermietung und Nutzung, mit EG und DG in unmittelbarer Seenähe (150m) am Starnberger See (Ostufer), innerorts, im reinen Wohngebiet, mit Doppelgarage und separater...
Weitere Informationen
Sonstiges
Gewerbliche Nutzung nicht zulässig, daher nur teilweise beruflich nutzbar durch Freiberufler
(Berufe ohne Gewerbeschein-Pflicht) und zu Wohnzwecken.
Besichtigungstermine
Bitte vereinbaren Sie ihren persönlichen Besichtigungstermin mit uns.
Stichworte
Zustand: neuwertig, renoviert...
Dokumente
Anbieter der Immobilie

Online-ID: 2lvsj57
Finde Angebote wie dieses
Hier geht es zu unserem Impressum, den Allgemeinen Geschäftsbedingungen, den Hinweisen zum Datenschutz und nutzungsbasierter Online-Werbung.