

Mario Paufler Immobilien
Herr Mario Paufler
004 ···
Nr. anzeigenPreise & Kosten
Provision für Käufer
3,57 %
Lage
Das Einfamilienhaus befindet sich in einer äußerst attraktiven Mikrolage von Kleve-Kellen - direkt an einem weitläufigen Feld, das für eine offene, grüne Aussicht und ein angenehm ruhiges Wohngefühl sorgt.
Gleichzeitig profitieren Sie von einer hervorragenden Nähe zur Klever Innenstadt, die in wenigen Minuten erreicht...
Das Haus
Kategorie
Einfamilienhaus
Baujahr
1924
Energie & Heizung
Warum sehe ich diese Anzeige? – Du siehst diese Anzeige basierend auf Ihrer Navigation auf unserer Website und den Suchkriterien, die du verwendet hast.
Weitere Energiedaten
Energieträger
Öl
Details
Objektbeschreibung
Dieses Einfamilienhaus in der begehrten Wohnlage von Kleve-Kellen verbindet eine seltene Gelegenheit mit einem echten Wohntraum: Aus dem Fenster direkt ins Grüne schauen, den Blick über Wiesen schweifen lassen - und gleichzeitig die perfekte Basis für Ihr ganz persönliches Wohnprojekt schaffen.
Auf rund 145 m²...
Ausstattung
- Baujahr: 1924
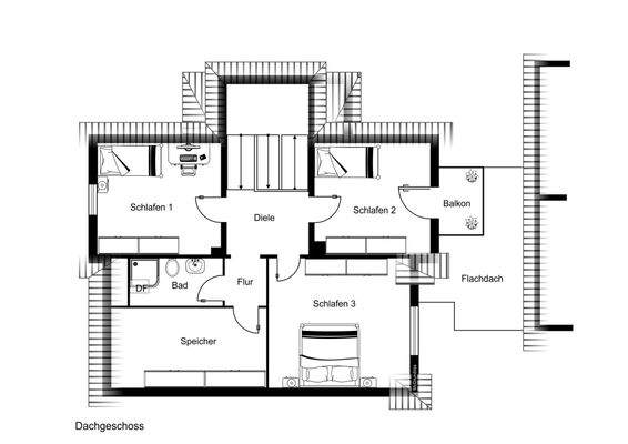
- Wohnfläche: ca. 145 m² und Nutzfläche: ca. 135 m² (inkl. Ausbaureserve)
- vollunterkellert
- 4 Schlafzimmer
- Ölheizung
- umfassend renovierungsbedürftig
- attraktive Lage
- Ein Energieausweis befindet sich gerade in Erstellung und wird nachgereicht
Preisinformation
1 Stellplatz
Weitere Informationen
Stichworte
Anzahl der Schlafzimmer: 4, Anzahl der Badezimmer: 2, Anzahl der separaten WCs: 1, Anzahl Balkone: 1, Anzahl Terrassen: 1, 2 Etagen, Distanz zum Kindergarten: 0.25, Distanz zur Grundschule: 0.15, Distanz zur Realschule: 0.13, Distanz zur nächsten Einkaufsmöglichkeit: 1.03, Distanz zum Gymnasium: 1.95, Distanz...
Anbieter der Immobilie
Mario Paufler Immobilien
Im Niersbogen 74, 47574 Goch

Online-ID: 2mqvd5j
Referenznummer: Kl_036
Finde Angebote wie dieses
Hier geht es zu unserem Impressum, den Allgemeinen Geschäftsbedingungen, den Hinweisen zum Datenschutz und nutzungsbasierter Online-Werbung.