Version: 8.24.0Navigation ĂĽberspringen
389.000 €
3 Zimmer  â€˘  91,9 m²  â€˘  3. Geschoss
Immowelt logo

Wohnung zum Kauf
389000 €
4.234 €/m²
3 Zimmer  â€˘  91,9 m²  â€˘  3. Geschoss

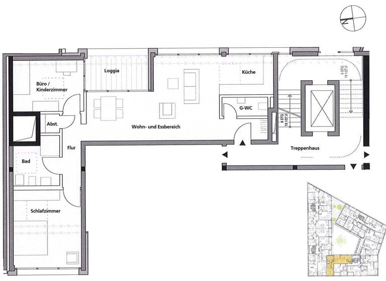
Stilvolle 3-Zimmer-Eigentumswohnung mit Tiefgaragenstellplatz in der GĂĽtersloher Innenstadt

Diese moderne Eigentumswohnung aus dem Baujahr 2021 befindet sich in zentraler Lage der Gütersloher Innenstadt und besticht durch ihre hochwertige Ausstattung und ein helles, einladendes Wohnambiente. Auf ca. 92 m² Wohnfläche erwartet Sie ein großzügiger Wohn- und Essbereich mit halboffener Küche und Einbauküche (im Kaufpreis enthalten). Große Fensterfronten sorgen für lichtdurchflutete Räume und eine angenehme Atmosphäre. Die Loggia mit Blick in den gepflegten Innenhof bietet dank Raffstores einen praktischen Sichtschutz. Zwei Schlafzimmer, ein modernes Badezimmer mit Waschmaschinenanschluss, ein Gäste-WC sowie ein Abstellraum ergänzen den komfortablen Grundriss. Ein eigener Kellerraum und ein Tiefgaragenstellplatz gehören ebenfalls zur Wohnung. Sie liegt im 3. Obergeschoss eines gepflegten Wohn- und Geschäftshauses und vereint modernes Design, urbanen Komfort und nachhaltige Wertbeständigkeit - ideal für Eigennutzer und ebenso für Kapitalanleger mit Blick auf eine zukunftssichere Investition.

Merkmale

  • Bezug: nach Absprache
  • 3. Geschoss
  • EinbaukĂĽche
  • Personenaufzug
  • Kelleranteil
  • Stellplatz
  • Gäste-WC

Grundrisse

Grundrisse
1 / 1

Realisiere Dein Projekt

Bausubstanz und Energie

Energieausweis

A+
  • Baujahr2021
  • HeizungsartZentralheizung: FuĂźbodenheizung
  • EnergieträgerElektro, Gas
Immowelt logo

Preisdetails

Kaufpreis
389000 €
4.234,24 €/m²
Provision für Käufer
3,57 % inkl. MwSt.
Geschätzte Gesamtkosten
435.952 €1
Kaufpreis
389.000 €
Notarkosten (1,5%)
5.835 €
Grunderwerbsteuer (6,5%)
25.285 €
Provision für Käufer (3,57%)
13.887 €
Grundbucheintrag (0,5%)
1.945 €
1Der angezeigte Wert ist eine automatisch berechnete Schätzung von immowelt.
2Bei den Angaben handelt es sich um ortsübliche Werte. Individuelle Kosten können abweichen.

Lage

address-icon
Innenstadt, Gütersloh (33330)
Der Anbieter hat die genaue Adresse nicht freigegeben

Weitere Informationen

Stichworte Stellplatz vorhanden, Anzahl der separaten WCs: 1, Anzahl Loggias: 1, Bundesland: Nordrhein-Westfalen Sonstiges/Wohnen: seniorengerechtes Wohnen

Weitere Services

Lust auf eine Besichtigung?
Eine Frage zur Immobilie?
Nachricht hinzufĂĽgen
Mit der Nutzung der oben angegebenen Telefonnummer oder durch Klicken auf „Kontaktieren“ akzeptierst Du die Allgemeinen Nutzungsbedingungen, denen Du jederzeit widersprechen kannst. Weitere Informationen zum Datenschutz

Ăśber den Anbieter

WilhlemstraĂźe 11, 33602 Bielefeld
partner badge
Partnerschaft
Frau Biroula DanhoDein Kontakt
Online-ID: 2mqf75t
Referenznummer: BG-25190
Geno immobilien GmbH
Geno immobilien GmbH
Bewertung: 4,5 von 5 Sternen
Nachricht hinzufĂĽgen
Mit der Nutzung der oben angegebenen Telefonnummer oder durch Klicken auf „Kontaktieren“ akzeptierst Du die Allgemeinen Nutzungsbedingungen, denen Du jederzeit widersprechen kannst. Weitere Informationen zum Datenschutz
Wie zufrieden bist du mit dieser Seite (nicht mit der Immobilie selbst)?