Version: 8.26.0Navigation überspringen
1.350 €
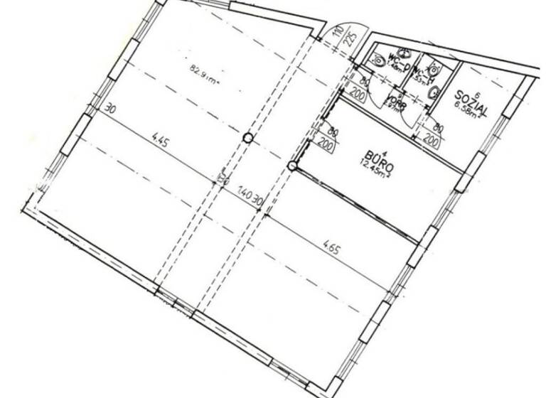
108 m² Bürofläche
Immowelt logo

Büro zur Miete
1.350 €
108 m² Bürofläche

Büro-Praxis- Geschäftsräumlichkeiten in Lienz!

Interessante Räumlichkeiten warten auf neue Mieter!
Mitten in Lienz mit guter Verkehrsanbindung gelegen und trotzdem ruhig bieten diese Flächen Platz für ein Büro, eine Ordination, eine Praxis oder auch Geschäftsflächen.
Profitieren Sie von einem Haus mit ausgewählten Betrieben, welche voneinander auch profitieren können.
Drei Parkplätze im Freien stehen für Sie und Ihre Kunden zur Verfügung, weitere öffentliche Parkmöglichkeiten befinden sich in der Nähe.
Im zweiten Obergeschoss befinden sich noch ca. 138m² weitere Büroflächen welche ebenfalls zur Vermietung zur Verfügung stehen.

Sollten Sie sich nach erfolgter Besichtigung dazu entschließen das Objekt zu mieten, entstehen folgende Nebenkosten:
3 BMM-Kaution: € 5.700,- (einmalige Zahlung welche nach ordnungsgemäßer Beendigung des Mietverhältnisses wieder zurückerstattet wird)
Kosten der Mietvertragserrichtung nach Vereinbarung.
2 Bruttomonatsmieten + 20% USt. Vermittlungshonorar
Mietvertrags Vergebührung: 1% der monatlichen Gesamtkosten gerechnet mal der Anzahl der Monate der vereinbarten Mietdauer (einmalige Zahlung an das Finanzamt)

Wir bitten um Verständnis, dass Anfragen nur eingeschränkt beantwortet werden können und keine Besichtigungstermine vereinbart werden, bevor nicht folgende Informationen zu den Interessenten vorliegen:
Namen des Ansprechpartners, die Firmenbezeichnung, Anschrift, die Telefonnummer des Ansprechpartners und Ihre Emailadresse. Wir schützen die Daten der Vermieter und der Interessenten gleichermaßen!

Merkmale

  • Bezug: sofort
  • teilweise möbliert
  • 3 Stellplätze: 3 Außen-Stellplätze
Nach Absprache

Grundrisse

Grundrisse
1 / 1

Bausubstanz und Energie

Heizwärmebedarf (HWB)

C

Gesamtenergieeffizienz (fGEE)

A
  • Baujahr1996
  • Zustand der ImmobilieGepflegt
  • EnergieträgerFernwärme
Immowelt logo

Mietkosten

Gesamtmiete
1.900 €
Nettokaltmiete
1.350 €
Betriebskosten
233,33 €
Heizkosten
in Gesamtmiete enthalten
Provision für Mieter
2 bis 3 Bruttomonatsmieten + USt.
Kaution
5700 €
Weitere Preisinformationen
3 Stellplätze
Nettokaltmiete: 1.350,00 EUR

Lage

address-icon
Lienz (9900)
Der Anbieter hat die genaue Adresse nicht freigegeben
Zentral in Lienz und trotzdem ruhig. Gute Verkehranbindung.

Weitere Services

Lust auf eine Besichtigung?
Eine Frage zur Immobilie?
Mit einer persönlichen Nachricht hast du bessere Chancen auf eine Antwort.
Mit der Nutzung der oben angegebenen Telefonnummer oder durch Klicken auf „Kontaktieren“ akzeptierst Du die Allgemeinen Nutzungsbedingungen, denen Du jederzeit widersprechen kannst. Weitere Informationen zum Datenschutz

Über den Anbieter

Beda-Weber-Gasse 6, 9900 LIENZ
partner badge
Partnerschaft
Herr Stefan SirDein Kontakt
Online-ID: 26DDERZ1UYLX
Referenznummer: 2026-14a (1/326)
Wie zufrieden bist du mit dieser Seite (nicht mit der Immobilie selbst)?