Version: 8.26.0Navigation überspringen
219.000 €
674 m² Grundstück
Immowelt logo

Grundstück zum Kauf
219000 €
325 €/m²
674 m² Grundstück

Wuppertal-Vohwinkel: Attraktives Baugrundstück mit Baugenehmigung für EFH mit ca. 275 qm Wohnfläche

Entdecken Sie dieses außergewöhnliche Baugrundstück in bester Lage von Wuppertal im idyllischen Stadtteil Roßkamp. Mit einer großzügigen Fläche von ca. 674 m² bietet dieses Grundstück ideale Voraussetzungen für Ihr Traumhaus. Das Areal befindet sich in einem attraktiven Wohngebiet, das sowohl eine ruhige und familienfreundliche Umgebung als auch eine hervorragende Anbindung an die städtische Infrastruktur bietet.

Die Verkäufer haben bereits eine umfangreiche Bauplanung betrieben und es liegt für ein exklusives Bebauungskonzept bereits ein bewilligter Bauantrag vor, der vom Käufer übernommen werden kann. Mehr Details zu der bisherigen Planung finden Sie unter dem Punkt "Sonstiges".

Ob Sie eine moderne Villa oder ein gemütliches Einfamilienhaus planen - dieses Grundstück bietet vielfältige Möglichkeiten, Ihre Wohnträume zu verwirklichen. Profitieren Sie von der naturnahen Lage, die gleichzeitig eine rasche Erreichbarkeit des Stadtzentrums gewährleistet. Einkaufsmöglichkeiten, Schulen und Freizeiteinrichtungen befinden sich in bequemer Nähe und runden die Standortvorteile ab.

Nutzen Sie diese seltene Gelegenheit, ein Stück Lebensqualität in Wuppertal zu erwerben. Kontaktieren Sie uns für weitere Informationen oder zur Vereinbarung eines Besichtigungstermins.

Merkmale

  • 674 m² Grundstück
  • voll erschlossen

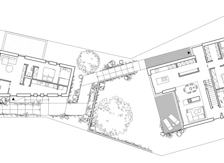
Grundrisse

Grundrisse
1 / 5
Immowelt logo

Preisdetails

Kaufpreis
219000 €
324,93 €/m²
Provision für Käufer
5,95% vom beurkundeten Kaufpreis inkl. 19% MwSt.
Geschätzte Gesamtkosten
232.031 €1
Kaufpreis
219.000 €
Provision für Käufer (5,95%)
13.031 €
1Der angezeigte Wert ist eine automatisch berechnete Schätzung von immowelt.
2Bei den Angaben handelt es sich um ortsübliche Werte. Individuelle Kosten können abweichen.

Lage

address-icon
VohwinkelWuppertal / Roßkamp (42329)
Der Anbieter hat die genaue Adresse nicht freigegeben
Das angebotene Grundstück befindet sich in dem charmanten Stadtteil Vohwinkel-Roßkamp in Wuppertal, einer der grünsten Städte Nordrhein-Westfalens. Die Lage dieses Wohngebiets bietet eine perfekte Symbiose aus städtischem Komfort und naturnaher Ruhe. In der unmittelbaren Umgebung finden Sie eine Vielzahl an Annehmlichkeiten, darunter Einkaufsmöglichkeiten, Cafés und Restaurants, die alle bequem zu Fuß oder mit dem Fahrrad erreichbar sind. Bildungs- und Betreuungseinrichtungen wie Schulen und Kindergärten sind ebenso in der Nähe angesiedelt und bieten somit ein ideales Umfeld für Familien.

Die Anbindung an den öffentlichen Nahverkehr ist hervorragend, da mehrere Buslinien und die Schwebebahn, das Wahrzeichen Wuppertals, Ihre Mobilität im gesamten Stadtgebiet gewährleisten. Auch die Anbindung an das Autobahnnetz ist optimal, sodass die umliegenden Städte und Ballungszentren schnell erreicht werden können.

Naturfreunde und Erholungssuchende profitieren von der Nähe zum Ittertal und den zahlreichen Wander- und Radwegen der Region. Diese laden zu ausgedehnten Spaziergängen und sportlichen Aktivitäten im Freien ein. Somit stellt dieser Standort eine ideale Wahl für alle dar, die Wohnen im Einklang mit der Natur schätzen und gleichzeitig gut angebunden sein möchten.

Weitere Informationen

Sonstiges Für das Grundstück wurde seitens der Verkäufer mit Unterstützung eines Architekten bereits eine umfassende Bebauungsplanung vorgenommen und eine Baugenehmigung erwirkt.

Einige der Pläne und Visualisierungen finden Sie bei den Bildern.

Hier einige Eckdaten zu der bereits erfolgten Planung:

- Architektenleistung Phasen 1 - 4 bereits abgeschlossen, Phase 5 zu 50%

- Diese Leistung wurde von den Verkäufern bereits bezahlt und ist im Angebotspreis für das Grundstück enthalten (Wert über 40.000 €)

- Geplant wurde ein Hauthaus im oberen Teil des Grundstücks sowie eine 3er-Garage mit aufliegendem, separatem Gästehaus im unteren Teil des Grundstücks

- Geplante BGF: ca. 414 qm

- Geplante Wohnfläche: ca. 274 qm

- Vom Architekten geschätzte Baukosten für das Projekt: ca. 750.000 €

Detaillierte Planungsunterlagen sowie die erteilte Baugenehmigung werden auf Anfrage gerne zur Verfügung gestellt.


Sie sind neugierig geworden und möchten weitere Informationen zum Objekt erhalten oder einen Besichtigungstermin vereinbaren: Nehmen Sie gerne Kontakt mit uns auf.



Und übrigens: Vielleicht möchten Sie eine Immobilie verkaufen oder vermieten? Auch für eine kostenfreie und unverbindliche Marktwertermittlung stehen wir gerne zur Verfügung.

Link zu unserer Webseite - https://www.krahmer.immo Stichworte GRZ: 0,4, GFZ: 0,8

Weitere Services

Lust auf eine Besichtigung?
Eine Frage zur Immobilie?
Nachricht hinzufügen
Mit der Nutzung der oben angegebenen Telefonnummer oder durch Klicken auf „Kontaktieren“ akzeptierst Du die Allgemeinen Nutzungsbedingungen, denen Du jederzeit widersprechen kannst. Weitere Informationen zum Datenschutz

Über den Anbieter

Hauptstraße 92, 40668 Meerbusch
partner badge
Partnerschaft
Herr Janusch Krahmer
Herr Janusch KrahmerDein Kontakt
Online-ID: 25TYMGSEU6MP
Referenznummer: W-VOH-G
Wie zufrieden bist du mit dieser Seite (nicht mit der Immobilie selbst)?