Entdecken Sie diese prächtige 263,46 m² große Familienwohnung, ideal gelegen in einer ruhigen, begehrten Straße, nur wenige Schritte vom Parc Monceau, dem öffentlichen Nahverkehr und den Geschäften in Villiers entfernt.
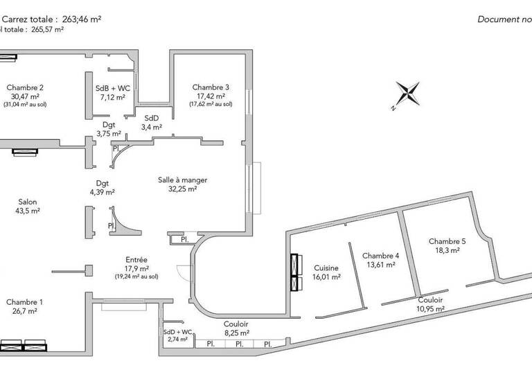
Im dritten Stock eines eleganten Sandsteingebäudes gelegen, verfügt dieses aufzugsfähige Gebäude über großzügige Flächen und reichlich Tageslicht. Beim Betreten werden Sie von einer Eingangsgalerie begrüßt, die zu einem riesigen Wohnzimmer von 43,50 m² mit einem funktionalen Kamin und direktem Zugang zu einem rundum geführten Balkon führt.
Das Esszimmer mit einem charmanten Bogenfenster lädt zu geselligen Mahlzeiten ein, während die Kombüsenküche einen praktischen Raum für Familienzeit bietet. Die Wohnung verfügt außerdem über fünf geräumige Schlafzimmer, ein Badezimmer mit Toilette, zwei Duschräume und eine separate Toilette.
Der altmodische Charme ist allgegenwärtig, mit sorgfältig erhaltenen architektonischen Elementen wie Fischgrätparkettböden, feinen Zierleisten und eleganten Kaminen.
Der Aufbau der Wohnung ist modular, sodass Sie die Räume an Ihre Bedürfnisse und Wünsche anpassen können. Ein Keller vervollständigt dieses außergewöhnliche Anwesen und bietet zusätzlichen Stauraum.
Das Gebäude hat einen festen Hausmeister. Chaptal Schulbezirk, in der Nähe privater und internationaler Schulen.
Merkmale
3. Geschoss
Personenaufzug
Grundrisse
Grundrisse
1 / 1
Realisiere Dein Projekt
Bausubstanz und Energie
Der Anbieter hat keine Informationen zum Energieverbrauch bereit gestellt.
Baujahr1884
Zustand der Immobilierenovierungsbedürftig / sanierungsbedürftig
EnergieträgerGas
Preisdetails
Kaufpreis
3250000 €3.250.000 €
12.335,84 €/m²
Provision für Käufer
Bitte beachte, das Angebot kann bei Vertragsabschluss die Zahlung einer Provision beinhalten. Weitere Informationen erhältst Du vom Anbieter.
Lage
Mairie, Paris 8ème (75008)
Der Anbieter hat die genaue Adresse nicht freigegeben