Version: 8.24.0Navigation überspringen
34.999 €
4 Zimmer  •  77 m²  •  640 m² Grundstück
Immowelt logo

Einfamilienhaus zum Kauf
34999 €
455 €/m²
4 Zimmer  •  77 m²  •  640 m² Grundstück

Gemütliches Haus - 4 Zimmer zum individuellen Wohnen

In ruhiger Lage von Neuhaus-Schierschnitz bietet dieses Einfamilienhaus aus dem Baujahr 1913 eine interessante Gelegenheit für handwerklich versierte Käufer, die ein eigenes Zuhause nach individuellen Vorstellungen gestalten möchten. Die Immobilie befindet sich in renovierungsbedürftigem Zustand und überzeugt durch ihren klassischen Charakter sowie das Potenzial, aus Bestehendem ein gemütliches Wohnhaus mit persönlicher Note zu schaffen.

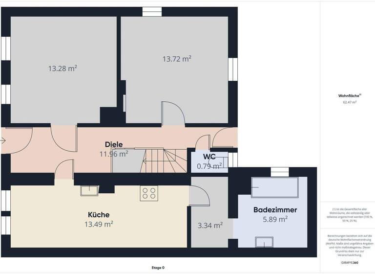
Auf ca. 77 m² Wohnfläche verteilen sich insgesamt 4 Zimmer, darunter 3 Schlafzimmer, die vielfältige Nutzungsmöglichkeiten für Paare, kleine Familien oder auch als Kombination aus Wohnen und Arbeiten eröffnen. Ergänzt wird das Raumangebot durch ein Badezimmer. Die Ausstattungsqualität ist als einfach einzustufen und unterstreicht den Sanierungs- bzw. Modernisierungsbedarf, bietet dafür jedoch eine solide Grundlage für eine wertsteigernde Weiterentwicklung.

Das ca. 640 m² große Grundstück lädt dazu ein, Außenflächen nach eigenen Wünschen anzulegen - ob als Garten, Rückzugsort im Grünen oder mit Platz für Hobby und Freizeit. Das Haus ist teilweise unterkellert und bietet damit zusätzliche Nutz- und Abstellmöglichkeiten.

Die Immobilie ist ab sofort verfügbar und eignet sich ideal für Käufer, die den Charme eines älteren Hauses schätzen und bereit sind, durch Renovierung ein individuelles Zuhause in Neuhaus-Schierschnitz zu realisieren.

Link zum online besichtigen:
https://tour.giraffe360.com/833a51564e2b4910a931600c9f84ac7b

Merkmale

  • Bezug: sofort
  • 640 m² Grundstück
  • Kelleranteil
  • Carport
Link zum online besichtigen:
https://tour.giraffe360.com/833a51564e2b4910a931600c9f84ac7b

TV: Satellitenanschluss, Telefonkabel vorhanden

Parkmöglichkeiten: Carport

Keller: Teilweise unterkellert

Heizung: Gasheizung (Bj. 1991)

Fenster: Doppelverglaste Kunststofffenster teilweise, Holzfenster aus den 1990er Jahren

Beschattung: Außenjalousien

Sanitär/Anschluss: Objekt an die Kanalisation angeschlossen

Außenbereich: Terrasse, Garten, Schuppen

Schornsteine: 3 Schlote (1x Kohle, 2x Gas)

Energieausweis: In Arbeit

Grundrisse

Grundrisse
1 / 3

Realisiere Dein Projekt

Bausubstanz und Energie

Der Anbieter hat keine Informationen zum Energieverbrauch bereit gestellt.
  • Baujahr1913
  • Zustand der Immobilierenovierungsbedürftig / sanierungsbedürftig
  • EnergieträgerGas
Immowelt logo

Preisdetails

Kaufpreis
34999 €
454,53 €/m²
Provision für Käufer
3,57
Weitere Preisinformationen
1 Carportplatz
Geschätzte Gesamtkosten
38.698 €1
Kaufpreis
34.999 €
Notarkosten (1,5%)
525 €
Grunderwerbsteuer (5%)
1.750 €
Provision für Käufer (3,57%)
1.249 €
Grundbucheintrag (0,5%)
175 €
1Der angezeigte Wert ist eine automatisch berechnete Schätzung von immowelt.
2Bei den Angaben handelt es sich um ortsübliche Werte. Individuelle Kosten können abweichen.

Lage

address-icon
Neuhaus-Schierschnitz (96524)
Der Anbieter hat die genaue Adresse nicht freigegeben
Die Immobilie befindet sich in einer ruhigen, überwiegend von Einfamilienhäusern geprägten Wohnlage in Neuhaus-Schierschnitz. Das Umfeld zeichnet sich durch eine angenehme Nachbarschaft, wenig Durchgangsverkehr und kurze Wege im Alltag aus - ideal für Familien wie auch für alle, die ein entspanntes Wohnumfeld in naturnaher Umgebung schätzen.

Ein besonderer Pluspunkt ist die sehr gute Infrastruktur für Kinder: Ein Kindergarten ist in wenigen Gehminuten erreichbar (ca. 0,11 km), ebenso eine Grundschule (ca. 0,42 km). Weiterführende Schulen wie Realschule (ca. 5,73 km) und Gymnasium (ca. 6,75 km) liegen in gut erreichbarer Entfernung und sind bequem mit dem Auto oder öffentlichen Verkehrsmitteln zu erreichen.

Insgesamt bietet die Lage eine gelungene Kombination aus ruhigem Wohnen und alltagsfreundlicher Erreichbarkeit wichtiger Einrichtungen.

Weitere Informationen

Sonstiges Es werden ausschließlich Einzeltermine vergeben (d.h. keine Sammelbesichtigungen).

Wir bitten Sie, Ihre Anfrage ausschließlich online zu stellen und vollständige Angaben zu machen. Anfragen ohne vollständige Kontaktdaten (Anschrift und Telefonnummer) können leider nicht berücksichtigt werden. Für Rückfragen stehen wir auch gerne telefonisch zur Verfügung.

Alle Angaben verstehen sich ohne Gewähr und basieren auf Informationen, die uns vom Auftraggeber zur Verfügung gestellt wurden. Für die Vollständigkeit und Richtigkeit bzw. Aktualität übernehmen wir ausdrücklich keine Gewähr. Stichworte Anzahl der Schlafzimmer: 3, Anzahl der Badezimmer: 1, 4 Etagen, Distanz zum Kindergarten: 0.11, Distanz zur Grundschule: 0.42, Distanz zur Realschule: 5.73, Distanz zur nächsten Einkaufsmöglichkeit: 7.34, Distanz zum Gymnasium: 6.75, Distanz zum Flughafen: 11.08, Distanz zum Hauptbahnhof: 2.62, Distanz zum Bus: 0.41, Distanz zur nächsten Gaststätte: 0.47

Weitere Services

Lust auf eine Besichtigung?
Eine Frage zur Immobilie?
Nachricht hinzufügen
Mit der Nutzung der oben angegebenen Telefonnummer oder durch Klicken auf „Kontaktieren“ akzeptierst Du die Allgemeinen Nutzungsbedingungen, denen Du jederzeit widersprechen kannst. Weitere Informationen zum Datenschutz

Über den Anbieter

An der Hasel 88, 98527 Suhl
Frau Lisa FischerDein Kontakt
Online-ID: 2npca5h
Referenznummer: 2025-105
Immobilien Fischer - Lisa Fischer
Immobilien Fischer - Lisa Fischer
Nachricht hinzufügen
Mit der Nutzung der oben angegebenen Telefonnummer oder durch Klicken auf „Kontaktieren“ akzeptierst Du die Allgemeinen Nutzungsbedingungen, denen Du jederzeit widersprechen kannst. Weitere Informationen zum Datenschutz
Wie zufrieden bist du mit dieser Seite (nicht mit der Immobilie selbst)?