Version: 8.26.0Navigation überspringen
2.370 €
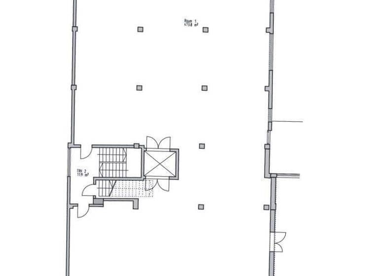
473,8 m² Bürofläche
Immowelt logo

Bürofläche zur Miete
2.370 €
473,8 m² Bürofläche

Großzügige Lagerfläche inkl. Lastenaufzug im Zentrum von Trostberg.

Die angebotene Gewerbeeinheit verfügt über eine großzügige Gesamtfläche von ca. 473,8 m² und bietet vielseitige Nutzungsmöglichkeiten für unterschiedliche gewerbliche Zwecke. Die Fläche eignet ideal als Lagerfläche da die Bodenbelastbarkeit bei über 500 Kg pro m² liegt und ein überdurchschnittlicher Strombedarf vorhaden ist. Andere Nutzungsmöglichkeiten sind natürlich ebenfalls möglich.

Die Einheit überzeugt durch ihre großzügige und flexibel nutzbare Fläche, die individuell an die Anforderungen des jeweiligen Unternehmens angepasst werden kann. Durch die offene Struktur lassen sich Arbeitsbereiche, Lagerflächen oder Produktionszonen effizient organisieren.

Ein besonderer Vorteil der Gewerbefläche ist der vorhandene Lastenaufzug, der einen komfortablen und praktischen Transport von Waren, Materialien oder Equipment ermöglicht. Dadurch eignet sich die Einheit besonders für Betriebe mit regelmäßigem Warenverkehr oder erhöhtem logistischem Bedarf.

Merkmale

  • Lastenaufzug
Merkmale:

- Zentrumslage in Trostberg
- Bodenbelastbarkeit über 500 Kg/m²
- Überdurchschnittliche Stromversorgung
- Nebenkosten inkl. Strom
- Lastenaufzug
- Große Lager- bzw. Gewerbefläche
- Fexible Nutzungsmöglichkeiten

Grundrisse

Grundrisse
1 / 1

Bausubstanz und Energie

Energieausweis

Endenergieverbrauch (Wärme)

Endenergieverbrauch (Strom)

  • Baujahr1960
  • Zustand der ImmobilieGepflegt
Immowelt logo

Mietkosten

Warmmiete
3.790 €
Nettomiete
2.370 €
Nebenkosten
1.420 €
Heizkosten
in Warmmiete enthalten
Provision für Mieter
2,38 Kaltmonatsmieten inkl. MwSt
Kaution
4740 €
Weitere Preisinformationen
Nettokaltmiete: 2.370,00 EUR

Lage

address-icon
Trostberg (83308)
Der Anbieter hat die genaue Adresse nicht freigegeben
Die Gewerbeeinheit befindet sich in zentraler Lage der Stadt Trostberg im oberbayerischen Landkreis Traunstein. Trostberg liegt im südöstlichen Bayern im Chiemgau, etwa zwischen München und Salzburg, und bietet eine gute regionale Anbindung sowie eine hohe Lebens- und Arbeitsqualität.

Die Gabelsbergerstraße liegt in unmittelbarer Nähe zum Stadtzentrum. In der Umgebung befinden sich zahlreiche Einrichtungen des täglichen Bedarfs wie Geschäfte, Gastronomie, Dienstleister sowie öffentliche Einrichtungen. Auch Serviceangebote sind fußläufig erreichbar.

Weitere Informationen

Stichworte Gesamtfläche: 473,80 m²

Weitere Services

Lust auf eine Besichtigung?
Eine Frage zur Immobilie?
Mit einer persönlichen Nachricht hast du bessere Chancen auf eine Antwort.
Mit der Nutzung der oben angegebenen Telefonnummer oder durch Klicken auf „Kontaktieren“ akzeptierst Du die Allgemeinen Nutzungsbedingungen, denen Du jederzeit widersprechen kannst. Weitere Informationen zum Datenschutz

Über den Anbieter

Frühlingstr. 25a, 83278 Traunstein
partner badge
Partnerschaft
Herr Christian BuchösterDein Kontakt
Online-ID: 26T14TG9GL58
Referenznummer: IB-38
Wie zufrieden bist du mit dieser Seite (nicht mit der Immobilie selbst)?