Version: 8.24.0Navigation überspringen
365.000 €
8 Zimmer  •  200 m²  •  950 m² Grundstück
Immowelt logo

Haus zum Kauf
365000 €
1.825 €/m²
8 Zimmer  •  200 m²  •  950 m² Grundstück

Haus mit traumhaftem Grundstück und vielseitigen Nutzungsmöglichkeiten

In ruhiger und familienfreundlicher Wohnlage von Großseelheim präsentiert sich dieses großzügige Einfamilienhaus mit Einliegerwohnung als wahres Raumwunder. Mit ca. 200m² Wohnfläche, verteilt auf drei Etagen, bietet die Immobilie vielfältige Möglichkeiten für Familien, Mehrgenerationenwohnen oder die Kombination aus Wohnen und Arbeiten unter einem Dach.

Das Herzstück bildet der großzügige Wohn- und Essbereich im Erdgeschoss mit direktem Zugang zur Terrasse. Von hier aus genießen Sie den Blick in den traumhaft angelegten Garten - ein echtes Highlight, das zum Entspannen, Spielen und Verweilen einlädt.

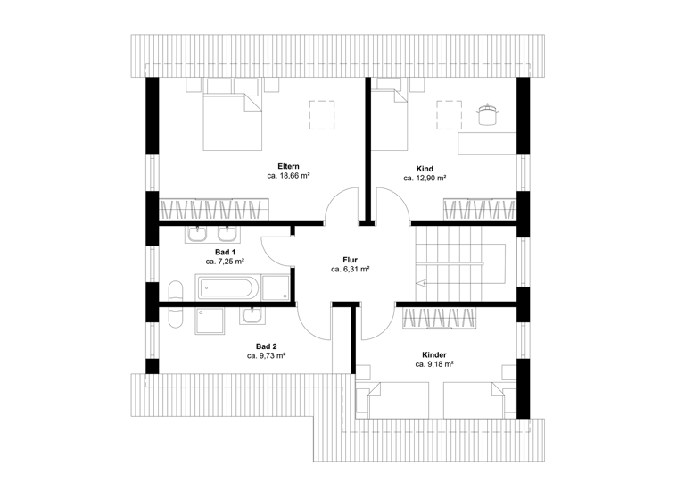
Mit insgesamt acht Zimmern, zwei vollwertigen Bädern und zwei separaten Gäste-WC überzeugt das Haus durch eine durchdachte Raumaufteilung und hohen Wohnkomfort. Im Untergeschoss befinden sich zwei ausgebaute Zimmer, ein Badezimmer, ein praktischer Hauswirtschaftsraum sowie ein großzügiger Abstellraum. Dank des separaten Eingangs lässt sich dieser Bereich ideal als Einliegerwohnung nutzen - perfekt für Gäste, größere Kinder, Homeoffice oder zur Vermietung.

Ein zusätzlicher Dachboden bietet wertvolle Abstellfläche oder weiteres Ausbaupotenzial. Eine Garage sowie ein Carport sorgen für komfortable Parkmöglichkeiten direkt auf dem Grundstück. Beheizt wird die Immobilie über eine elektrische Nachtspeicherheizung.

Das rund 950?m² große Grundstück ist ein Paradies für Gartenfreunde und Familien mit Kindern - mit viel Platz zum Spielen, Gärtnern und Entspannen im Grünen.

Diese Immobilie überzeugt nicht nur durch ihre Größe und Flexibilität, sondern auch durch ihre Lage und das große Potenzial - ein echtes Zuhause für Menschen, die viel Raum für ihre Lebensentwürfe suchen. Nutzen Sie die Gelegenheit, und machen Sie diesen Wohntraum in Großseelheim zu Ihrer neuen Familienbasis.

Merkmale

  • Bezug: sofort
  • 950 m² Grundstück
  • Einbauküche
  • Keller
  • 2 Stellplätze: 2 Garagen
  • Gäste-WC
  • Balkon
  • Garten
- Fläche gesamt ca. 200 m²
- Die Zimmer sind verteilt auf Haupthaus und Einliegerwohnung
- Einen Dachboden
- 2 Vollbäder
- 2 Gäste WC
- Grundstücksfläche: 950 m² - viel Platz zum Spielen, Gärtnern & Entspannen
- Baujahr: 1979
- 1 Garage & 1 Carport - geschützt parken direkt am Haus
- Großer Garten - eine grüne Oase für die ganze Familie
- Heizung: Aktuell Elektrische Nachtspeicherheizung

Grundrisse

Grundrisse
1 / 3

Realisiere Dein Projekt

Bausubstanz und Energie

Der Anbieter hat keine Informationen zum Energieverbrauch bereit gestellt.
  • Baujahr1979
  • Zustand der Immobilieteilsaniert
  • EnergieträgerElektro
Immowelt logo

Preisdetails

Kaufpreis
365000 €
1.825 €/m²
Provision für Käufer
3,57% inkl. MwSt.
Vom Käufer mit notarieller Beurkundung zu tragen.
Weitere Preisinformationen
2 Garagenstellplätze
Geschätzte Gesamtkosten
407.230 €1
Kaufpreis
365.000 €
Notarkosten (1,5%)
5.475 €
Grunderwerbsteuer (6%)
21.900 €
Provision für Käufer (3,57%)
13.030 €
Grundbucheintrag (0,5%)
1.825 €
1Der angezeigte Wert ist eine automatisch berechnete Schätzung von immowelt.
2Bei den Angaben handelt es sich um ortsübliche Werte. Individuelle Kosten können abweichen.

Lage

address-icon
GroßseelheimKirchhain (35274)
Der Anbieter hat die genaue Adresse nicht freigegeben
Das Einfamilienhaus liegt in Großseelheim, einem besonders attraktiven Ortsteil der Stadt Kirchhain im mittelhessischen Landkreis Marburg-Biedenkopf. Die ruhige, gewachsene Wohnlage verbindet ländliche Idylle mit der Nähe zur Universitätsstadt Marburg und bietet eine hervorragende Nahversorgung direkt vor Ort.

Großseelheim verfügt über eine außergewöhnlich gute Infrastruktur für einen Ort dieser Größe: Eine eigene Grundschule, ein Kindergarten, Allgemeinmediziner, eine Apotheke, ein Zahnarzt, Metzgerei, Bäckerei sowie eine Tankstelle befinden sich direkt im Ort und sind bequem zu Fuß erreichbar. Das Wohnumfeld ist geprägt von gepflegten Einfamilienhäusern, ruhigen Anwohnerstraßen und einem familiären, aktiven Dorfleben - ideal für Familien, Ruhesuchende und alle, die naturnah wohnen möchten.

Gelegen zwischen Kirchhain und Marburg, überzeugt Großseelheim durch seine strategisch günstige Lage. Die Universitätsstadt Marburg mit ihrem breiten kulturellen und wirtschaftlichen Angebot ist in ca. 10-15 Minuten erreichbar - die renommierte Universitätsklinik Marburg sogar in nur etwa 5 Autominuten. Auch Kirchhain mit vielfältigen Einkaufsmöglichkeiten, weiterführenden Schulen und dem Bahnhof mit direktem Anschluss nach Marburg, Kassel und Gießen ist schnell mit dem Auto erreichbar.

Der öffentliche Nahverkehr ist in der Region eingeschränkt vorhanden, weshalb ein eigener PKW empfehlenswert ist. Dafür profitieren Sie von einer hervorragenden Anbindung über die B 62 und B 3 sowie der schnellen Erreichbarkeit der A 49.

Großseelheim bietet Ihnen eine lebenswerte Kombination aus Ruhe, guter Nahversorgung und der Nähe zu städtischer Infrastruktur - ein idealer Ort für alle, die Wohnqualität im Grünen schätzen.

Weitere Informationen

Sonstiges Das Objekt verfügt aktuell über Nachtspeicheröfen. Energiepass Energieausweis wird bei Besichtigung vorgelegt. Stichworte Garage vorhanden, Carport vorhanden, Nutzfläche: 200,00 m², Anzahl der Schlafzimmer: 5, Anzahl der Badezimmer: 4, Anzahl Balkone: 1, Balkon-Terrassen-Fläche: 20,00 m², Gartenfläche: 500,00 m², Bundesland: Hessen, 3 Etagen, modernisiert: 2024

Weitere Services

Lust auf eine Besichtigung?
Eine Frage zur Immobilie?
Nachricht hinzufügen
Mit der Nutzung der oben angegebenen Telefonnummer oder durch Klicken auf „Kontaktieren“ akzeptierst Du die Allgemeinen Nutzungsbedingungen, denen Du jederzeit widersprechen kannst. Weitere Informationen zum Datenschutz

Über den Anbieter

Kirchstraße 1, 15806 Zossen
Herr Dennis Greinert
Herr Dennis GreinertDein Kontakt

Weitere Unterlagen

Online-ID: 2nj3q5n
Referenznummer: E10-GH
Art Of Estate Immobilien GmbH
title
Art Of Estate Immobilien GmbH
Bewertung: 4,3 von 5 Sternen
Nachricht hinzufügen
Mit der Nutzung der oben angegebenen Telefonnummer oder durch Klicken auf „Kontaktieren“ akzeptierst Du die Allgemeinen Nutzungsbedingungen, denen Du jederzeit widersprechen kannst. Weitere Informationen zum Datenschutz
Wie zufrieden bist du mit dieser Seite (nicht mit der Immobilie selbst)?