Version: 8.22.4Navigation überspringen
7,50 €
1.810 m² Lagerfläche
Immowelt logo

Lagerhalle zur Miete
7,50 Euro pro Quadratmeter
1.810 m² Lagerfläche

Hell, großzügig, modern. Gewerbefläche in RO-West

Sie suchen eine großzügige, helle und offen gestaltete Gewerbefläche für Ihre Fertigungs- und Serviceprozesse? Sie benötigen Platz für Ihr Handelshaus und möchten neben einem Lager auch eine Produktausstellung realisieren? Auf ca. 1.800 m² Nutzfläche stellt Ihnen unsere Immobilie den optimalen Rahmen zur Verfügung. Die sehr gut erreichbare Lage unweit der neuen B15, der sehr bekannte Standort und die hochwertige Ausstattung des Bauwerks überzeugen auch Sie!

- sehr gute Lage an der Staatsstraße 2095, nur 200 Meter bis zur B15 Neu
- großzügige Gewerbefläche mit sehr guter Ausstattung, Industrieboden, Aufzug
- variabel gestaltbarer Grundriss, Lastenaufzug vorhanden
- Glasfaseranschluss, Klimatisierung im OG, Parkplätze am Haus

ca. 852,20 m² Gesamtnutzfläche EG

ca. 885,80 m² Gesamtnutzfläche OG

ca. 71,70 m² Flucht- und Wartungsbalkone

ca. 1.810,00 m² Gesamtnutzfläche des Gebäudes

PKW-Stellplätze sind in ausreichender Anzahl auf dem Betriebsgrundstück zu finden. Bitte beachten Sie, dass die Zufahrt zum Grundstück mit großen Sattelschleppern nur erschwert möglich ist. Fahrzeuge mit einer Nutzlast von 7,5 Tonnen können das Betriebsgelände problemlos erreichen.

Merkmale

  • Bezug: Verfügbar ab dem 01.11.2025 oder nach Vereinbaru
  • Beleuchtung: Deckenbeleuchtung

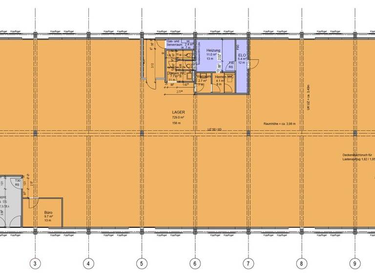
Grundrisse

Grundrisse
1 / 2

Realisiere Dein Projekt

Bausubstanz und Energie

Energieausweis

Endenergieverbrauch (Wärme)

  • Baujahr1996
  • HeizungsartZentralheizung
  • EnergieträgerGas
Immowelt logo

Mietkosten

Monatliche Miete
7,50 €/m²
Provision für Mieter
1,78 Netto-Monatsmieten inkl. MwSt.
Kaution
keine Angabe

Lage

address-icon
PangRosenheim (83026)
Der Anbieter hat die genaue Adresse nicht freigegeben
Eingebettet in einem der schönsten Winkel des Alpenvorlandes, empfiehlt sich Rosenheim - als wirtschaftliches Zentrum für rund 350.000 Einwohner - seinen Besuchern mit optimalen Verkehrsanbindungen und einem hochwertigen Kultur- und Freizeitangebot zu allen Jahreszeiten.

In der Stadt Rosenheim leben ca. 60.000 Einwohner, der Stadtumlandbereich umfasst ca. 125.000 Einwohner und im gesamten Einzugsbereich (auch Österreich/ Nordtirol) wohnen etwa 350.000 Menschen. Die besondere landschaftliche wie auch wirtschaftliche Attraktivität hat in den letzten Jahren zu einem überdurchschnittlichen Bevölkerungs- und Wirtschaftswachstum geführt.

Zu einer ganzen Fülle von positiven Standortfaktoren gehört die besondere verkehrstechnische Infrastruktur mit Anbindung an europäische Hauptverkehrsachsen über Straße und Schiene und die Nähe der internationalen Flughäfen München und Salzburg sowie das reichhaltige und hochqualifizierte Kulturangebot und der hohe Freizeitwert der Chiemgauer Alpen. Verschiedene Studien attestieren der Stadt und dem Landkreis beste Noten.

Die Immobilie finden Sie im Westen der Stadt Rosenheim an der Staatsstraße 2095 Rosenheim in Richtung Bad Aibling. Die Auffahrt zur neuen B15 ist nur wenige hundert Meter entfernt. Über die neue Straße erreichen Sie die A8 in nur 15 Minuten.

Weitere Informationen

Nutzung Großhandel in Verbindung mit Ausstellung, Service und Logistik, Fertigung, Maschinenbau Zusatz/Über Uns Sie möchten mehr Informationen zu diesem Objekt? Gern übersenden wir Ihnen unverbindlich unser aussagekräftiges Exposé. Ein Email oder Anruf genügt.

Die im Exposé angegebenen Daten beruhen auf Angaben des Eigentümers. Für diese Angaben übernehmen wir keine Gewähr. Der Maklervertrag mit uns kommt entweder durch schriftliche Vereinbarung, oder auch durch die Inanspruchnahme unserer Maklertätigkeit auf der Basis des Objekt Exposés und seiner Bedingungen zustande.

Unsere Beratungsleistung ist erfolgsorientiert und für Sie bis zum Abschluss eines Vertrages freibleibend. Gern stehen wir Ihnen beratend zur Seite. Wir freuen uns auf Ihren Anruf.

Herzlich Willkommen bei Felder, Ihrem Spezialisten für Gewerbe- und Privatimmobilien in Rosenheim und dem bayerischen Oberland.

Sie suchen eine Gewerbeimmobilie oder eine Wohnimmobilie in Rosenheim und möchten sich bei Ihrer Suche auf das Fachwissen und Netzwerk eines starken Partners verlassen können? Sie möchten Ihre Gewerbeimmobilie oder Privatimmobilie vermieten oder verkaufen? Sie suchen die passenden Mieter oder Investoren? Dann sollten Sie uns ansprechen und von unserem Bekanntheitsgrad und großem Netzwerk in der Region profitieren.

Wir begleiten Sie vom ersten Kontakt bis zur Unterschrift unter dem Miet- oder Kaufvertrag. Seit über 25 Jahren ist die Firma Felder als der Spezialist für Gewerbeimmobilien und kompetenter Partner für die Vermittlung von Wohnimmobilien im Rosenheimer Immobilienmarkt bekannt. Mehr Immobilien finden Sie auf felder-gewerbe.de Stichworte Sonstiges: Kabelkanäle

Weitere Services

Lust auf eine Besichtigung?
Eine Frage zur Immobilie?
Nachricht hinzufügen
Mit der Nutzung der oben angegebenen Telefonnummer oder durch Klicken auf „Kontaktieren“ akzeptierst Du die Allgemeinen Nutzungsbedingungen, denen Du jederzeit widersprechen kannst. Weitere Informationen zum Datenschutz

Über den Anbieter

Ludwigsplatz 15, 83031 Rosenheim
partner badge
10 Jahre Partnerschaft
Frau Tanja HeiseDein Kontakt
Online-ID: 2lyg557
Referenznummer: A925
Felder. Der Gewerbespezialist GmbH
Felder. Der Gewerbespezialist GmbH
Bewertung: 5 von 5 Sternen
Nachricht hinzufügen
Mit der Nutzung der oben angegebenen Telefonnummer oder durch Klicken auf „Kontaktieren“ akzeptierst Du die Allgemeinen Nutzungsbedingungen, denen Du jederzeit widersprechen kannst. Weitere Informationen zum Datenschutz
Wie zufrieden bist du mit dieser Seite (nicht mit der Immobilie selbst)?