
VON POLL IMMOBILIEN Warendorf - Andres Köper
VON POLL IMMOBILIEN Shop Warendorf
004 ···
Nr. anzeigenPreise & Kosten
Provision für Käufer
Käuferprovision beträgt 3,57 % (inkl. MwSt.) des beurkundeten Kaufpreises
Lage
Die Werkstatt befindet sich in einer starken Lage im Industriegebiet von Hamm, mit hervorragender Sichtbarkeit und Anbindung.
Der nahegelegene Kreisverkehr gewährleistet einen flüssigen Verkehrsfluss und eine optimale Erreichbarkeit - sowohl für Kunden als auch für Lieferanten.
In der direkten Umgebung haben...
Das Haus
Kategorie
Mehrfamilienhaus
Baujahr
1966
Energie & Heizung
Warum sehe ich diese Anzeige? – Du siehst diese Anzeige basierend auf Ihrer Navigation auf unserer Website und den Suchkriterien, die du verwendet hast.
Weitere Energiedaten
Haustyp
Massivhaus
Details
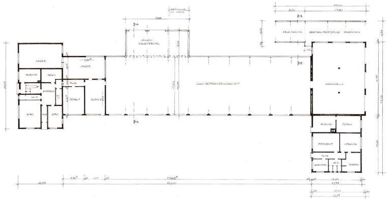
Objektbeschreibung
Dieses Angebot richtet sich an Unternehmer, Nachfolger oder Investoren, die eine laufende und eingeführte Werkstatt in attraktiver Lage von Hamm suchen - diskret vermittelt im Secret Sale.
Die Immobilie stammt aus den 1960er Jahren, wurde über Jahrzehnte gepflegt und kontinuierlich genutzt. Heute präsentiert sie sich...
Ausstattung
Besonderheiten
+ Etablierter Werkstattbetrieb mit bestehender Kundschaft
+ Solide 60er-Jahre-Immobilie mit Charakter und Entwicklungspotenzial
+ Erweiterung im Jahr 2004
+ Großzügiges Grundstück mit ausreichend Freifläche (Platz für Fahrzeuge, Lager etc.)
+ Mehrfamilienhaus im vorderen...
Weitere Informationen
Sonstiges
GELDWÄSCHE: Als Immobilienmaklerunternehmen ist die von Poll Immobilien GmbH nach § 2 Abs. 1 Nr. 14 und § 11 Abs. 1, 2 Geldwäschegesetz (GwG) dazu verpflichtet, bei der Begründung einer Geschäftsbeziehung die Identität des Vertragspartners festzustellen und zu überprüfen, bzw. sobald ein ernsthaftes Interesse an...
Anbieter der Immobilie
VON POLL IMMOBILIEN Warendorf - Andres Köper
Laurentiusstrasse 2, 48231 Warendorf
Online-ID: 2lygk5u
Referenznummer: 25264154
Finde Angebote wie dieses
Hier geht es zu unserem Impressum, den Allgemeinen Geschäftsbedingungen, den Hinweisen zum Datenschutz und nutzungsbasierter Online-Werbung.