Version: 8.24.0Navigation überspringen
227.000 €
4 Zimmer  •  87 m²  •  277 m² Grundstück  •  frei ab 15.06.2026
Immowelt logo

Einfamilienhaus zum Kauf • provisionsfrei
227000 €
2.609 €/m²
4 Zimmer  •  87 m²  •  277 m² Grundstück  •  frei ab 15.06.2026

Moderne Neubauhäuser am Balaton – ruhige Lage in Balatonmáriafürdo III.

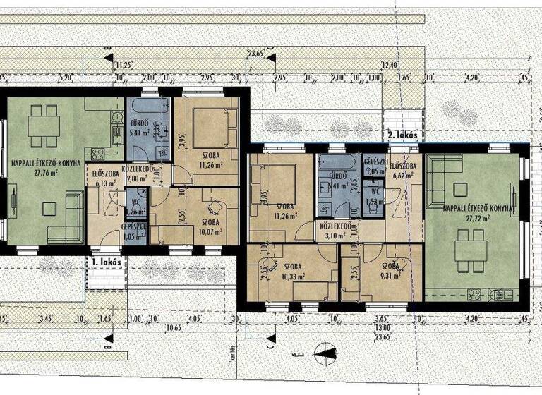
Zum Verkauf steht eine 87 m2 große Doppelhaushälfte eines neu errichteten Wohnhauses in einer ruhigen, angenehmen Straße von Balatonmáriafürdo, nur wenige Minuten von den freien Stränden des Balatons entfernt. Laut Grundriss handelt es sich um Wohneinheit Nr. 2.
Zu dieser Haushälfte gehört ein 277 m2 großer, eingezäunter Grundstücksteil mit Nutzungsaufteilung, auf dem ein PKW-Stellplatz mit motorisiertem Einfahrtstor vorgesehen ist.
Die Raumaufteilung umfasst einen Vorraum, ein Badezimmer mit Badewanne und WC, ein separates WC, einen offenen Wohn-Essbereich mit amerikanischer Küche sowie drei Schlafzimmer. Vom Wohnzimmer aus gelangt man direkt auf eine 22,6 m2 große Terrasse, die zusätzlichen Wohnkomfort im Freien bietet.
Das Gebäude wird in Massivbauweise aus LeierPLAN 30 Nut-Feder Keramikmauerwerk errichtet und erhält eine 15 cm starke Wärmedämmung an der Fassade. Die farbigen Kunststofffenster mit 6-Kammer-Profil, dreifacher Verglasung mit einem Ug-Wert von 0,6 und warmer Kante sorgen für ausgezeichnete Wärme- und Schalldämmung. Eingebaut werden zudem eine mehrfach verriegelte Sicherheitseingangstür sowie dekorfolierte Innentüren.
Die Kühlung erfolgt über eine Daikin Klimaanlage, während die Beheizung und Warmwasserversorgung durch eine Viessmann Gastherme mit integriertem Speicher in Kombination mit Fußbodenheizung gewährleistet wird. Bis zu einem bestimmten Baufortschritt besteht gegen Aufpreis die Möglichkeit, ein Wärmepumpensystem zu wählen. Der Stromanschluss beträgt 1×32 A sowie 1×16 A mit H-Tarif, was zusammen mit der modernen Haustechnik für niedrige Betriebskosten sorgt.
Im Kaufpreis enthalten sind die Gegensprechanlage sowie die Vorbereitung für motorisierte Rollläden und eine Alarmanlage. Zusätzlich kann eine Einbauküche im Wert von brutto 5 000 EUR als Geschenk ausgewählt werden.
Der Bau befindet sich derzeit bei etwa 40 % Fertigstellungsgrad. Die Übergabe erfolgt schlüsselfertig, der geplante Fertigstellungstermin ist Juni 2026.
KEINE PROVISION! Wir sprechen Deutsch und Englisch

Anmerkung:
Die von uns gemachten Informationen beruhen auf Angaben des Verkäufers bzw. der Verkäuferin. Für die Richtigkeit und Vollständigkeit der Angaben kann keine Gewähr bzw. Haftung übernommen werden. Ein Zwischenverkauf und Irrtümer sind vorbehalten.

Merkmale

  • frei ab 15.06.2026
  • 277 m² Grundstück
  • Außen-Stellplatz
  • Badewanne
  • voll klimatisiert

Grundrisse

Grundrisse
1 / 1

Realisiere Dein Projekt

Bausubstanz und Energie

Der Anbieter hat keine Informationen zum Energieverbrauch bereit gestellt.
  • Baujahr2026
  • Zustand der ImmobilieNeubau
  • HeizungsartFußbodenheizung
Immowelt logo

Preisdetails

Kaufpreis
227000 €
2.609,20 €/m²
Provision für Käufer
provisionsfrei

Lage

address-icon
Balatonmáriafürdo (8647)
Fallback location image
Die Karte ist nicht verfügbar.

Weitere Informationen

Besichtigungstermine Besichtigung: nach Vereinbarung Stichworte Versorgung: Städtische Wasserversorgung, Städtische Stromversorgung

Weitere Services

Lust auf eine Besichtigung?
Eine Frage zur Immobilie?
Nachricht hinzufügen
Mit der Nutzung der oben angegebenen Telefonnummer oder durch Klicken auf „Kontaktieren“ akzeptierst Du die Allgemeinen Nutzungsbedingungen, denen Du jederzeit widersprechen kannst. Weitere Informationen zum Datenschutz

Über den Anbieter

Immobest-Ungarn
Immobest-UngarnMaklerbüro
Ungarn - Bajcsy Zs. u. 26, H-8100 Várpalota
partner badge
Partnerschaft
Herr Csaba Groz
Herr Csaba GrozDein Kontakt
Online-ID: 2nx9w5d
Referenznummer: 25267
Immobest-Ungarn
title
Immobest-Ungarn
Bewertung: 4,9 von 5 Sternen
Nachricht hinzufügen
Mit der Nutzung der oben angegebenen Telefonnummer oder durch Klicken auf „Kontaktieren“ akzeptierst Du die Allgemeinen Nutzungsbedingungen, denen Du jederzeit widersprechen kannst. Weitere Informationen zum Datenschutz
Wie zufrieden bist du mit dieser Seite (nicht mit der Immobilie selbst)?