Version: 8.26.0Navigation überspringen
2.240 €
5 Zimmer  •  141 m² Bürofläche
Immowelt logo

Praxis zur Miete
2.240 €
5 Zimmer  •  141 m² Bürofläche

Exklusive Büro- und Praxiseinheit in zentraler Lage im Inneren Westen

Die exklusive Büro- und Praxiseinheit mit ca. 151 m² besticht durch ihre zentrale und verkehrsgünstige Lage im inneren Westen von Regensburg.

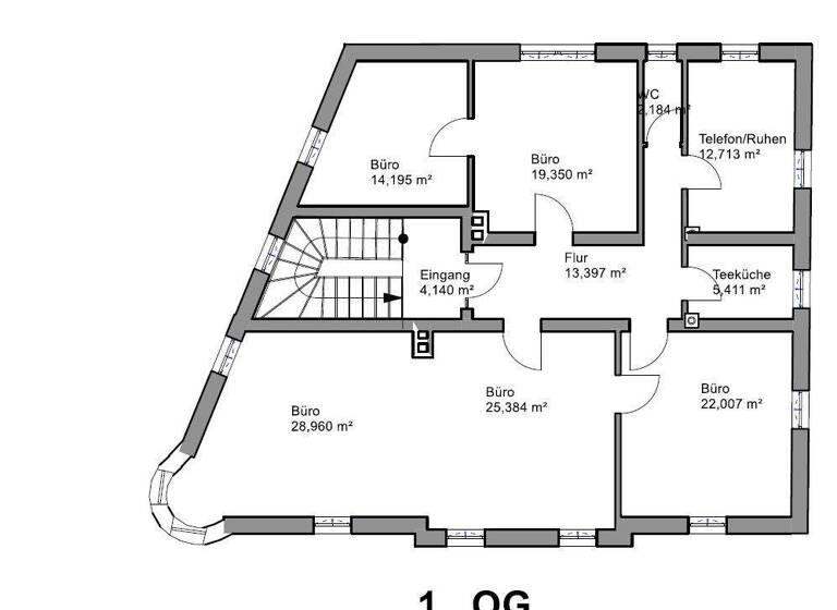
Die Mietfläche befindet sich in einem modernen neu renovierten Büro- und Wohngebäude und ist über das Treppenhaus zugänglich. Die Einheit umfasst mehrere helle Büro- und Besprechungsräume, ein WC, eine Küche und einen Aufenthaltsraum. Alle Zimmer sind vom Flur aus begehbar.

Die Ausstattung umfasst einen Parkettboden und abgehängte Decken mit integrierter Beleuchtung. Große Fenster sorgen für eine freundliche und lichtdurchflutete Arbeitsatmosphäre.

Parkplätze befinden sich in unmittelbarer Nähe.

Obermeier Immobilien freut sich auf Ihre Anfrage!

Merkmale

  • Bezug: ab sofort
  • Gäste-WC
  • Bodenbelag: Parkett
Das wichtigste im Überblick:

- Modernes, neu renoviertes Büro- und Wohngebäude
- Lage: Zentrale, verkehrsgünstige Lage im inneren Westen
- Büro- und Praxiseinheit in Regensburg:
- Fläche: ca. 151 m²

- Raumaufteilung:
Mehrere helle Büro- und Besprechungsräume
Alle Räume vom Flur aus begehbar
Küche
Aufenthaltsraum
WC

- Ausstattung:
Parkettboden
Abgehängte Decken mit integrierter Beleuchtung

- Mietkonditionen:

Miete: 2038 EUR netto zzgl. MwSt.
NK: 400 EUR zzgl. MwSt.

Miete bei nicht Steuerabzugsberechtigung:

Miete: 2.240 EUR
NK: 476 Euro

Grundrisse

Grundrisse
1 / 1

Bausubstanz und Energie

Möchtest du Details zum Energieverbrauch?info_energy_calculation-icon
  • Zustand der ImmobilieMassivhaus
Immowelt logo

Mietkosten

Nettomiete
2.240 €
Nebenkosten
476 €
Provision für Mieter
3 Bruttomonatsmieten zzgl. MwSt. bei Vertragsabschluss fällig (ohne Energiekosten, inkl. Umlage) inkl. MwSt.
Kaution
keine Angabe

Lage

address-icon
WestenviertelRegensburg (93049)
Der Anbieter hat die genaue Adresse nicht freigegeben
Die Büro- und Praxisräume liegen im westlichen Teil von Regensburg und überzeugen durch eine hervorragende Verkehrsanbindung zur A93 und A3. Die Innenstadt ist in wenigen Minuten erreichbar, ebenso wie diverse Einkaufsmöglichkeiten und Gastronomieangebote.

Der Standort bietet ideale Voraussetzungen für ein angenehmes und produktives Arbeitsumfeld.

Weitere Informationen

Sonstiges Bitte teilen Sie uns Ihren Wunschtermin für die Besichtigung mit. Um die Terminplanung für alle Beteiligten so angenehm wie möglich zu gestalten, senden Sie uns bitte Ihre Terminvorschläge oder bevorzugten Wochentage mit Zeiträumen.

Nach einer erfolgreichen Besichtigung erhalten Sie alle erforderlichen Objektunterlagen zur Einsicht und Planung. Alle Beratungs- und Verkaufsgespräche werden über unser Büro geführt. Der Energieausweis ist in Erstellung und liegt zur Besichtigung vor.

Mit Obermeier Immobilien haben Sie geprüfte Immobilienmakler (IHK) und DEKRA-zertifizierte Gutachter für Immobilienbewertung an Ihrer Seite. Wir agieren als Vermittler im Interesse aller Beteiligten.

Das Team von Obermeier-Immobilien freut sich darauf, Ihnen diese besondere Liegenschaft zeigen zu dürfen. Stichworte Gesamtfläche: 151,00 m², StromAnschlußwert: 380 kW

Weitere Services

Lust auf eine Besichtigung?
Eine Frage zur Immobilie?
Mit einer persönlichen Nachricht hast du bessere Chancen auf eine Antwort.
Mit der Nutzung der oben angegebenen Telefonnummer oder durch Klicken auf „Kontaktieren“ akzeptierst Du die Allgemeinen Nutzungsbedingungen, denen Du jederzeit widersprechen kannst. Weitere Informationen zum Datenschutz

Über den Anbieter

Donaustaufer Str. 170a, 93059 Regensburg
Herr Raimund ScheuererDein Kontakt
Online-ID: 26EAEKEA8FS3
Referenznummer: 788
Wie zufrieden bist du mit dieser Seite (nicht mit der Immobilie selbst)?