attraktive Praxis/Laden/Studio - Fläche mit 4 Zimmern beste Lage+++TOP+++ zentral in Markkleeberg
Die attraktive Gewerbeeinheit befindet sich in einem sehr gepflegten Mehrfamilienhaus in Markkleeberg Ost. Die Erdgeschosseinheit überzeugt durch viel Helligkeit und große, offene Räume. Aufgrund der guten Raumgestaltung sind bauliche Veränderungen nach Absprache möglich. Egal ob Studio, Büro, Praxis oder Laden - aufgrund des praktischen Grundrisses sind hier kaum Grenzen gesetzt. Zusätzlich verfügt die Einheit über 2 Teeküchen, sowie 2 Toiletten. Ebenso stehen Ihnen mehrere Stellplätze unmittelbar auf dem Grundstück zur Verfügung. Hier bleiben keine Wünsche offen. Überzeugen Sie sich selbst und vereinbaren Sie jetzt gleich einen Besichtigungstermin.
ACHTUNG!! Kontakt- und Besichtigungsanfragen bitte per E-Mail! Aufgrund vieler Termine ist eine telefonische Erreichbarkeit nicht immer gegeben.
Badezimmer: Badewanne, Bad mit Dusche, Bad mit Fenster
Bodenbelag: Fliesen, Laminat
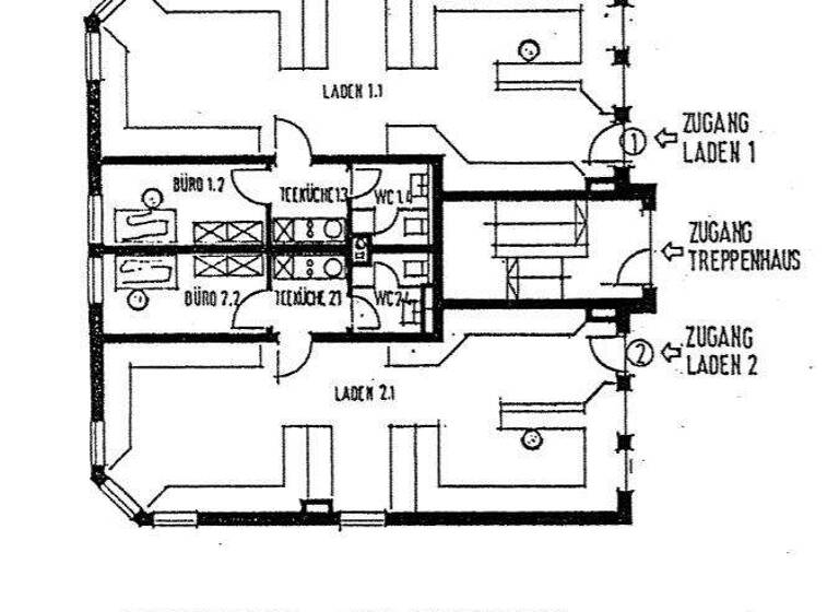
Grundrisse
Grundrisse
1 / 1
Bausubstanz und Energie
Möchtest du Details zum Energieverbrauch?
HeizungsartZentralheizung
EnergieträgerFernwärme, Gas
Mietkosten
Warmmiete
1.820 €
Nettomiete
1.500 €
Nebenkosten
320 €
Heizkosten
in Warmmiete enthalten
Provision für Mieter
Bitte beachte, das Angebot kann bei Vertragsabschluss die Zahlung einer Provision beinhalten. Weitere Informationen erhältst Du vom Anbieter.
Kaution
keine Angabe
Lage
Arndtstr. 11, Markkleeberg (04416)
Die Gewerbeeinheit befindet sich zentral gelegene in Markkleeberg Ost und ist gut mit den öffentlichen Verkehrsmitteln zu Fuß oder per PKW zu erreichen.
Weitere Informationen
Sonstiges
Mietbeginn ab 07/2026 oder nach Vereinbarung!
Die in unserem Exposé enthaltenen Aussagen basieren ausschließlich auf Informationen, die uns vom Vermieter zur Verfügung gestellt wurden. Wir übernehmen daher keine Gewähr für die Vollständigkeit und Richtigkeit der Angaben. Das Immobilienangebot ist freibleibend. Irrtum und Zwischenvermietung bleiben vorbehalten.
Interessiert? Dann rufen Sie uns an oder senden Sie uns eine Anfrage.
Stichworte
Wohnfläche: 150,00 m², Anzahl der Badezimmer: 2, Bundesland: Sachsen-Anhalt