Version: 8.24.0Navigation ĂĽberspringen
1 Grund mehr. Immobilien GmbH
315.000 €
1 Zimmer  â€˘  35 m²  â€˘  EG

Studio zum Kauf
315000 €
9.000 €/m²
1 Zimmer  â€˘  35 m²  â€˘  EG

1 Grund mehr. - Ruhige, helle 1-Zimmer-Gartenwohnung mit Terrasse & Tiefgarage im grĂĽnen Harlaching

Ein kompakter RĂĽckzugsort mit gepflegter Ausstattung und kleinem Garten - ideal fĂĽr Singles, Paare oder als solide Kapitalanlage in Harlaching.

Helle 1-Zimmer-Erdgeschosswohnung mit Süd-/Westterrasse und kleinem Garten, ca. 35 m² Wohnfläche, inklusive Einbauküche, Kellerabteil und Duplex-Tiefgaragenstellplatz. Gepflegt, ruhig gelegen und aktuell vermietet. Baujahr 1994, Wohnhaus mit Aufzug, Gemeinschaftsräumen und angenehmem Umfeld in München-Harlaching.

Objektbeschreibung:
Diese gepflegte Erdgeschosswohnung überzeugt durch ihren klaren Grundriss und eine helle Wohnatmosphäre. Auf rund 35 m² Wohnfläche bietet sie ein kompaktes, gut geschnittenes Zuhause mit funktionalem Wohn- und Schlafbereich, großen Fenstern und Blick ins Grüne. Das Badezimmer ist gepflegt und einfach in Weiß gehalten.
Die kleine Einbauküche ist praktisch gestaltet und gut in den Wohnbereich integriert. Von hier aus gelangen Sie direkt auf die sonnige Süd-/Westterrasse mit einem kleinen Gartenanteil von rund 6 m² - ein angenehmer Platz zum Entspannen.
Das Laminat im Wohnbereich sorgt für eine wohnliche Note, während das Bad mit hellen Fliesen ausgestattet ist.
Das Mehrfamilienhaus aus dem Jahr 1994 präsentiert sich in gepflegtem Zustand und verfügt über einen Aufzug. Zur Wohnung gehören ein Kellerabteil mit Regalen, Gemeinschaftsräume für Wäsche und Fahrräder sowie ein Duplex-Tiefgaragenstellplatz (zzgl. 10.000 EUR).

Die Wohnung ist derzeit fĂĽr 893 Euro monatlich kalt vermietet - eine stabile und unkomplizierte Investition in gefragter Lage.

Eine kleine, gepflegte Gartenwohnung mit praktischer Ausstattung und sonniger Terrasse - ideal für Kapitalanleger oder Eigennutzer, die das ruhige, grüne Harlaching schätzen.

Merkmale

  • vermietet
  • Erdgeschoss
  • Personenaufzug
  • Kelleranteil
  • Tiefgarage, Duplex-Stellplatz
  • Garten
  • Terrasse

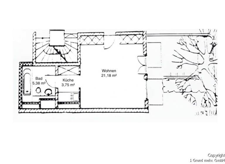
Grundrisse

Grundrisse
1 / 1

Realisiere Dein Projekt

Bausubstanz und Energie

Energieausweis

E
  • Baujahr1994
  • Zustand der ImmobilieGepflegt
  • HeizungsartFuĂźbodenheizung
  • EnergieträgerFernwärme, Gas
MediumRectangleTop

Preisdetails

Kaufpreis
315000 €
9.000 €/m²
Preis pro Stellplatz
10000 €
Hausgeld
168 €
Provision für Käufer
1,5% zzgl. gesetzl. MwSt.
Weitere Preisinformationen
1 Tiefgaragenstellplatz, Kaufpreis: 10.000,00 EUR
Geschätzte Gesamtkosten
337.050 €1
Kaufpreis
315.000 €
Notarkosten (1,5%)
4.725 €
Grunderwerbsteuer (3,5%)
11.025 €
Provision für Käufer (1,5%)
4.725 €
Grundbucheintrag (0,5%)
1.575 €
1Der angezeigte Wert ist eine automatisch berechnete Schätzung von immowelt.
2Bei den Angaben handelt es sich um ortsübliche Werte. Individuelle Kosten können abweichen.

Lage

address-icon
Untergiesing-Harlaching, München (81547)
Der Anbieter hat die genaue Adresse nicht freigegeben
Die Wohnung befindet sich in einer ruhigen, grünen und dennoch zentralen Wohnlage in München. Alle wichtigen Einrichtungen des täglichen Lebens sind in unmittelbarer Nähe erreichbar: Einkaufsmöglichkeiten, Cafés, Restaurants, Ärzte und Apotheken befinden sich nur wenige Gehminuten entfernt. Öffentliche Verkehrsmittel bieten eine schnelle Anbindung an das Stadtzentrum und andere Stadtteile, was die Wohnung besonders attraktiv für Berufspendler oder stadtnahe Singles macht.

Die Umgebung zeichnet sich durch eine angenehme Mischung aus städtischem Komfort und naturnaher Erholung aus. Grünanlagen und kleine Parkflächen laden zu Spaziergängen, Joggingrunden oder entspannenden Momenten im Freien ein. Gleichzeitig profitieren die Bewohner von der Ruhe der Wohnanlage, die den Alltagslärm der Stadt weitgehend fernhält. Die Kombination aus zentraler Lage, Garten und Terrasse bietet den idealen Rahmen für urbanes, komfortables Wohnen in München.

Weitere Informationen

Sonstiges Die Wohnung ist zur Zeit vermietet.
Kaltmiete: 893,- Euro + 80,-Euro NK plus 50,- Euro Heizung Stichworte Anzahl Terrassen: 1

Weitere Services

Lust auf eine Besichtigung?
Eine Frage zur Immobilie?
Nachricht hinzufĂĽgen
Mit der Nutzung der oben angegebenen Telefonnummer oder durch Klicken auf „Kontaktieren“ akzeptierst Du die Allgemeinen Nutzungsbedingungen, denen Du jederzeit widersprechen kannst. Weitere Informationen zum Datenschutz

Ăśber den Anbieter

Johann-Bader-Strasse 20, 82049 Pullach
partner badge
Partnerschaft
Firma 1 Grund mehr. GmbHDein Kontakt
Online-ID: 2lqrf5y
Referenznummer: 51271
1 Grund mehr. Immobilien GmbH
1 Grund mehr. Immobilien GmbH
Nachricht hinzufĂĽgen
Mit der Nutzung der oben angegebenen Telefonnummer oder durch Klicken auf „Kontaktieren“ akzeptierst Du die Allgemeinen Nutzungsbedingungen, denen Du jederzeit widersprechen kannst. Weitere Informationen zum Datenschutz
MediumRectangleTop
MediumRectangleBottom
MediumRectangleTop
Wie zufrieden bist du mit dieser Seite (nicht mit der Immobilie selbst)?