Version: 8.26.0Navigation überspringen
599.900 €
750 m² Lagerfläche
Immowelt logo

Lagerhalle zum Kauf
599900 €
750 m² Lagerfläche

Moderne ca. 750m² große Lagerhalle in Reddelich - zzgl. ca. 237m² Nutzfl. & Erweiterungsmöglichkeit!

Die im Jahr 2022 errichtete Produktions- und Lagerhalle befindet sich auf einem 3.459 m² großen Grundstück mit direkter Zufahrt von der öffentlichen Straße - die ideale gewerbliche Niederlassung für Ihr Unternehmen.

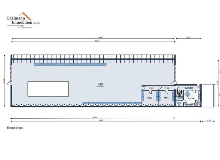
Das Hauptlager mit einer Nutzfläche von ca. 750 m² und einem Volumen von ca. 5.012 m³ verfügt über eine Grundfläche von etwa 50,39 m × 14,55 m und erreicht eine maximale Hallenhöhe von 6,18 m.
Im Inneren der Halle, welche für die Anforderungen der Holzverarbeitung konzipiert wurde, wurden zwei separate Räume geschaffen, die sich ideal zur Aufbewahrung von häufig genutzten Werkzeugen, Materialien oder Arbeitskleidung eignen.
Die Halle besticht durch ihre funktionale und praxisorientierte Gestaltung und bietet optimale Voraussetzungen für Produktions-, Lager- oder Verarbeitungsprozesse.
Dank der großzügigen Grundrissgestaltung lässt sich der Innenraum flexibel nutzen und auf unterschiedliche betriebliche Anforderungen anpassen.

Das Grundstück ist überwiegend großflächig gepflastert, wodurch reibungslose Abläufe im Anlieferungs- und Rangierverkehr sowie der Einsatz von Gabelstaplern und Transportfahrzeugen problemlos möglich sind.
Insgesamt stehen fünf Stellplätze für Mitarbeiter oder Besucher zur Verfügung.
Auf der gepflasterten Fläche befindet sich ein massiv errichteter Unterstand aus Baumstämmen, mit den Maßen 12 m * 8 m.

Ergänzend befindet sich auf dem Grundstück ein Rundbogenzelt mit den Maßen 9,15 m × 26 m und einer Raumhöhe von 4,5 m, das zusätzlichen Lager- oder Arbeitsraum bietet. Daraus ergibt sich eine Grundfläche von ca. 238m² welche ideal für weiter Lager- oder Arbeitsräume genutzt werden kann.

Merkmale

  • Bezug: nach Absprache
  • 3.459 m² Grundstück
Die Konstruktion der Halle überzeugt durch eine solide und langlebige Bauweise.
Die durchdachte Tragkonstruktion der Halle bietet ein ca. 50 Meter langes Hochregal, welches besonders praktisch sowohl von innen als auch von außen nutzbar ist.
Der massive Stahlbeton-Gründungskörper bildet die stabile Basis des Gebäudes und gewährleistet eine hohe Tragfähigkeit sowie eine dauerhafte Standfestigkeit.

Allgemeine Konstruktionselemente:

Darauf aufbauend sorgt das sorgfältig ausgeführte Holztragwerk in Kombination mit einer robusten Holzbalkendecke für eine natürliche und nachhaltige Bauweise, die den Anforderungen moderner Produktionsbetriebe gerecht wird.
Besonders hervorzuheben ist das markante Tonnen-Pultdach, das sich elegant bis zum Boden hinabzieht und der Halle ihr unverwechselbares Erscheinungsbild verleiht.
Diese architektonische Formgebung sorgt nicht nur für eine ansprechende Optik, sondern trägt auch zur effizienten Entwässerung und optimalen Raumausnutzung im Inneren bei.
Großflächig integrierte Trapezlichtplatten entlang der Dachflächen ermöglichen einen gleichmäßigen, natürlichen Tageslichteinfall und schaffen dadurch ein angenehmes, helles Arbeitsumfeld mit reduziertem Energiebedarf für künstliche Beleuchtung.

Erweiterungsmöglichkeit:

Für die künftige Erweiterung des Standorts liegt eine gültige Baugenehmigung für den Bau eines separaten Bürogebäudes neben der Haupthalle bereits vor. Die genehmigte Baufläche hat eine Größe von 12,2 m * 7 m. Dadurch eröffnen sich Möglichkeiten, Produktion, Verwaltung und Lagerflächen in direkter räumlicher Nähe zu bündeln und die Betriebsabläufe weiter zu optimieren.

Grundrisse

Grundrisse
1 / 1
Immowelt logo

Preisdetails

Kaufpreis
599900 €
Provision für Käufer
6 % zzgl. MwSt.
Geschätzte Gesamtkosten
635.894 €1
Kaufpreis
599.900 €
Provision für Käufer (6%)
35.994 €
1Der angezeigte Wert ist eine automatisch berechnete Schätzung von immowelt.
2Bei den Angaben handelt es sich um ortsübliche Werte. Individuelle Kosten können abweichen.

Lage

address-icon
Reddelich (18209)
Der Anbieter hat die genaue Adresse nicht freigegeben
Die Lagerhalle befindet sich in der Gemeinde Reddelich im Landkreis Rostock, im Herzen von Mecklenburg-Vorpommern.
Der Standort zeichnet sich durch seine verkehrsgünstige Lage und die Nähe zur Ostseeküste aus.
Über die nur wenige Hundert Meter entfernte Bundesstraße B105 ist eine direkte Anbindung an die Städte Bad Doberan und Rostock gewährleistet.

Die Autobahn A20 ist in kurzer Fahrzeit erreichbar und ermöglicht somit eine schnelle Verbindung in überregionale Wirtschaftszentren wie Lübeck oder Stralsund.
Reddelich verfügt zudem über einen eigenen Bahnanschluss, der die Erreichbarkeit des Standorts zusätzlich verbessert.
Damit eignet sich der Standort ideal für Betriebe, die auf reibungslose Transport- und Logistikabläufe angewiesen sind.
Die Halle liegt in einem ruhig gelegenen Gewerbegebiet am Ortsrand, umgeben von weiteren gewerblichen Nutzungen.

Das Umfeld ist gepflegt und bietet ausreichend Platz für Rangier- und Lieferverkehr. Die Zufahrt erfolgt direkt von der öffentlichen Straße auf das Grundstück.
Durch die Kombination aus ruhiger Lage, ausgezeichneter Verkehrsanbindung und Nähe zur Küste bietet Reddelich einen idealen Standort für Lager-, Produktions- oder Handwerksbetriebe, die Wert auf gute Erreichbarkeit und eine funktionale Infrastruktur legen.

Weitere Informationen

Sonstiges Bei der Halle handelt es sich um eine unbeheizte Kalthalle. Daher ist die Erstellung und Bereitstellung eines Energieausweises gemäß den gesetzlichen Vorgaben nicht erforderlich bzw. nicht möglich.

Bitte haben Sie dafür Verständnis, dass unser Büro Ihre Anfrage nur bearbeiten kann, wenn folgende Daten vollständig angegeben werden:

- NAME
- WOHNANSCHRIFT
- TELEFONNUMMER
- E-MAIL ADRESSE

Alle Angaben basieren auf Informationen und Hinweisen, die wir vom Auftraggeber erhalten haben. Für deren Richtigkeit, Aktualität und Vollständigkeit können wir keine Gewähr übernehmen. Irrtümer und Zwischenverkauf bleiben vorbehalten.

Mit freundlichen Grüßen
Ihr Team von
Edelmann-Immobilien-MV Stichworte Wohnfläche: 750,00 m², Lagerfläche: 750,00 m², Gesamtfläche: 750,00 m², Hallenhöhe: 6,44 m, Bundesland: Mecklenburg-Vorpommern

Weitere Services

Lust auf eine Besichtigung?
Eine Frage zur Immobilie?
Nachricht hinzufügen
Mit der Nutzung der oben angegebenen Telefonnummer oder durch Klicken auf „Kontaktieren“ akzeptierst Du die Allgemeinen Nutzungsbedingungen, denen Du jederzeit widersprechen kannst. Weitere Informationen zum Datenschutz

Über den Anbieter

Grubenstraße 35, 18055 Rostock
partner badge
10 Jahre Partnerschaft
Herr Lars Edelmann
Herr Lars EdelmannDein Kontakt
Online-ID: 25GQLJJ8XF4C
Referenznummer: LER1.JB.1758
Wie zufrieden bist du mit dieser Seite (nicht mit der Immobilie selbst)?