Version: 8.25.1Navigation überspringen
169.000 €
3 Zimmer  •  74,7 m²
Immowelt logo

Wohnung zum Kauf
169000 €
2.263 €/m²
3 Zimmer  •  74,7 m²

Langfristig vermietete Kapitalanlage mit eigenem Garten!

Die angebotene Wohnung befindet sich im zweiten Obergeschoss eines 1996 erbauten Mehrfamilienhauses. Der besondere Aufbau sowie die sorgfältig gewählten Materialien machen die Wohnungen bei Anlegern und Mietern gleichermaßen beliebt. Die unverkennbare, rote Klinkerfassade ist hinterlüftet und extra gedämmt.
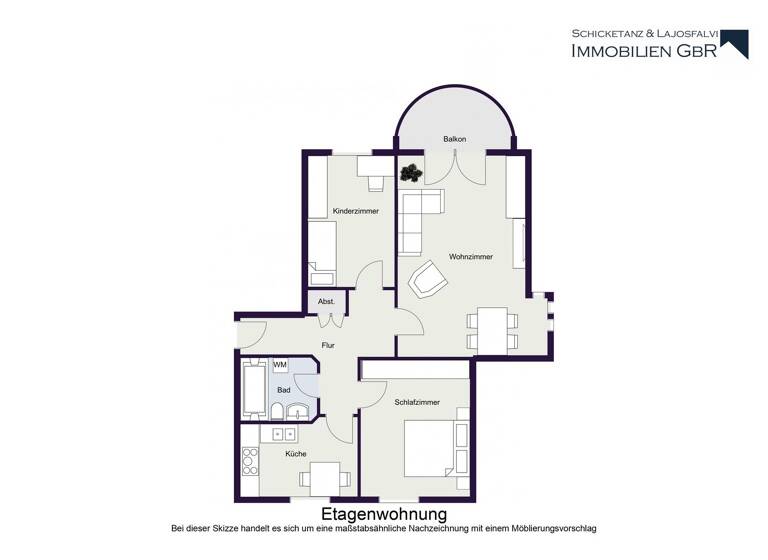
Die Wohnung verfügt über drei helle Zimmer sowie eine Tageslichtküche. Das Bad hat eine Abluft und einen Waschmaschinenanschluss. Die Fenster in der Wohnung sind teilweise erneuert. Besonderes Augenmerk gilt dem halbrunden Balkon, welcher das umliegende Grün mit der Wohnung verschmelzen lässt.
Ergänzt wird das Angebot durch einen Kellerraum sowie einen Carport-Stellplatz, welche ebenfalls teil der Mietfläche sind.

Ein Highlight des Angebotes ist der eigene Garten, welcher aktuell ungenutzt ist. Dieser befindet sich nur eine Minute laufen vom Haus entfernt und ist ca. 70 m² groß. Das eigene Flurstück kann nach belieben als Rückzugsort im Grünen oder als Kleingarten verwendet werden. Sollte der Käufer kein Interesse am Eigennutz haben, ist das Vermieten an die Wohnungsmieter oder andere Parteien im Haus denkbar.

Merkmale

  • Bezug: Kauf
  • vermietet
  • Garten
  • Stellplatz
- langfristig vermietet
- Carport-Stellplatz
- Kellerraum
- Wannenbad
- Tageslichtküche mit Abluft
- Abstellraum
- Balkon

Grundrisse

Grundrisse
1 / 1

Realisiere Dein Projekt

Bausubstanz und Energie

Energieausweis

D
  • Baujahr1996
  • Zustand der ImmobilieMassivhaus, Gepflegt
  • EnergieträgerGas
Immowelt logo

Preisdetails

Kaufpreis
169000 €
2.262,69 €/m²
Provision für Käufer
3,57 % inkl. MwSt.
Weitere Preisinformationen
Soll-Mieteinnahmen pro Jahr: 7.170,24 EUR
Ist-Mieteinnahmen pro Jahr: 7.170,24 EUR
Geschätzte Gesamtkosten
187.708 €1
Kaufpreis
169.000 €
Notarkosten (1,5%)
2.535 €
Grunderwerbsteuer (5,5%)
9.295 €
Provision für Käufer (3,57%)
6.033 €
Grundbucheintrag (0,5%)
845 €
1Der angezeigte Wert ist eine automatisch berechnete Schätzung von immowelt.
2Bei den Angaben handelt es sich um ortsübliche Werte. Individuelle Kosten können abweichen.

Lage

address-icon
GerichshainMachern (04827)
Der Anbieter hat die genaue Adresse nicht freigegeben
Gerichshain gehört zur Gemeinde Machern im Landkreis Leipzig und liegt im östlichen Speckgürtel der Metropolregion Leipzig/Halle - ein Standort, der von der wirtschaftlichen Dynamik der Großstadt profitiert und zugleich deutlich ruhiger und grüner geprägt ist. Die Leipziger Innenstadt ist sowohl für Pendler als auch für Gewerbe- und Dienstleistungsnutzungen gut erreichbar: Über die Bundesstraße in Richtung Leipzig/Wurzen sowie die nahe Autobahn A14 bestehen schnelle Verbindungen in die City, in die Region und zu den überregionalen Verkehrsknoten. Ergänzend sorgt der Bahnanschluss im Ort (Halt auf der Strecke Richtung Leipzig/Dresden) für eine komfortable Alternative zum Auto und unterstützt die nachhaltige Vermiet- und Nutzbarkeit im Alltag.

In der Mikrolage überzeugt Gerichshain mit einem angenehm gewachsenen, dörflich geprägten Umfeld und kurzen Wegen zu den Dingen des täglichen Bedarfs in den umliegenden Zentren: Einkaufsmöglichkeiten, medizinische Versorgung, Kitas und Schulen finden sich in Machern sowie in den nahegelegenen Nachbarorten und sind je nach Ziel schnell mit dem Auto, dem Rad oder per ÖPNV erreichbar. Der Haltepunkt sowie regionale Busverbindungen ermöglichen eine praktische Anbindung in Richtung Leipzig und ins Umland. Für Erholung und Freizeit bietet die Umgebung viel Grün, Feld- und Waldwege sowie attraktive Routen für Spaziergänge und Radtouren; zusätzlich sind die vielfältigen Naherholungsangebote der Leipziger Region in kurzer Fahrzeit erreichbar.

Weitere Informationen

Sonstiges Weitere Angebote finden Sie unter www.schicketanz.de

Anmerkung: Die von uns gemachten Angaben haben wir nach bestem Wissen und Gewissen nach Informationen des Verkäufers und den uns übergebenen Informationen zusammengestellt. Die angegebenen Flächenangaben sind mit grösster Sorgfalt recherchiert, erheben jedoch keinerlei Anspruch auf Alleingültigkeit und werden lediglich unverbindlich zu Informationszwecken zur Verfügung gestellt. Eine Gewähr für diese Angaben können wir nicht übernehmen. Wichtige Zahlen und Informationen sind am Objekt zu überprüfen. Zwischenverkauf bleibt vorbehalten.

Verbraucherinformationen - https://schicketanz.de/datenschutzerklaerung/ Stichworte Carport vorhanden, Anzahl der Badezimmer: 1, Bundesland: Sachsen

Weitere Services

Lust auf eine Besichtigung?
Eine Frage zur Immobilie?
Nachricht hinzufügen
Mit der Nutzung der oben angegebenen Telefonnummer oder durch Klicken auf „Kontaktieren“ akzeptierst Du die Allgemeinen Nutzungsbedingungen, denen Du jederzeit widersprechen kannst. Weitere Informationen zum Datenschutz

Über den Anbieter

Friedrich-Engels-Str. 24 b, 04425 Taucha
partner badge
Partnerschaft
Herr Willi SchicketanzDein Kontakt
Online-ID: 26L17ME2LA1J
Referenznummer: 2026-01439
Schicketanz & Lajosfalvi Immobilien GbR
Schicketanz & Lajosfalvi Immobilien GbR
Nachricht hinzufügen
Mit der Nutzung der oben angegebenen Telefonnummer oder durch Klicken auf „Kontaktieren“ akzeptierst Du die Allgemeinen Nutzungsbedingungen, denen Du jederzeit widersprechen kannst. Weitere Informationen zum Datenschutz
Wie zufrieden bist du mit dieser Seite (nicht mit der Immobilie selbst)?