Version: 8.24.0Navigation überspringen
BIEN ZENKER Darmstadt
528.481 €
5 Zimmer  •  136 m²  •  530 m² Grundstück

Einfamilienhaus zum Kauf • provisionsfrei
528481 €
3.886 €/m²
5 Zimmer  •  136 m²  •  530 m² Grundstück

Rückwärtige, ruhige Lage in Zentrumsnähe.

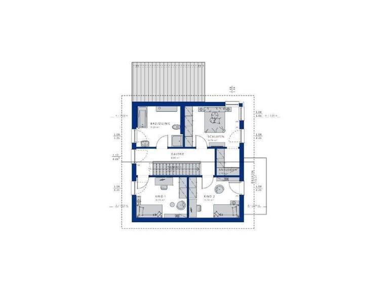
Dass ein Landhaus im Jahr 2024 nicht mit einer Holzverschalung und sehr weiten Dachüberständen versehen werden muss, beweist dieser Entwurf. Das elegante Chalet basiert auf einem schlichten, quadratischen Baukörper, der sich in eine strahlend weiße Putzfassade hüllt. Gartenseitig schließt sich ein Rechteck-Erker mit darüber hinausragendem Balkon an. Mit seinen filigranen Stützen und dem Edelstahlgeländer unterstreicht Letzterer den modernen Charakter des Fertighauses. Großzügige Glaselemente, teilweise übereck ausgeführt, weisen der Sonne den Weg ins Innere und sorgen so für eine positive, lichtdurchflutete Atmosphäre. Landhausfeeling kommt vor allem durch das flach geneigte Dach mit den sichtbaren Pfettenköpfen sowie durch das zusätzliche Schleppdach, unter dem sich der Stellplatz für das Auto befindet, auf. Das Innere des Hauses bietet wie bei allen Bien-Zenker Häusern Wohngenuss pur. Der Grundriss basiert auf der jahrelangen Erfahrung des Hausbauunternehmens. Großzügige Gemeinschaftsbereiche und gemütliche Individualräume werden kombiniert mit cleveren Stauraumlösungen. Das Erdgeschoss wird über eine repräsentative Diele erschlossen. Gleich hinter dem Eingang befindet sich der Technikraum sowie ein flexibel nutzbares Zimmer. Mit einer Größe von knapp 10 m² eignet es sich nicht nur als Homeoffice, sondern auch als zusätzliches Kinderzimmer. Später könnte sich die Hausherrin hier ihr Schlafzimmer einrichten. An ein zweites, ebenerdiges Badezimmer ist auch schon vorsorglich gedacht. Vorbei an der geraden Treppe, unter der genügend Platz für den Bobbycar-Fuhrpark der Kinder ist, geht es in die "gute Stube" - ein luftiges Raumensemble aus den Bereichen Wohnen, Essen und Kochen. Die Gemeinschaftsräume wurden so angelegt, dass ein großer Gestaltungsspielraum entsteht. Der Kochbereich kann beispielsweise mit einer u-förmigen Küche inklusive Tresen ausgestattet werden. Sie punktet einerseits mit viel Stauraum und andererseits mit kurzen Laufwegen. Unter dem Dach liegen die Ruhe- und Privaträume. Zwei gleich große Kinderzimmer, ein Schlafraum mit Ankleide und ein Familienbad mit Wanne und Dusche laden hier zum Träumen ein.

Merkmale

  • 530 m² Grundstück
Effizienzhaus 40 (förderfähig) NH möglich!

Photovoltaik und Batteriespeicher

großer Abstellraum unter der Treppe

Luft-Wasser-WP mit Fußbodenheizung

Be-und Entlüftung zentral mit Rückgewinnung

2 Bäder,

Räume individuell planbar

E-Ladestation vorbereitet

Smarthome Beschattung als Rollläden oder Raffstores

Eingangsüberdachung

Komforthöhe im EG

farbige Fensterrahmen, Rollladenführungen und Fensterbänke

in Q3 gespachtelt mit Malervlies!

Grundrisse

Grundrisse
1 / 2

Realisiere Dein Projekt

Bausubstanz und Energie

Der Anbieter hat keine Informationen zu Energieverbrauch oder Zustand der Immobilie bereit gestellt.
MediumRectangleTop

Preisdetails

Kaufpreis
528481 €
3.885,89 €/m²
Provision für Käufer
provisionsfrei
Geschätzte Gesamtkosten
570.759 €1
Kaufpreis
528.481 €
Notarkosten (1,5%)
7.927 €
Grunderwerbsteuer (6%)
31.709 €
Grundbucheintrag (0,5%)
2.642 €
1Der angezeigte Wert ist eine automatisch berechnete Schätzung von immowelt.
2Bei den Angaben handelt es sich um ortsübliche Werte. Individuelle Kosten können abweichen.

Lage

address-icon
Bad König (64732)
Der Anbieter hat die genaue Adresse nicht freigegeben
Zentrumsnahe Lage mit eigener Zufahrt. Eben und schön ruhig.

Weitere Informationen

Stichworte Nutzfläche: 12,00 m², 2 Etagen, Lage im Wohngebiet

Weitere Services

Lust auf eine Besichtigung?
Eine Frage zur Immobilie?
Nachricht hinzufügen
Mit der Nutzung der oben angegebenen Telefonnummer oder durch Klicken auf „Kontaktieren“ akzeptierst Du die Allgemeinen Nutzungsbedingungen, denen Du jederzeit widersprechen kannst. Weitere Informationen zum Datenschutz

Über den Anbieter

Inselstr. 29, 64287 Darmstadt
partner badge
Partnerschaft
Herr Dieter KochDein Kontakt
Online-ID: 2n42k5m
Referenznummer: 12230-3395
BIEN ZENKER Darmstadt
BIEN ZENKER Darmstadt
Nachricht hinzufügen
Mit der Nutzung der oben angegebenen Telefonnummer oder durch Klicken auf „Kontaktieren“ akzeptierst Du die Allgemeinen Nutzungsbedingungen, denen Du jederzeit widersprechen kannst. Weitere Informationen zum Datenschutz
MediumRectangleTop
MediumRectangleTop
Wie zufrieden bist du mit dieser Seite (nicht mit der Immobilie selbst)?