




1 / 20



1 / 20

Wohnung zur Miete1.125 €3 Zimmer • 68,7 m² • 2. Geschoss • frei ab 01.06.2026
1.125 €
3 Zimmer • 68,7 m² • 2. Geschoss • frei ab 01.06.2026
Helle 3-Zimmer-Wohnung nahe U3 Enkplatz - perfekte Lage in Simmering!
ZENTRAL UND RUHIG WOHNEN - DAS BESTE AUS STADT UND ERHOLUNG!
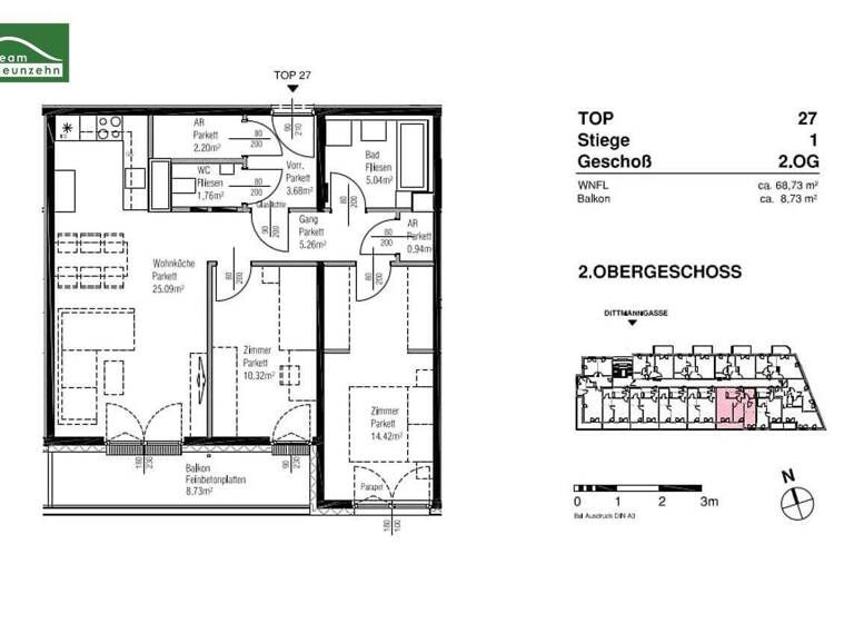
Wohnen im Herzen von Simmering - Dittmanngasse 4, 1110 Wien
Das moderne Neubauprojekt verbindet urbanes Leben mit Ruhe und Lebensqualität. Die familienfreundliche Wohnanlage liegt in einer ruhigen Seitengasse, nur wenige Minuten vom U3-Enkplatz entfernt - mit direkter Verbindung ins Stadtzentrum und hervorragender Nahversorgung.
Besonderes Augenmerk wurde auf funktionale Grundrisse, viel Tageslicht und eine klare, moderne Architektur gelegt. Die Wohnungen überzeugen mit optimal genutztem Raum, großzügigen Freiflächen und heller Atmosphäre. Kinderwagen- und Fahrradabstellräume, ein Müllraum sowie ein eigenes Kellerabteil pro Einheit sorgen für zusätzlichen Stauraum.
Die Lage vereint städtische Infrastruktur mit ruhiger Wohnqualität. Die U3 ist rasch zu Fuß erreichbar, ebenso Bus- und Straßenbahnlinien sowie der Verkehrsknoten Simmering mit Regionalzuganschluss. Trotz der sehr guten Anbindung genießt man hier ein ruhiges Wohnumfeld - mitten in der Stadt.
Nahversorger wie Supermärkte, Drogerien, Apotheken und Cafés befinden sich ebenfalls in unmittelbarer Nähe. Für Erholung und Freizeit laden der Herderpark und der Simmeringer Badeteich zu Spaziergängen, sportlicher Aktivität oder entspannten Stunden im Grünen ein.
Die Wohnungen werden mit einer Befristung auf 5 Jahre vermietet.
Highlights:
* Fahrradraum, Kinderwagenraum und Kellerabteile verfügbar
* Hauseigene Tiefgarage
* Großer Innenhof mit Kinderspielplatz
* U3 Enkplatz in 3 Gehminuten erreichbar
* Hervorragende Infrastruktur in unmittelbarer Umgebung: BILLA PLUS, Apotheke in Gehweite, Restaurants, Kindergärten und Schulen
* Naherholungsgebiete Herderpark und Braunhuberpark in Gehweite
Ausstattungsstandard:
* Fußbodenheizung
* Alle Einheiten verfügen über hochwertige Tischlerküchen inklusive Markengeräten von Zanussi
* Edler Eichenparkettboden in sämtlichen Wohn- und Schlafräumen
* Internet- und Glasfaseranschluss (Magenta & A1 verfügbar)
* 3-fach verglaste Kunststofffenster
* Video-Gegensprechanlage
* Eigene Kellerabteile für zusätzlichen Stauraum
* Barrierefreier Zugang dank behindertengerechtem Aufzug
* Sonnenschutz in Form außenliegender Rollläden
Wohnung Stiege 1 Top 27:
Die gut geschnittene 3-Zimmer-Wohnung bietet eine durchdachte Raumaufteilung und eignet sich ideal für Paare, kleine Familien oder Wohngemeinschaften. Das Herzstück der Wohnung ist die großzügige Wohnküche, die viel Platz zum Kochen, Essen und Entspannen bietet und direkten Zugang zum Balkon ermöglicht - perfekt, um sonnige Nachmittage und Abende im Freien zu genießen.
Vom Vorraum aus gelangt man zentral in die verschiedenen Bereiche der Wohnung. Neben der Wohnküche stehen zwei separate Schlafzimmer zur Verfügung, die flexibel als Schlafzimmer, Kinderzimmer oder Homeoffice genutzt werden können. Das Badezimmer ist funktional gestaltet, zusätzlich gibt es ein separates WC.
Praktischen Stauraum bieten gleich zwei Abstellräume sowie ein zusätzlicher Gangbereich, der die Räume optimal miteinander verbindet. Dadurch entsteht ein komfortables und gut strukturiertes Wohngefühl mit ausreichend Platz für Alltag und Organisation.
Insgesamt überzeugt diese Wohnung durch ihre helle Südwestlage, die attraktive Raumaufteilung, den Balkon sowie den komfortablen Zugang per Lift - eine ideale Kombination für angenehmes Wohnen in Wien.
!!! Bitte beachten Sie, dass die Wohnung aktuell noch bewohnt wird und es somit zu Wartezeiten für Besichtigungen kommt. Auf Ihre Anfrage hin merken wir Sie vor und informieren gerne, so bald eine Besichtigung möglich ist. !!!
Einige Bilder des Inserats wurden zum Zweck der besseren Visualisierung digital mit KI möbliert. Die Wohnung wird unmöbliert übergeben.
Kostenübersicht:
Der monatliche Mietpreis inklusive Betriebskosten und USt. beläuft sich auf € 1.399,00.
Kaution: 3 Bruttomonatsmieten
Bei dem angeführten Mietpreis handelt es sich um eine Kaltmiete, somit sind sämtliche Energiekosten wie Warmwasser-, Heiz- und Stromkosten nicht inkludiert.
Bei Bedarf besteht auch die Möglichkeit einen Stellplatz in der hauseigenen Tiefgarage anzumieten.
Der Mietpreis für den PKW-Stellplatz beläuft sich auf 130,00 Euro inkl. 20% USt..
Infrastruktur:
In nur wenigen Gehminuten erreichen Sie die U-Bahnlinie U3 am Enkplatz, von wo aus Sie in rund 12 Minuten die Wiener Innenstadt erreichen. Darüber hinaus befinden sich in der näheren Umgebung mehrere Straßenbahnlinien (z.?B. Linie 71 Richtung Zentrum), Busverbindungen sowie der Bahnhof Simmering, der Ihnen schnellen Zugang zu Regionalzügen und dem S-Bahn-Netz ermöglicht.
Die hervorragende Anbindung wird durch die verkehrsgünstige Lage zusätzlich unterstrichen - egal ob öffentlich oder mit dem Auto unterwegs, Sie sind in alle Richtungen optimal verbunden.
Auch in puncto Nahversorgung lässt die Umgebung keine Wünsche offen: Ein BILLA PLUS sowie weitere Supermärkte, Apotheken, Drogeriemärkte, Bäckereien, Cafés und zahlreiche Restaurants sind bequem fußläufig erreichbar. Für größere Einkäufe oder Shoppingtouren stehen zudem das Simmeringer Einkaufszentrum (SES) sowie der EKZ-Zentrum Simmering nur wenige Minuten entfernt zur Verfügung.
Für Familien besonders attraktiv: In direkter Umgebung befinden sich mehrere Kindergärten, Volksschulen sowie weiterführende Bildungseinrichtungen - alles bequem erreichbar und ideal für den Alltag mit Kindern.
Auch das Freizeitangebot kommt nicht zu kurz: Der nahegelegene Herderpark, der Braunhuberpark sowie das Simmeringer Bad bieten vielfältige Möglichkeiten zur Erholung, Bewegung und für Spiel & Spaß im Grünen. Sportplätze, Radwege und Grünflächen machen das Wohnumfeld zusätzlich lebens- und liebenswert.
Energieausweis:
Der Referenz-Heizwärmebedarf beträgt 20,81 kWh/m²a und entspricht somit der Klasse A.
Der fGEE beträgt 0,73 und entspricht somit sogar der Klasse A.
Für Fragen bzw. Besichtigungen steht Ihnen Herr Stefan Djukic sehr gerne unter 0664 536 84 47 oder via E-Mail unter Djukic@teamneunzehn.at zur Verfügung.
Wir weisen darauf hin, dass zwischen dem Vermittler und dem zu vermittelnden Dritten ein familiäres oder wirtschaftliches Naheverhältnis besteht.
Der Immobilienmakler erklärt, dass er - entgegen dem in der Immobilienwirtschaft üblichen Geschäftsgebrauch des Doppelmaklers - einseitig nur für den Vermieter tätig ist.
"Leben braucht Raum" * T19-RE Real Estate GmbH & Co KG * www.teamneunzehn.at [https://www.teamneunzehn.at]
Doppelmakler
Wir werden als Immobilienmakler kraft bestehenden Geschäftsgebrauchs als Doppelmakler tätig und haben sohin beide Seiten des Vertrages (Verkäufer-Käufer, Vermieter-Mieter) zu unterstützen.
Wirtschaftliches Naheverhältnis
Es wird bekannt gegeben, dass folgendes wirtschaftliches Naheverhältnis zwischen der teamneunzehn-Gruppe und dem Verkäufer/der vermietenden Partei besteht: ständige und dauerhafte Beauftragung mit der Vermittlung des bestehenden Immobilienportfolios
Haftungserklärung zum Inserat
Irrtum und Änderungen vorbehalten! Sofern es sich bei Bildern um Visualisierungen handelt, können Abänderungen zur tatsächlichen Ausführung resultieren. Wir weisen ausdrücklich darauf hin, dass das auf Fotos oder Visualisierungen ersichtliche Mobiliar bzw. Inventar nicht Bestandteil des inserierten Preises ist.
Infrastruktur / Entfernungen
Gesundheit
Arzt <125m
Apotheke <125m
Klinik <1.050m
Krankenhaus <2.525m
Kinder & Schulen
Schule <300m
Kindergarten <200m
Universität <1.475m
Höhere Schule <1.675m
Nahversorgung
Supermarkt <100m
Bäckerei <175m
Einkaufszentrum <350m
Sonstige
Geldautomat <125m
Bank <125m
Post <125m
Polizei <225m
Verkehr
Bus <100m
U-Bahn <125m
Straßenbahn <200m
Bahnhof <125m
Autobahnanschluss <1.125m
Angaben Entfernung Luftlinie / Quelle: OpenStreetMap
Wohnen im Herzen von Simmering - Dittmanngasse 4, 1110 Wien
Das moderne Neubauprojekt verbindet urbanes Leben mit Ruhe und Lebensqualität. Die familienfreundliche Wohnanlage liegt in einer ruhigen Seitengasse, nur wenige Minuten vom U3-Enkplatz entfernt - mit direkter Verbindung ins Stadtzentrum und hervorragender Nahversorgung.
Besonderes Augenmerk wurde auf funktionale Grundrisse, viel Tageslicht und eine klare, moderne Architektur gelegt. Die Wohnungen überzeugen mit optimal genutztem Raum, großzügigen Freiflächen und heller Atmosphäre. Kinderwagen- und Fahrradabstellräume, ein Müllraum sowie ein eigenes Kellerabteil pro Einheit sorgen für zusätzlichen Stauraum.
Die Lage vereint städtische Infrastruktur mit ruhiger Wohnqualität. Die U3 ist rasch zu Fuß erreichbar, ebenso Bus- und Straßenbahnlinien sowie der Verkehrsknoten Simmering mit Regionalzuganschluss. Trotz der sehr guten Anbindung genießt man hier ein ruhiges Wohnumfeld - mitten in der Stadt.
Nahversorger wie Supermärkte, Drogerien, Apotheken und Cafés befinden sich ebenfalls in unmittelbarer Nähe. Für Erholung und Freizeit laden der Herderpark und der Simmeringer Badeteich zu Spaziergängen, sportlicher Aktivität oder entspannten Stunden im Grünen ein.
Die Wohnungen werden mit einer Befristung auf 5 Jahre vermietet.
Highlights:
* Fahrradraum, Kinderwagenraum und Kellerabteile verfügbar
* Hauseigene Tiefgarage
* Großer Innenhof mit Kinderspielplatz
* U3 Enkplatz in 3 Gehminuten erreichbar
* Hervorragende Infrastruktur in unmittelbarer Umgebung: BILLA PLUS, Apotheke in Gehweite, Restaurants, Kindergärten und Schulen
* Naherholungsgebiete Herderpark und Braunhuberpark in Gehweite
Ausstattungsstandard:
* Fußbodenheizung
* Alle Einheiten verfügen über hochwertige Tischlerküchen inklusive Markengeräten von Zanussi
* Edler Eichenparkettboden in sämtlichen Wohn- und Schlafräumen
* Internet- und Glasfaseranschluss (Magenta & A1 verfügbar)
* 3-fach verglaste Kunststofffenster
* Video-Gegensprechanlage
* Eigene Kellerabteile für zusätzlichen Stauraum
* Barrierefreier Zugang dank behindertengerechtem Aufzug
* Sonnenschutz in Form außenliegender Rollläden
Wohnung Stiege 1 Top 27:
Die gut geschnittene 3-Zimmer-Wohnung bietet eine durchdachte Raumaufteilung und eignet sich ideal für Paare, kleine Familien oder Wohngemeinschaften. Das Herzstück der Wohnung ist die großzügige Wohnküche, die viel Platz zum Kochen, Essen und Entspannen bietet und direkten Zugang zum Balkon ermöglicht - perfekt, um sonnige Nachmittage und Abende im Freien zu genießen.
Vom Vorraum aus gelangt man zentral in die verschiedenen Bereiche der Wohnung. Neben der Wohnküche stehen zwei separate Schlafzimmer zur Verfügung, die flexibel als Schlafzimmer, Kinderzimmer oder Homeoffice genutzt werden können. Das Badezimmer ist funktional gestaltet, zusätzlich gibt es ein separates WC.
Praktischen Stauraum bieten gleich zwei Abstellräume sowie ein zusätzlicher Gangbereich, der die Räume optimal miteinander verbindet. Dadurch entsteht ein komfortables und gut strukturiertes Wohngefühl mit ausreichend Platz für Alltag und Organisation.
Insgesamt überzeugt diese Wohnung durch ihre helle Südwestlage, die attraktive Raumaufteilung, den Balkon sowie den komfortablen Zugang per Lift - eine ideale Kombination für angenehmes Wohnen in Wien.
!!! Bitte beachten Sie, dass die Wohnung aktuell noch bewohnt wird und es somit zu Wartezeiten für Besichtigungen kommt. Auf Ihre Anfrage hin merken wir Sie vor und informieren gerne, so bald eine Besichtigung möglich ist. !!!
Einige Bilder des Inserats wurden zum Zweck der besseren Visualisierung digital mit KI möbliert. Die Wohnung wird unmöbliert übergeben.
Kostenübersicht:
Der monatliche Mietpreis inklusive Betriebskosten und USt. beläuft sich auf € 1.399,00.
Kaution: 3 Bruttomonatsmieten
Bei dem angeführten Mietpreis handelt es sich um eine Kaltmiete, somit sind sämtliche Energiekosten wie Warmwasser-, Heiz- und Stromkosten nicht inkludiert.
Bei Bedarf besteht auch die Möglichkeit einen Stellplatz in der hauseigenen Tiefgarage anzumieten.
Der Mietpreis für den PKW-Stellplatz beläuft sich auf 130,00 Euro inkl. 20% USt..
Infrastruktur:
In nur wenigen Gehminuten erreichen Sie die U-Bahnlinie U3 am Enkplatz, von wo aus Sie in rund 12 Minuten die Wiener Innenstadt erreichen. Darüber hinaus befinden sich in der näheren Umgebung mehrere Straßenbahnlinien (z.?B. Linie 71 Richtung Zentrum), Busverbindungen sowie der Bahnhof Simmering, der Ihnen schnellen Zugang zu Regionalzügen und dem S-Bahn-Netz ermöglicht.
Die hervorragende Anbindung wird durch die verkehrsgünstige Lage zusätzlich unterstrichen - egal ob öffentlich oder mit dem Auto unterwegs, Sie sind in alle Richtungen optimal verbunden.
Auch in puncto Nahversorgung lässt die Umgebung keine Wünsche offen: Ein BILLA PLUS sowie weitere Supermärkte, Apotheken, Drogeriemärkte, Bäckereien, Cafés und zahlreiche Restaurants sind bequem fußläufig erreichbar. Für größere Einkäufe oder Shoppingtouren stehen zudem das Simmeringer Einkaufszentrum (SES) sowie der EKZ-Zentrum Simmering nur wenige Minuten entfernt zur Verfügung.
Für Familien besonders attraktiv: In direkter Umgebung befinden sich mehrere Kindergärten, Volksschulen sowie weiterführende Bildungseinrichtungen - alles bequem erreichbar und ideal für den Alltag mit Kindern.
Auch das Freizeitangebot kommt nicht zu kurz: Der nahegelegene Herderpark, der Braunhuberpark sowie das Simmeringer Bad bieten vielfältige Möglichkeiten zur Erholung, Bewegung und für Spiel & Spaß im Grünen. Sportplätze, Radwege und Grünflächen machen das Wohnumfeld zusätzlich lebens- und liebenswert.
Energieausweis:
Der Referenz-Heizwärmebedarf beträgt 20,81 kWh/m²a und entspricht somit der Klasse A.
Der fGEE beträgt 0,73 und entspricht somit sogar der Klasse A.
Für Fragen bzw. Besichtigungen steht Ihnen Herr Stefan Djukic sehr gerne unter 0664 536 84 47 oder via E-Mail unter Djukic@teamneunzehn.at zur Verfügung.
Wir weisen darauf hin, dass zwischen dem Vermittler und dem zu vermittelnden Dritten ein familiäres oder wirtschaftliches Naheverhältnis besteht.
Der Immobilienmakler erklärt, dass er - entgegen dem in der Immobilienwirtschaft üblichen Geschäftsgebrauch des Doppelmaklers - einseitig nur für den Vermieter tätig ist.
"Leben braucht Raum" * T19-RE Real Estate GmbH & Co KG * www.teamneunzehn.at [https://www.teamneunzehn.at]
Doppelmakler
Wir werden als Immobilienmakler kraft bestehenden Geschäftsgebrauchs als Doppelmakler tätig und haben sohin beide Seiten des Vertrages (Verkäufer-Käufer, Vermieter-Mieter) zu unterstützen.
Wirtschaftliches Naheverhältnis
Es wird bekannt gegeben, dass folgendes wirtschaftliches Naheverhältnis zwischen der teamneunzehn-Gruppe und dem Verkäufer/der vermietenden Partei besteht: ständige und dauerhafte Beauftragung mit der Vermittlung des bestehenden Immobilienportfolios
Haftungserklärung zum Inserat
Irrtum und Änderungen vorbehalten! Sofern es sich bei Bildern um Visualisierungen handelt, können Abänderungen zur tatsächlichen Ausführung resultieren. Wir weisen ausdrücklich darauf hin, dass das auf Fotos oder Visualisierungen ersichtliche Mobiliar bzw. Inventar nicht Bestandteil des inserierten Preises ist.
Infrastruktur / Entfernungen
Gesundheit
Arzt <125m
Apotheke <125m
Klinik <1.050m
Krankenhaus <2.525m
Kinder & Schulen
Schule <300m
Kindergarten <200m
Universität <1.475m
Höhere Schule <1.675m
Nahversorgung
Supermarkt <100m
Bäckerei <175m
Einkaufszentrum <350m
Sonstige
Geldautomat <125m
Bank <125m
Post <125m
Polizei <225m
Verkehr
Bus <100m
U-Bahn <125m
Straßenbahn <200m
Bahnhof <125m
Autobahnanschluss <1.125m
Angaben Entfernung Luftlinie / Quelle: OpenStreetMap
Merkmale
- frei ab 01.06.2026
- 2. Geschoss
- Personenaufzug
- Einbauküche, offene Küche
- Badewanne
- Bodenbelag: Parkett
- Balkon
Grundrisse
Grundrisse
1 / 1
Realisiere Dein Projekt
Bausubstanz und Energie
Heizwärmebedarf (HWB)
A
Gesamtenergieeffizienz (fGEE)
A
- Baujahr2020
- Zustand der ImmobilieNeubau, neuwertig
- HeizungsartFußbodenheizung
- EnergieträgerFernwärme
Mietkosten
Gesamtmiete
1.399 €
Nettokaltmiete
18,50 €/m²
1.124,74 €
Betriebskosten
147,08 €
Kaution
3 Bruttomonatsmieten
Weitere Preisinformationen
Nettokaltmiete: 1.124,74 EUR
Lage

Dittmanngasse 4, Wien (1110)
Enkplatz, Simmeringer Hauptstraße, Mautner Markhof Gasse
Weitere Informationen
Stichworte
Süd-West-Balkon/Terrasse, Fahrradraum, Rolladen, Nutzfläche: 77,46 m², Gesamtfläche: 77,46 m², Freifläche: 8,73 m², Anzahl der Badezimmer: 1, Anzahl der separaten WCs: 1, Anzahl Balkone: 1, Balkon-Terrassen-Fläche: 8,73 m², Bundesland: Wien, 8 Etagen, Wohnungsnr.: 27
Weitere Services
Lust auf eine Besichtigung?
Eine Frage zur Immobilie?
Über den Anbieter
team19 Immobilien GmbHMaklerbüro
Handelskai 94-96/21. Stock, 1200 BRIGITTENAU
Partnerschaft
Herr Stefan DjukicDein Kontakt
Online-ID: 26P4CV3JXPJA
Referenznummer: OBGC202603171508073393ecb24b96c
Wie zufrieden bist du mit dieser Seite (nicht mit der Immobilie selbst)?


