Predstavljamo Vam moderan apartman u sklopu novog projekta sa 6 stambenih jedinica, smjestenog u mirnom i autenticnom dalmatinskom mjestu Vinjerac, na odlicnoj lokaciji svega 100 metara od mora i 450 metara od plaze.Stan C5 - 2. KAT - 88,71 m2Ukupna povrsina apartmana iznosi 88,71 m2, od cega je stambena povrsina 78,04 m2, dok natkrivena loggia iznosi 30,76 m2.Sastoji se od:otvorenog prostora dnevnog boravka, blagovaonice i kuhinjedvije spavace sobemoderne kupaoniceprostrane natkrivene loggie okrenute prema zapaduPlanirani zavrsetak gradnje je sijecanj 2027. godine.Od opreme i tehnickih karakteristika izdvajamo:3 unutarnje jedinice za klimatizaciju -2 kW klima jedinice u spavacim sobama i 4 kW klima jedinica u dnevnom boravkugrijanje i hladenje putem dizalice toplineelektricno podno grijanje u kupaoniciProtuprovalna i protupozarna ulazna vrataVinjerac je jedno od najsarmantnijih mjesta zadarskog priobalja, poznat pokristalno cistom moru i prekrasnim pogledima na Velebit. U blizini se nalaze Nacionalni park Paklenica, a Zadar je udaljen 20ak km.Za vise informacija i dogovor oko razgledavanja, slobodno nam se obratite.... Vise na eurovilla.hr, ID: 805479
Merkmale
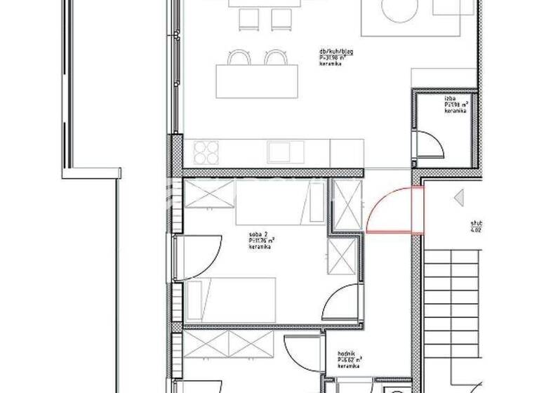
2. Geschoss
Grundrisse
Grundrisse
1 / 1
Realisiere Dein Projekt
Bausubstanz und Energie
Möchtest du Details zum Energieverbrauch?
Preisdetails
Kaufpreis
354800 €354.800 €
4.031,82 €/m²
Provision für Käufer
Bitte beachte, das Angebot kann bei Vertragsabschluss die Zahlung einer Provision beinhalten. Weitere Informationen erhältst Du vom Anbieter.