

Studio zum Kauf193000 €6.433 €/m²1 Zimmer • 30 m²
193000 €
6.433 €/m²
1 Zimmer • 30 m²
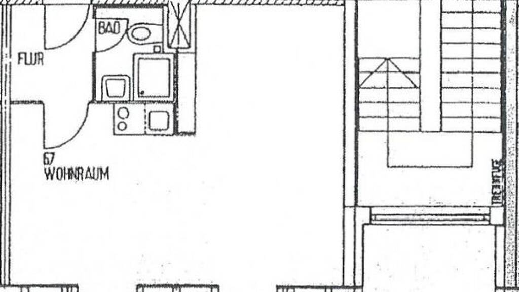
Gemütliches Apartment - zentral, bahnhofsnah, ruhig - perfekte Lage
Merkmale
- vermietet
- Dachgeschoss
- Einbauküche
- 1 WC
- Kabel
- teilweise möbliert
Realisiere Dein Projekt
Bausubstanz und Energie
Energieausweis
C
- Baujahr1989
- Letzte Modernisierung2020
- Zustand der ImmobilieModernisiert
- HeizungsartZentralheizung
- EnergieträgerGas
Preisdetails
Kaufpreis
193000 €
6.433 €/m²
Hausgeld
176 €
Provision für Käufer
Die Höhe der Courtage beträgt für beide Parteien (Eigentümer und Käufer) 3 % zuzüglich Umsatzsteuer, derzeit insgesamt 3,57 % des Kaufpreises einschließlich Umsatzsteuer. Bei notariellem Vertragsabschluss verdient und fällig.
Geschätzte Gesamtkosten
209.405 €1
Kaufpreis
193.000 €
Kaufnebenkosten
16.405 €
2Notarkosten (1,5%)
2.895 €
Grunderwerbsteuer (3,5%)
6.755 €
Provision für Käufer (3%)
5.790 €
Grundbucheintrag (0,5%)
965 €
1Der angezeigte Wert ist eine automatisch berechnete Schätzung von immowelt.
2Bei den Angaben handelt es sich um ortsübliche Werte. Individuelle Kosten können abweichen.
Lage

Freising (85354)
Der Anbieter hat die genaue Adresse nicht freigegeben
Weitere Informationen
Weitere Services
Lust auf eine Besichtigung?
Eine Frage zur Immobilie?
Über den Anbieter
Weitere Unterlagen
Online-ID: 2t5ha4e
Referenznummer: 680

Cabaco Immobilien
Wie zufrieden bist du mit dieser Seite (nicht mit der Immobilie selbst)?

