
VON POLL IMMOBILIEN Wilhelmshaven - Mehrtens Immobilien GmbH
Herr Christian Ernst
004 ···
Nr. anzeigenPreise & Kosten
Provision für Käufer
Käuferprovision beträgt 3,57 % (inkl. MwSt.) des beurkundeten Kaufpreises
Lage
Die Immobilie befindet sich in einer gefragten und ruhigen Wohnlage im Stadtteil Heppens an der Grenze zu Neuengroden, einem der einwohnerstärksten und zugleich familienfreundlichsten Viertel von Wilhelmshaven.
Der Bereich zeichnet sich durch ihre ansprechende und grüne Umgebung aus, die eine hohe Wohnqualität...
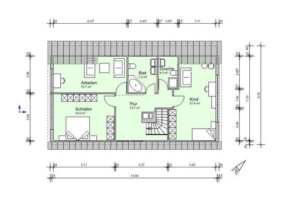
Das Haus
Kategorie
Einfamilienhaus
Baujahr
1977
Energie & Heizung
Warum sehe ich diese Anzeige? – Du siehst diese Anzeige basierend auf Ihrer Navigation auf unserer Website und den Suchkriterien, die du verwendet hast.
Energieausweistyp
Verbrauchsausweis
Gebäudetyp
Wohngebäude
Baujahr laut Energieausweis
2008
Wesentliche Energieträger
ERDGAS_LEICHT
Gültigkeit
bis 17.02.2026
Effizienzklasse
D
Endenergieverbrauch
117,90 kWh/(m²·a)
Weitere Energiedaten
Haustyp
Massivhaus
Energieträger
Gas, Solar
Heizungsart
Fußbodenheizung, offener Kamin, Zentralheizung
Details
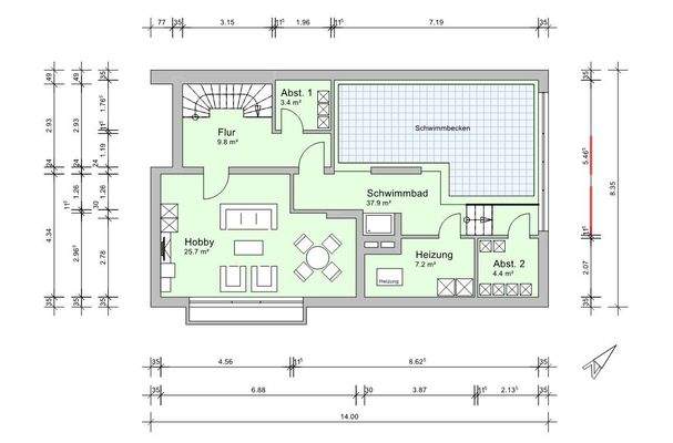
Objektbeschreibung
Ein Rohdiamant mit Charakter
Dieses freistehende und außergewöhnliche Architektenhaus in beliebter und ruhiger Lage wartet darauf, von Ihnen aus seinem Dornröschenschlaf geweckt zu werden. Erbaut im Jahr 1977, zuletzt modernisiert in 2008, ist das Haus aus einer Ära, die Wert auf Individualität und durchdachte...
Ausstattung
Extravagantes Architektenhaus
+ individuelle Architektur
+ Fußbodenheizung im gesamten Haus
+ Neue Junkers Gas-Brennwerttherme aus 2008 mit Solar-Unterstützung für Warmwasser
+ große Fensterflächen mit Rolläden
+ Innenkamin, der evtl. die Abgasnorm nicht mehr erfüllt und erneuert werden muss
+...
Preisinformation
2 Garagenstellplätze
Weitere Informationen
Sonstiges
Es liegt ein Energieverbrauchsausweis vor.
Dieser ist gültig bis 17.2.2026.
Endenergieverbrauch beträgt 117.90 kwh/(m²*a).
Wesentlicher Energieträger der Heizung ist Erdgas leicht.
Das Baujahr des Objekts lt. Energieausweis ist 2008.
Die Energieeffizienzklasse ist D.
GELDWÄSCHE: Als...
Online-ID: 2md5x5l
Referenznummer: 25 203 045
Finde Angebote wie dieses
Hier geht es zu unserem Impressum, den Allgemeinen Geschäftsbedingungen, den Hinweisen zum Datenschutz und nutzungsbasierter Online-Werbung.