Version: 8.24.0Navigation ĂĽberspringen
Treuenburg GmbH
6 €
630 m² Lagerfläche

Lagerhalle zur Miete
6 €
/m²
630 m² Lagerfläche

GroĂźzĂĽgige Gewerbe-/Lagerhalle mit Rampe in 99099 Erfurt, Stieler Str. 1

Diese Halle bietet eine großzügige Nutzfläche von 630 m² und befindet sich in einem Gebäudekomplex in der Stieler Str. 1 in 99099 Erfurt. Die Einheit ist ebenerdig und besticht durch eine funktionale Raumaufteilung, die sich ideal für Lager- oder Produktionszwecke eignet. Das Objekt wurde bisher von DHL als Postverteilzentrum genutzt.

Merkmale

  • frei ab 01.11.2026
  • 5 Stellplätze: 5 AuĂźen-Stellplätze
  • Laderampe
  • LKW-Zufahrt
  • Bodenbelag: Stein
Zur Ausstattung gehört eine praktische Rampe, die den Warentransport erleichtert und den Arbeitsablauf optimiert. Beheizt wird die Halle mittels Fernheizung, was für eine effiziente und kostensparende Wärmeversorgung sorgt. Der Gebäudekomplex ist von gepflegtem Grün umgeben, was eine angenehme Arbeitsatmosphäre schafft. WC-Anlagen sind vorhanden.

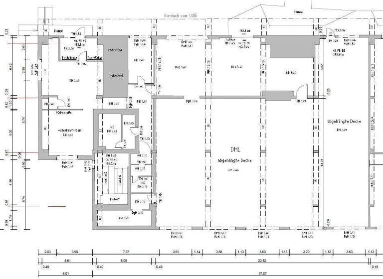
Grundrisse

Grundrisse
1 / 1

Realisiere Dein Projekt

Bausubstanz und Energie

Energieausweis

Ein Energieausweis ist für diesen Gebäudetyp nicht notwendig.
MediumRectangleTop

Mietkosten

Monatliche Miete
6 €/m²
Nebenkosten
2,80 €
Zusätzliche Kosten
Miete pro Stellplatz
25 €
Provision fĂĽr Mieter
Bitte beachte, das Angebot kann bei Vertragsabschluss die Zahlung einer Provision beinhalten. Weitere Informationen erhältst Du vom Anbieter.
Kaution
keine Angabe
Weitere Preisinformationen
5 Stellplätze, Miete je: 25,00 EUR

Lage

address-icon
Stieler Str. 1, Herrenberg, Erfurt (99099)
Die Lage in Erfurt zeichnet sich durch eine gute Anbindung an den öffentlichen Nahverkehr aus. In der Umgebung finden sich vielfältige Einkaufsmöglichkeiten, darunter ein Einkaufszentrum mit Apotheken und weiteren Geschäften, die fußläufig erreichbar sind. Zudem ermöglichen gut ausgebaute Straßenverbindungen eine schnelle Erreichbarkeit des Stadtzentrums sowie angrenzender Städte.

Weitere Informationen

Sonstiges Die monatliche Kaltmiete beträgt 6 EUR pro m², hinzu kommen Nebenkosten in Höhe von 2,8 EUR pro m², sodass sich eine Gesamtmiete von 8,8 EUR zzgl. gestzl. USt. pro m² ergibt. Die Halle ist ab dem 1. November 2026 verfügbar. Auf dem asphaltierten Parkplatz vor dem Lagerhaus stehen ausreichend Stellplätze zur Verfügung, was den täglichen Arbeitsbetrieb erleichtert. Stichworte Wohnfläche: 630,00 m², Lagerfläche: 630,00 m², Gesamtfläche: 630,00 m², Zustand nach Vereinbarung

Weitere Services

Lust auf eine Besichtigung?
Eine Frage zur Immobilie?
Nachricht hinzufĂĽgen
Mit der Nutzung der oben angegebenen Telefonnummer oder durch Klicken auf „Kontaktieren“ akzeptierst Du die Allgemeinen Nutzungsbedingungen, denen Du jederzeit widersprechen kannst. Weitere Informationen zum Datenschutz

Ăśber den Anbieter

Treuenburg GmbH
Treuenburg GmbHMaklerbĂĽro
Benaryplatz 2, 99084 Erfurt
partner badge
6 Jahre Partnerschaft
Oliver GötteDein Kontakt
Online-ID: 2nszy5m
Referenznummer: 180986
Treuenburg GmbH
Treuenburg GmbH
Bewertung: 3,8 von 5 Sternen
Nachricht hinzufĂĽgen
Mit der Nutzung der oben angegebenen Telefonnummer oder durch Klicken auf „Kontaktieren“ akzeptierst Du die Allgemeinen Nutzungsbedingungen, denen Du jederzeit widersprechen kannst. Weitere Informationen zum Datenschutz
MediumRectangleTop
MediumRectangleBottom
MediumRectangleTop
Wie zufrieden bist du mit dieser Seite (nicht mit der Immobilie selbst)?