Individuell, flexibel & kosteneffizient: Ihr Ausbauhaus von Kern-Haus!
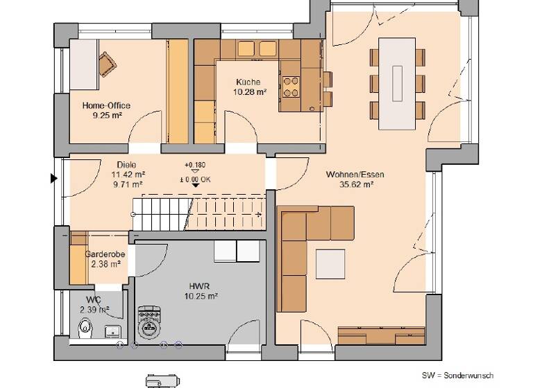
Wenn Sie die Diele des Architektenhauses Allea betreten, haben Sie Blick in den großen Wohn- und Essbereich. Durch bodentiefe Schiebeelemente ist dieser Bereich lichtdurchflutet und Sie können sowohl vom Sofa als auch vom Esstisch in den Garten schauen. Architektonisches Highlight des Familienhauses ist der Erker mit drei Fensterelementen, in dem das Esszimmer untergebracht ist. Die offene Küche grenzt direkt an das Esszimmer, ist aber auch von der Diele aus betretbar. Insgesamt umfassen Küche und Wohn-Essbereich mehr als 46 Quadratmeter. Im Erdgeschoss befinden sich zudem ein Home-Office, eine Garderobe sowie ein WC.
Über eine geradläufige Treppe erreichen Sie das Dachgeschoss. Gemütlich ist die Leseecke, in der Sie mit einem schönen Buch sitzen und durch das bodentiefe Glaselement nach draußen in den Garten schauen können. Der Flur wird durch zwei bodentiefe Fensterelemente auf beiden Seiten des Hauses lichtdurchflutet. Vom Flur aus haben Sie Zugang in die Zimmer des Dachgeschosses. Die beiden Kinderzimmer sind mit rund 14 Quadratmetern gleich groß. Das Elternschlafzimmer verfügt über eine eigene Ankleide. Das Familienbadezimmer besitzt neben einer Dusche auch eine Badewanne und ist rund zehn Quadratmeter groß. Hingucker auf der Eingangsseite ist das große Fensterelement über der Tür, das den Flur im Dachgeschoss lichtdurchflutet.
Dieses Haus wird nach Ihren individuellen Wünschen geplant und ausgestattet!
+ Massivhaus als Ausbauhaus im Sinne der Bau- und Ausstattungsbeschreibung "Paulo" + Gebäudehülle ist für Effizienzhaus 40 optimiert + Inklusive Bodenplatte + Architekten- und Ingenieurleistungen (u. a. Bauantrag, Werkplanung, Statik und Wärmeschutzberechnung) + Zimmermannsmäßiger Dachstuhl aus Konstruktionsvollholz + Dacheindeckung mit Betondachsteinen von Braas mit Star-Oberfläche + Hochwertiger Kunstharz-Außenputz für eine langlebige Fassade + Haustür mit 5-fach-Sicherheitsverriegelung + Fenster mit 3-Scheiben-Wärmeschutzverglasung und Rollläden + Dachflächenfenster von Velux oder Roto + Granitaustrittsschwellen an bodengleichen Terrassentüren
Grundrisse
Grundrisse
1 / 2
Realisiere Dein Projekt
Bausubstanz und Energie
Energieausweis
Der Anbieter hat keine Daten zum Energieausweis hinterlegt.
Baujahr2025
Zustand der ImmobilieNeubau, Projektiert
HeizungsartZentralheizung
Preisdetails
Kaufpreis
509900 €509.900 €
3.311,04 €/m²
Provision für Käufer
provisionsfrei
Geschätzte Gesamtkosten
545.594 €1
Kaufpreis
509.900 €
Kaufnebenkosten
35.694 €
2
Notarkosten (1,5%)
7.649 €
Grunderwerbsteuer (5%)
25.495 €
Grundbucheintrag (0,5%)
2.550 €
1Der angezeigte Wert ist eine automatisch berechnete Schätzung von immowelt.
2Bei den Angaben handelt es sich um ortsübliche Werte. Individuelle Kosten können abweichen.
Lage
Hermsdorf (07629)
Der Anbieter hat die genaue Adresse nicht freigegeben
Hermsdorf liegt in der Mitte (je ca. 20-25 km entfernt) zwischen den beiden ostthüringischen Großstädten Jena und Gera sowie etwa 55 km südwestlich von Leipzig. Ideal für Pendler in dieser Region. Die kleine Stadt Hermsdorf im Holzland ist vor allem bekannt durch das unmittelbar an der Stadt gelegene Hermsdorfer Autobahnkreuz. Tatsächlich trug diese gute Verkehrsanbindung entscheidend zur Entwicklung der Stadt bei. Doch Hermsdorf liegt auch zwischen den ausgedehnten Wäldern des Thüringer Holzlands mit seinen traditionellen Holzhandwerkberufen, wie dem Leitermacher. Für ein vielseitiges Freizeitangebot stehen neben einer Großsporthalle (auch für kulturelle Großveranstaltungen nutzbar), zwei Sportplätze, eine neue Leichtathletikanlage, eine moderne 5-Bahnen-Kegelanlage, ein Freibad, ein Vereinshaus, der Rathaus- und Stadthaussaal und eine neue Bibliothek zur Verfügung.
Weitere Informationen
Sonstiges
Kern-Haus
Kern-Haus baut individuelle und massive Architektenhäuser zu einem attraktiven Preis-Leistungs-Verhältnis - und das bereits mit einer Erfahrung seit 1980.
Maximale Sicherheit bei Kern-Haus: + 10 Jahre Gewährleistung auf die wesentlichen Bauleistungen + Bis zu 18 Monate Festpreisbindung + 50 Jahre Gewährleistung auf das DuoTherm-Mauerwerk + Verbindliche Bauzeit + Zahlung nach Baufortschritt
Preise und Auszeichnungen von Kern-Haus: - German Brand Award in den Jahren 2018 und 2021 - Hausbau Design Award: Sieger in den Jahren 2017, 2018, 2019, 2020, 2021, 2022 und 2023 - Deutscher Traumhauspreis: Sieger in den Jahren 2014, 2015, 2016 und 2018 und Silber 2017, 2020 und 2021 - Mittelstandspreis "Top 100" in den Jahren 2014, 2016, 2018, 2020 und 2022 - German Design Award im Jahr 2018
Weitere Informationen
Der gezeigte Preis versteht sich inklusive Grundstück und exklusive der Baunebenkosten.
Ihre Ansprechpartnerin Katrin Klein vom Kern-Haus-Team in Erfurt freut sich darauf Ihre Fragen zu beantworten. Jetzt anrufen: 0361 / 551450
Kern-Haus in Erfurt - https://www.kern-haus.de/erfurt/
Weitere Architektenhäuser - https://www.kern-haus.de/haeuser
Stichworte
Stellplatz vorhanden, Anzahl der Schlafzimmer: 4, Anzahl der separaten WCs: 1