Version: 8.22.6Navigation überspringen
340.000 €
2 Zimmer  •  56,8 m²  •  4. Geschoss
Immowelt logo

Wohnung zum Kauf
340000 €
5.990 €/m²
2 Zimmer  •  56,8 m²  •  4. Geschoss

Neuköllner Flair - 2-Zimmer-Wohnung mit Balkon in der Nähe des Tempelhofer Felds

Nur einen Katzensprung vom beliebten Park am Tempelhofer Feld entfernt bieten wir diese klassische 2-Zimmer-Altbau Wohnung zum Verkauf an.
Die Wohnung befindet sich im 4. Obergeschoss des Vorderhauses und wirkt dadurch sehr hell. Der Balkon, der zu kleiner urbaner grüner Ecke umgewandelt wurde, zeigt zur lebendigen Seitenstraße hinunter, während Schlafzimmer, Küche und Bad zum ruhigen Innenhof liegen.
Das Haus ist ein klassischer Berliner Altbaugebäude mit 25 Einheiten, bestehend aus Vorderhaus, kleinem Seitenflügel und Hinterhaus.

Merkmale

  • Bezug: März 2026
  • 4. Geschoss
  • Balkon
  • DSL-Anschluss
  • Badezimmer: Badewanne, Bad mit Dusche, Bad mit Fenster
  • Bodenbelag: Fliesen, Holzdielen, Linoleum
  • Fenster: Kunststoff
Zu der Wohnung:
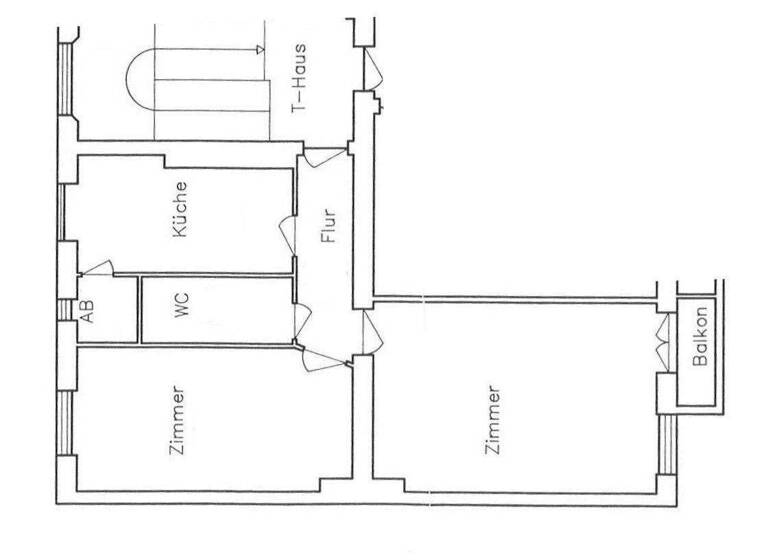
- 2 Zimmer (ca. 22 and 15 m²), Küche mit Abstellraum, Bad, Balkon und Flur
- 56,77 m² Wohnfläche
- Originaler Dielenboden zum großenteil noch vorhanden
- Fliesenboden in Bad und Küche
- Doppelkastenfenster im Wohnzimmer und Kunststofffenster mit doppelter Verglasung in allen anderen Zimmern.
- Bad mit Badewanne
- Küche, Bad und Schlafzimmer nach Süden ausgerichtet
- Doppelte Ausrichtung, nach Norden und Süden
- die Wohnung ist aktuell noch bewohnt und wird ab März 2026 frei übergeben
- die Möblierung in den Bildern ist nicht Bestandteil des Angebotes. Bei Interesse an einer Möbelübernahme, sprechen Sie uns gerne an
- Die Wohnung wird im IST-Zustand verkauft und zeigt einige Abnutzungsspuren (Wände, Fliesen und Sanitärobjekte im Bad usw.) Die Elektroanlage ist zu modernisieren. Bei Einzug oder Neuvermietung wird voraussichtlich eine Renovierung erforderlich sein.

Grundrisse

Grundrisse
1 / 1

Realisiere Dein Projekt

Bausubstanz und Energie

Energieausweis

E
  • Baujahr1900
  • HeizungsartZentralheizung
  • EnergieträgerGas
Immowelt logo

Preisdetails

Kaufpreis
340000 €
5.990 €/m²
Hausgeld
267 €
Provision für Käufer
2,975% vom beurkundeten Kaufpreis inkl. 19% MwSt, verdient und fällig mit Beurkundung des notariellen Kaufvertrages. Der Immobilienmakler Giulio Zanetti hat einen provisionspflichtigen Maklervertrag mit dem Verkäufer in gleicher Höhe abgeschlossen.
Geschätzte Gesamtkosten
377.332 €1
Kaufpreis
340.000 €
Notarkosten (1,5%)
5.100 €
Grunderwerbsteuer (6%)
20.400 €
Provision für Käufer (2,98%)
10.132 €
Grundbucheintrag (0,5%)
1.700 €
1Der angezeigte Wert ist eine automatisch berechnete Schätzung von immowelt.
2Bei den Angaben handelt es sich um ortsübliche Werte. Individuelle Kosten können abweichen.

Lage

address-icon
NeuköllnBerlin (12051)
Der Anbieter hat die genaue Adresse nicht freigegeben
Die Immobilie befindet sich in belebter Wohnlage in Berlin Neukölln. In Laufnähe gibt es zahlreiche Restaurants, Cafés, Bäckereien, Supermärkte sowie Läden des täglichen Bedarf.
Zu Erholungs- und Freizeitaktivitäten ist der Tempelhofer Feld in 10 Minuten zu Fuß oder 2 Minuten mit Fahrrad erreichbar.
Mehrere Grün- und Parkanlagen, Ärzte, Fitnessstudios, Modegeschäfte und Buchhandlungen finden Sie ebenfalls vor Ort.
Mehrere Buslinien, die U-Bahnlinie U8 und der S-Bahn-Ring sind fußläufig zu erreichen.

Weitere Informationen

Sonstiges Bitte beachten Sie: Die Objektinformationen haben wir unsererseits vom jeweiligen Objektinhaber (Eigentümer, Vermieter) oder dessen Beauftragten erhalten. Wir können die Vollständigkeit, Richtigkeit und Aktualität dieser Informationen nicht überprüfen und haften daher nicht für etwaige Unvollständigkeiten, Fehler oder Nichtaktualität der uns vom Objektinhaber oder dessen Beauftragten zugeleiteten Informationen. Es obliegt dem Kunden selbst, die Informationen sorgfältig zu prüfen und bei Bedarf weitere Unterlagen oder Nachweise anzufordern.

Weitere Services

Lust auf eine Besichtigung?
Eine Frage zur Immobilie?
Nachricht hinzufügen
Mit der Nutzung der oben angegebenen Telefonnummer oder durch Klicken auf „Kontaktieren“ akzeptierst Du die Allgemeinen Nutzungsbedingungen, denen Du jederzeit widersprechen kannst. Weitere Informationen zum Datenschutz

Über den Anbieter

Giulio Zanetti
Giulio ZanettiMaklerbüro
Delfter Ufer, 4, 12359 Berlin
partner badge
Partnerschaft
Herr Giulio ZanettiDein Kontakt
Online-ID: 2n9au54
Giulio Zanetti
Giulio Zanetti
Bewertung: 5 von 5 Sternen
Nachricht hinzufügen
Mit der Nutzung der oben angegebenen Telefonnummer oder durch Klicken auf „Kontaktieren“ akzeptierst Du die Allgemeinen Nutzungsbedingungen, denen Du jederzeit widersprechen kannst. Weitere Informationen zum Datenschutz
Wie zufrieden bist du mit dieser Seite (nicht mit der Immobilie selbst)?